Gastronomiefläche in der Fabrik 1230 – das neue Grätzlzentrum in Wien- zu mieten

Einzelhandel - Ladenlokal, 1230 Wien

Lage der Immobilie

U-Bahn: U6 Bus: 62A, 64A S-Bahn: S2, S3, S4

Beschreibung der Immobilie

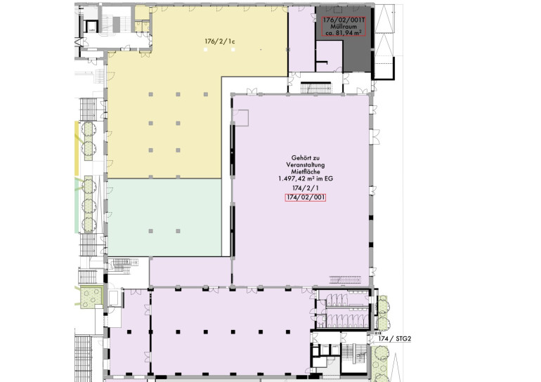
Geschäft- und Gastronomieflächen in der Fabrik 1230 – das neue Grätzlzentrum in Wien- zu mieten Mitten im aufstrebenden Stadtteil Atzgersdorf im 23. Bezirk in Wien bietet die Fabrik1230 moderne, flexibel gestaltbare Büro-, Ordinations- und Gewerbeflächen in einem außergewöhnlichen Ambiente. Die Kombination aus historischem Industriecharme und zeitgemäßer Architektur schafft ein inspirierendes Arbeitsumfeld. Darüber hinaus ist das Gebäude mit der ÖGNI-Platin-Zertifizierung ausgezeichnet, was höchste Standards in Nachhaltigkeit, Energieeffizienz und Nutzerkomfort gewährleistet. Die Anbindung an den öffentlichen und individuellen Verkehr garantiert beste Erreichbarkeit. Zusätzlich stehen 42 Stellplätze in der Tiefgarage zur Verfügung. Das Projekt umfasst rund 4.000 m² Büroflächen, ein 1.400 m² großes Gesundheitszentrum mit Apotheke sowie vielseitige Veranstaltungsbereiche. Großzügige Terrassen mit grünen Akzenten schaffen eine angenehme Atmosphäre und fördern die Work-Life-Balance. Ein Fitnesscenter sowie die geplante Gastronomie im historischen Gebäudeteil runden das Angebot ab. Verfügbare Flächen: EG, Top 02.01, ca. 674,17 m² Gastro + ca. 100 m² Terrasse EG, Top 02.02, ca. 264,12 m² Gastro + ca. 100 m² Terrasse EG, Top 01.02, ca. 123,06 m² Einzelhandel 1. OG, Top 02.101, ca. 157,65 m² - Empore (Gastro) 1. OG, Top 02.102, ca. 102,98 m² - Empore (Gastro) 1. OG, Top 03.101, ca. 98,06 m² - Empore (Gastro) Nettomiete/m²/Monat: € 14,00 - € 15,00 UG, Top 02.01, ca. 202,06 m² - Lager UG, Top 02.02, ca. 40,65 m² - Lager UG, Top 02.03, ca. 131,91 m² - Shop, Werkstatt UG, Top 03.01, ca. 104,91 m² - Gewerbe UG, Top 01.01, ca. 172,76 m² - Gewerbe Nettomiete/m²/Monat: € 6,00 – € 8,00 Betriebskostenakonto/netto/m²/Monat: dzt. ca. € 3,00 Verfügbare Fläche Veranstaltungshalle: INSGEMSAMT, ca. 2.001,18 m² - aufgeteilt in: UG, Top 02.U01, ca. 192,44 m² (Lager) EG, Top 02.01, ca. 1.497.42 m² (Veranstaltung) 1.OG, Top 02.101,ca. 311,32 m² (Empore und Büro) Nettomiete/m²/Monat: € 7,25 Betriebskostenakonto/netto/m²/Monat: dzt. ca. € 3,20 Lagerflächen im Ausmaß zwischen 21 m² und 52 m² sind je 8,00 €/m² zzgl. USt. p.M. im Untergeschoss verfügbar und werden inkl. etwaiger Betriebs- und Nebenkosten vermietet. Miete Stellplatz zu je € 120 zzgl. Betriebskosten i.H.v. ca. 30 € zzgl. USt (p. M.)

Eckdaten

Objektnr: 109251504_8
Art: Einzelhandel - Ladenlokal
Land: Österreich
Baujahr: 2024
Gesamtmiete: 25.094,80
Kaltmiete (netto): 14.508,55 €
Kaltmiete: 20.912,33 €
Miete / m²: 7,25 €
Provision: 3 BMM zzgl. USt.
Betriebskosten: 6.403,78 €
Gesamtfläche: 2.001,18 m²
Heizwärmebedarf:  C  61,40 kWh/m²a
fGEE:  A+  0,63
Immobilie merken Exposé

Ausstattung

DV-Verkabelung


Internet und TV

Information zur Internet und TV Versorgung hier


Immobilie anfragen


Ihre persönliche Beratung

ÖRAG Immobilien Vermittlung GmbH

Stefan Braune, BA

ÖRAG Immobilien Vermittlung GmbH

E stefan.braune@oerag.at

T 0043153473288