Gastronomiefläche in der Fabrik 1230 – das neue Grätzlzentrum in Wien- zu mieten
Einzelhandel
- Ladenlokal,
1230
Wien
Lage der Immobilie
U-Bahn: U6 Bus: 62A, 64A S-Bahn: S2, S3, S4Beschreibung der Immobilie
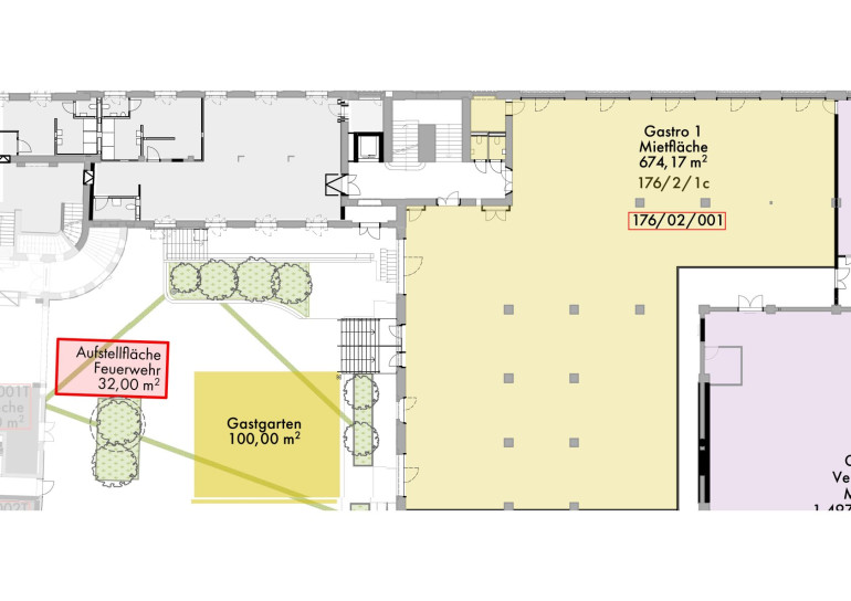
Eckdaten
Objektnr: | 109251504_2 |
Art: | Einzelhandel - Ladenlokal |
Land: | Österreich |
Baujahr: | 2024 |
Gesamtmiete: | 13.753,07 € |
Kaltmiete (netto): | 9.438,38 € |
Kaltmiete: | 11.460,89 € |
Miete / m²: | 14,00 € |
Provision: | 3 BMM zzgl. USt. |
Betriebskosten: | 2.022,51 € |
Gesamtfläche: | 674,17 m² |
Heizwärmebedarf: | C 96,50 kWh/m²a |
fGEE: | B 0,95 |
Internet und TV
Information zur Internet und TV Versorgung hier
Ihre persönliche Beratung

Milena Ivkovic
ÖRAG Immobilien Vermittlung GmbH
E Milena.Ivkovic@oerag.at
T 00431534735000043153473310