Lage der Immobilie
Die Villen St. Martin sind ein exklusives Wohnprojekt im grünen Herzen Klagenfurts – dem Kreuzbergl. Die drei moderne Villen, welche terrassenförmig auf dem sonnigen Südhang angelegt sind, bieten einen außergewöhnlichen Panoramablick und luxuriösen Lifestyle. In St. Martin liegt der Wörthersee quasi vor Ihrer Haustüre. Nur wenigen Minuten trennen Sie vom Seeufer, von der Promenade und von der Ruhe, die das umliegende Bergpanorama ausstrahlt.Beschreibung der Immobilie
Villa St. Martin
In der Villa St. Martin wird der Ausblick, der sich durch die großen Panoramafenster im Wohn-Essbereich bietet, Besucher wie Bewohner gleichermaßen bezaubern. Das „Wohn“-Geschoß befindet sich im oberen Teil der Villa und profitiert dadurch von einem Mehr an Tages-und Sonnenlicht. Hier finden Kochen, Essen, Lachen, Reden, Spielen, Lesen und auch Langeweilen statt – alles mit ungetrübtem Blick auf die imposante Bergkulisse der Karawanken.
Eine Treppe führt in das untere Geschoß des Hauses - zum Schlafen und Entspannen. Jedes der drei Schlafzimmer ist über eine Balkontüre mit dem Garten verbunden – vom Bett aus genießen Sie hier den ungetrübten Ausblick ins Grüne. Entspannung pur bietet auch das Badezimmer, wo Sie nach einem anstrengenden Tag in ein heißes Bad eintauchen können. Eines der Schlafzimmer ist übrigens als Masterbedroom mit einem eigenen Schrankraum und einem separaten Badezimmer ausgestattet.
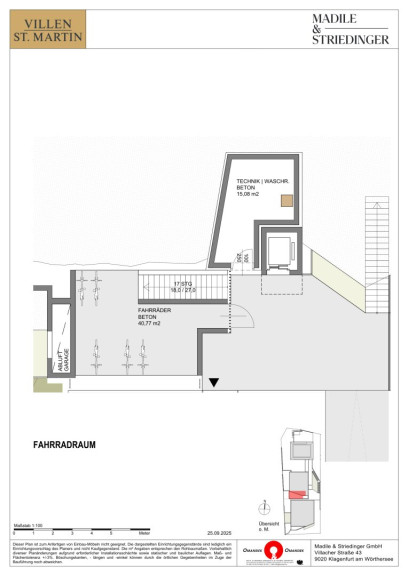
Dank des Liftes sind übrigens beide Ebenen der Villa St. Martin barrierefrei zugänglich und komfortabel erreichbar: Sie gelangen von der Tiefgarage bequem in den 1. Stock des Hauses, wo sich der repräsentative Haupteingang befindet. Alternativ können Sie sich auch bis zur unteren Geschoßebene befördern lassen, wo Sie der Lift direkt in das Wohngeschoß entlässt.
Infrastruktur / Entfernungen
Gesundheit
Arzt <500m
Apotheke <1.000m
Krankenhaus <2.000m
Klinik <2.000m
Kinder & Schulen
Schule <1.000m
Kindergarten <1.500m
Universität <1.000m
Höhere Schule <2.500m
Nahversorgung
Supermarkt <1.000m
Bäckerei <1.000m
Einkaufszentrum <3.000m
Sonstige
Bank <1.000m
Geldautomat <1.000m
Post <1.500m
Polizei <1.000m
Verkehr
Bus <500m
Autobahnanschluss <1.000m
Bahnhof <1.000m
Flughafen <5.500m
Angaben Entfernung Luftlinie / Quelle: OpenStreetMap
Eckdaten
| Kaufpreis: | auf Anfrage |
| Fläche: | 177,03 m² |
| Zimmer: | 4 |
Basisdaten zur Immobilie
| Objektnr: | 51 |
| Art: | Wohnung |
| Land: | Österreich |
| Baujahr: | 2026 |
| Zustand: | Erstbezug |
| Alter: | Neubau |
| Kaufpreis: | auf Anfrage |
| Wohnfläche: | 177,03 m² |
| Zimmer: | 4 |
| Terrassen: | 1 |
| Garten: | 87,46 m² |
| Keller: | 10,00 m² |
| Heizwärmebedarf: | B 43,00 kWh/m²a |
| fGEE: | A+ 0,66 |
Ausstattung
Parkett, Fliesen, Erdwärme, Fußbodenheizung, Personenaufzug, Südbalkon
Internet und TV
Information zur Internet und TV Versorgung hier
Ihre persönliche Beratung
MSc Johannes Pagitz
Madile Wohnbau GmbH
office@madile.at
+43 664 8282 968
