Lage der Immobilie
Die Villen St. Martin sind ein exklusives Wohnprojekt im grünen Herzen Klagenfurts – dem Kreuzbergl. Die drei moderne Villen, welche terrassenförmig auf dem sonnigen Südhang angelegt sind, bieten einen außergewöhnlichen Panoramablick und luxuriösen Lifestyle. In St. Martin liegt der Wörthersee quasi vor Ihrer Haustüre. Nur wenigen Minuten trennen Sie vom Seeufer, von der Promenade und von der Ruhe, die das umliegende Bergpanorama ausstrahlt.Beschreibung der Immobilie
VILLA WÖRTHERSEE
Vorhang auf für ein Haus, das keine Wünsche offen lässt: Die Villa Wörthersee. Sie bietet auf vier Geschoßen ausreichend Platz zum Wohlfühlen, mit mehr als einem Hauch von Luxus: Ein hausinterner Lift steht dem Eigentümer zur Verfügung, um vom Erdgeschoß komfortabel auf die eigene Dachterrasse zu gelangen. Hier genießen Sie hoch über den Dächern Klagenfurts einen ungetrübten Rundumblick - über die Lichter der Stadt bis hin zum Wörthersee.
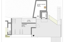
Ein weiteres Highlight wartet im zweiten Geschoß des Hauses: der wohl höchstgelegene Pool Klagenfurts. Er befindet sich auf einer nordseitigen Terrasse und lädt dazu ein, Seele und Beine baumeln zu lassen.
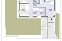
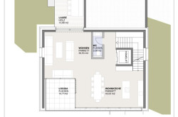
Das erste Obergeschoß ist dem Familien- und Gesellschaftsleben vorbehalten: Das gesamte Geschoß steht für Wohnen, Essen und Kochen zur Verfügung, der Raum wird nur von der Treppe, die in das obere Geschoß führt, geteilt. Die dadurch entstehenden Sichtachsen schaffen ein unvergleichlich großzügiges Wohngefühl. Dieses wird durch den freien Blick nach Süden, der sich durch die Panoramafenster eröffnet, noch verstärkt.
Rückzugsorte finden sich vor allem im Erdgeschoß des Hauses: Hier können Sie in der privaten Sauna mit Blick ins Grüne wellnessen und Ihre Energiespeicher auffüllen. Wie auch im zweiten Geschoß befinden sich hier außerdem Bade- und Schlafzimmer.
Auf Wunsch kann die Villa Wörtersee auch als Variante mit separater Einliegerwohnung im Erdgeschoß ausgeführt werden.
Infrastruktur / Entfernungen
Gesundheit
Arzt <500m
Apotheke <1.000m
Krankenhaus <2.000m
Klinik <2.000m
Kinder & Schulen
Schule <1.000m
Kindergarten <1.500m
Universität <1.000m
Höhere Schule <2.500m
Nahversorgung
Supermarkt <1.000m
Bäckerei <1.000m
Einkaufszentrum <3.000m
Sonstige
Bank <1.000m
Geldautomat <1.000m
Post <1.500m
Polizei <1.000m
Verkehr
Bus <500m
Autobahnanschluss <1.000m
Bahnhof <1.000m
Flughafen <5.500m
Angaben Entfernung Luftlinie / Quelle: OpenStreetMap
Eckdaten
| Kaufpreis: | auf Anfrage |
| Fläche: | 240,95 m² |
| Zimmer: | 5 |
Basisdaten zur Immobilie
| Objektnr: | 52 |
| Art: | Haus - Villa |
| Land: | Österreich |
| Baujahr: | 2026 |
| Zustand: | Erstbezug |
| Alter: | Neubau |
| Kaufpreis: | auf Anfrage |
| Wohnfläche: | 240,95 m² |
| Zimmer: | 5 |
| Terrassen: | 2 |
| Garten: | 252,13 m² |
| Keller: | 7,00 m² |
| Heizwärmebedarf: | B 41,00 kWh/m²a |
| fGEE: | A+ 0,65 |
Internet und TV
Information zur Internet und TV Versorgung hier
Ihre persönliche Beratung
Andreas Binder
Madile Wohnbau GmbH
office@madile.at
+43 664 8282 969
