Lage der Immobilie
Die Villen St. Martin sind ein exklusives Wohnprojekt im grünen Herzen Klagenfurts – dem Kreuzbergl. Die drei moderne Villen, welche terrassenförmig auf dem sonnigen Südhang angelegt sind, bieten einen außergewöhnlichen Panoramablick und luxuriösen Lifestyle. In St. Martin liegt der Wörthersee quasi vor Ihrer Haustüre. Nur wenigen Minuten trennen Sie vom Seeufer, von der Promenade und von der Ruhe, die das umliegende Bergpanorama ausstrahlt.Beschreibung der Immobilie
Villa Klagenfurt
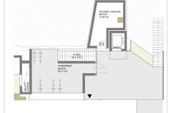
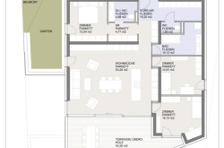
Die Villa Klagenfurt lässt das Herz von Designpuristen höher schlagen: Der moderne Bungalow begeistert mit großen Fensterfronten Richtung Süden und einer klaren architektonischen Linienführung. Das gesamte Wohnen findet hier auf einer Ebene und somit ohne Barrieren statt. Der Großteil der fast 135 m2 Wohnfläche entfällt auf den Wohn-Essbereich, Herzstück eines jeden Zuhauses. Ebenso wie auf der Terrasse, die direkt an den Essbereich anschließt, können Sie hier einen unvergleichlichen Blick auf die Dächer Klagenfurts genießen. Mit drei Schlafzimmern und zwei Bädern ist die Villa Klagenfurt ideal für Paare, Familien und Singles mit dem Blick für das Besondere und der Freude an der Natur.
Infrastruktur / Entfernungen
Gesundheit
Arzt <500m
Apotheke <1.000m
Krankenhaus <2.000m
Klinik <2.000m
Kinder & Schulen
Schule <1.000m
Kindergarten <1.500m
Universität <1.000m
Höhere Schule <2.500m
Nahversorgung
Supermarkt <1.000m
Bäckerei <1.000m
Einkaufszentrum <3.000m
Sonstige
Bank <1.000m
Geldautomat <1.000m
Post <1.500m
Polizei <1.000m
Verkehr
Bus <500m
Autobahnanschluss <1.000m
Bahnhof <1.000m
Flughafen <5.500m
Angaben Entfernung Luftlinie / Quelle: OpenStreetMap
Eckdaten
| Kaufpreis: | auf Anfrage |
| Fläche: | 134,75 m² |
| Zimmer: | 4 |
Basisdaten zur Immobilie
| Objektnr: | 48 |
| Art: | Wohnung |
| Land: | Österreich |
| Baujahr: | 2026 |
| Zustand: | Erstbezug |
| Alter: | Neubau |
| Kaufpreis: | auf Anfrage |
| Wohnfläche: | 134,75 m² |
| Zimmer: | 4 |
| Terrassen: | 1 |
| Garten: | 24,45 m² |
| Keller: | 6,00 m² |
| Heizwärmebedarf: | C 60,00 kWh/m²a |
| fGEE: | A 0,73 |
Ausstattung
Fliesen, Parkett, Erdwärme, Fußbodenheizung, Personenaufzug, Südbalkon
Internet und TV
Information zur Internet und TV Versorgung hier
Ihre persönliche Beratung
Andreas Binder
Madile Wohnbau GmbH
office@madile.at
+43 664 8282 969
