Teilsaniert-Gewerbeimmobilie in 1060 Wien – 201 m²
Halle / Lager / Produktion
,
1060
Wien,Mariahilf
Lage der Immobilie
Das Objekt befindet sich in einer ruhigen Gasse des 6. Bezirks. In nur 5 Gehminuten erreicht man die Mariahilferstraße wie auch die U 3 & U6 Station Westbahnhof. Die unmittelbare Nachbarschaft bietet sämtliche Einkaufsmöglichkeiten mit zahlreichen Geschäften des täglichen Bedarfs, Supermärkten, Bank, Trafik sowie eine Vielzahl an Restaurants, Bars und Cafés.Auch ein Hotel ist in der Nähe und Schule.Beschreibung der Immobilie
FAST FACTS: 1060 | EIGENTUM | 201m2| Kreativraum-Atelier-Magazin etc. | Gewölbe | Sanierungsbedürftig | Souterrain
Mitten in der Stadt- Ideen gefragt !
In begehrtestem urbanen Umfeld – zwischen Mariahilfer Straße und Liniengasse unweit des Gürtels – präsentiert sich dieses Geschäftslokal / Magazin/Lager mit großen Gewölberaum im Souterrain eines Altbaues. Die Sanierung mit Trockenlegung der Aussenwände und tragenden Wände ist bereits abgeschlossen.
Der 1892 errichtete Stilaltbau erstrahlt mit schön gegliederter Fassade.
Das Dachgeschoss wurde bereits ausgebaut.
ATELIER-WERKSTÄTTE-CLUBRAUM-STUDIO-LAGER-PROBERAUM
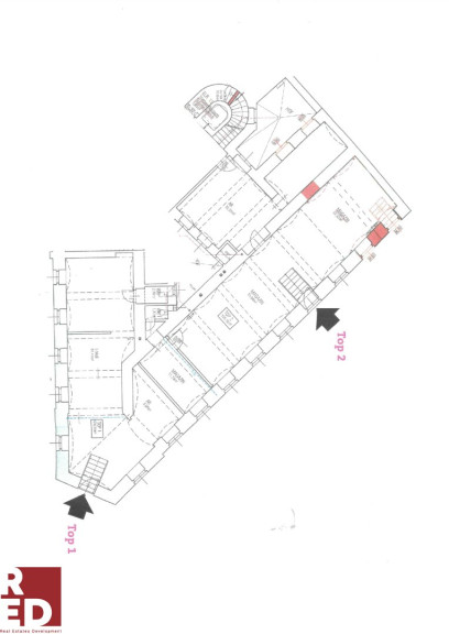
man kann hier viel daraus machen. Die Einheit besteht aus 2 nebeneinander liegenden Top1,2+2a und gehören zusammen
Trockenlegung seitens der Hausgemeinschaft an den jeweiligen Aussenwänden wurde bereits fertig gestellt. Nun können Sie selbst nach Ihren Wünschen und Vorstellungen fertigstellen. Es gibt gesamt 2 WC auch die bedürfen einer Fertigstellung.
Für einen Besichtigungstermin oder Fragen stehe ich Ihnen gern zur Verfügung.
Wir weisen darauf hin, dass zwischen dem Vermittler und dem zu vermittelnden Dritten ein familiäres oder wirtschaftliches Naheverhältnis besteht.
RED Real Estates Development Immobilien und Bauträger GmbH
Sterngasse 3/2/6
1010 Wien
+43 676 5063031
Infrastruktur / Entfernungen
Gesundheit
Arzt <500m
Apotheke <500m
Klinik <500m
Krankenhaus <500m
Kinder & Schulen
Schule <500m
Kindergarten <500m
Universität <1.000m
Höhere Schule <1.500m
Nahversorgung
Supermarkt <500m
Bäckerei <500m
Einkaufszentrum <1.000m
Sonstige
Geldautomat <500m
Bank <500m
Post <500m
Polizei <500m
Verkehr
Bus <500m
U-Bahn <500m
Straßenbahn <500m
Bahnhof <500m
Autobahnanschluss <4.500m
Angaben Entfernung Luftlinie / Quelle: OpenStreetMap
Eckdaten
| Kaufpreis: | 495.000,00 € |
| Fläche: | 201,00 m² |
Basisdaten zur Immobilie
| Objektnr: | 8131/257 |
| Art: | Halle / Lager / Produktion |
| Land: | Österreich |
| Baujahr: | 1902 |
| Zustand: | Sanierungsbeduerftig |
| Alter: | Altbau |
| Kaufpreis: | 495.000,00 € |
| Kaufpreis / m²: | auf Anfrage |
| Provision: | 3% des Kaufpreises zzgl. 20% USt. |
| Betriebskosten: | 351,92 € |
| MwSt Gesamt: | 70,38 € |
| Nutzfläche: | 201,00 m² |
| WC: | 2 |
| Heizwärmebedarf: | E 174,96 kWh/m²a |
| fGEE: | C 1,58 |
Ausstattung
Estrichboden
Internet und TV
Information zur Internet und TV Versorgung hier
Ihre persönliche Beratung
Dipl.Ing. Stella Lessmann
RED REAL ESTATES DEVELOPMENT Bauträger und Immobilien GmbH
s.lessmann@immo.red
+43 676 5063031
