Lage der Immobilie
Perchtoldsdorf, A21, International Highschool Herzogbergstraße,Beschreibung der Immobilie
Exklusives Wohnen am Herzogberg:
Am malerischen Südhang des Herzogbergs in Perchtoldsdorf entsteht eine Wohnoase, die keine Kompromisse kennt. Zwölf exklusive Doppelhaushälften in zeitgemäßer Architektur vereinen höchste Wohnqualität mit einem Panorama, das seinesgleichen sucht – von den Weinbergen über Wien bis zum südlichen Wienerwald.
Eckdaten im Überblick
- 12 exklusive Einfamilienhäuser in Doppelhausbauweise
- 4–6 Zimmer auf 3–4 Wohnebenen
- Wohnflächen von ca. 105–166 m²
- Großzügige Terrassen, Balkone, Gärten und Dachterrassen
- 24 PKW-Stellplätze
- Energiekennzahl: HWB 23,58–34,15 kWh/m²a
- Möglichkeit für eigenen Outdoor-Pool
- Anschlussvorbereitung für Sauna
Raumkonzept für höchste Ansprüche
Die klare Formensprache der modernen Doppelhäuser mit ihren kubischen Strukturen, markanten Rücksprüngen und großzügigen Dachterrassen setzt neue Maßstäbe. Je nach Haustyp erstrecken sich die Wohneinheiten über drei bis vier Ebenen mit großzügigen Wohnflächen von 105 bis 166 m². Die durchdachte Grundrissgestaltung schafft lichtdurchflutete Räume mit Raumhöhen von bis zu 2,67 m im Erdgeschoss. Vom Untergeschoss mit optionalem Wellnessbereich über die offene Wohn-Ess-Koch-Landschaft im Erdgeschoss bis zu den privaten Rückzugsbereichen in den Obergeschossen – jede Ebene wurde mit Bedacht geplant.
Ausstattung auf Premium-Niveau
- Hocheffiziente Luft-Wasser-Wärmepumpe von Vaillant
- Fußbodenheizung in allen Geschossen mit Einzelraumregulierung
- HWB: 23,58–34,15 kWh/m²a
- Elektrische Raffstores für optimale Beschattung
Edle Materialien:
- Hochwertige Eichen-Parkettböden von Weitzer
- Großformatige Feinsteinzeugfliesen in allen Nassbereichen
- Premium-Sanitärausstattung von Villeroy & Boch und Kronenbach
- Kunststoff-Aluminium-Fenster mit 3-Scheiben-Verglasung und elektrischen Raffstores
- Vorbereitung für Photovoltaik, SAT-Anlage und E-Mobilität
Lage mit Weitblick
Jedes Doppelhaus verfügt über großzügige Privatbereiche im Freien: Ein Eigengarten mit Rollrasen und Terrasse lädt zum Entspannen ein, während die Dachterrassen mit ihrem spektakulären Panoramablick über den Wienerwald zum persönlichen Refugium werden. Die Option zur Installation eines eigenen Outdoor-Pools macht das Wohnerlebnis komplett. Perchtoldsdorf verbindet das Beste zweier Welten: Die Ruhe und Naturverbundenheit des Wienerwalds mit der urbanen Infrastruktur einer erstklassigen Wohnlage und ein atemberaubender Ausblick auf Wien, die umliegenden Weinberge und den Wienerwald. Kindergärten, Schulen – darunter die International Highschool Herzog – sowie Nahversorger und die historische Burg Perchtoldsdorf befinden sich in unmittelbarer Nähe. Die ausgezeichnete öffentliche Anbindung gewährleistet schnelle Erreichbarkeit der Wiener Innenstadt.
Investition in Lebensqualität
Verfügbarkeit: 7 Häuser verfügbar, 2 reserviert, 3 verkauft
Inkludiert:
- Komplett ausgestattete Wohneinheit schlüsselfertig
- 1-2 PKW-Stellplätze im Freien
- Private Zufahrtsstraße mit Servitutsrechten
Ihre Möglichkeit zur Mitgestaltung
Im Rahmen der Bemusterung haben Sie die Möglichkeit, Ihr Traumhaus nach Ihren persönlichen Vorstellungen mitzugestalten. Von Bodenbelägen über Wandfarben bis zu individuellen Extras – wir realisieren Ihre Wohnträume.
HAUS 9D/2 – EXKLUSIVES WOHNEN AM SÜDHANG
UNTERGESCHOSS – 59,12 m² Multifunktionale Zone für Ihr individuelles Lifestyle-Konzept
- Gang – Großzügiger Bereich- 8,19 m²
- Zimmer – Vielseitig nutzbar als Homeoffice oder Homecinema - 33,52 m²
- Bad/WC – Vollwertiges Badezimmer - 6,44 m²
- Technik/HWR – Moderne Haustechnik - 10,97 m²
ERDGESCHOSS – 57,29 m² Das Herzstück – Open-Space-Living vom Feinsten
- VR/Garderobe – Einladender Empfangsbereich - 8,96 m²
- Kochen/Essen/Wohnen – Großzügiger offener Wohnbereich - 46,46 m²
- WC – Elegantes Gäste-WC - 1,87 m²
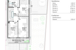
OBERGESCHOSS – 50,30 m² Ihre private Schlafetage mit drei Zimmern
- Gang – Verteilerbereich - 4,49 m²
- Bad/WC – Vollbad mit gehobener Ausstattung – 5,66 m²
- Zimmer 1 – Komfortables Schlafzimmer - 12,17 m²
- Zimmer 2 – Großzügiges Hauptschlafzimmer - 16,50 m²
- Zimmer 3 – Weiteres Schlafzimmer - 11,48 m²
DACHGESCHOSS – 23,03 m² Exklusive Master-Suite mit privatem Rückzugsbereich
- Gang – Intimer Zugangsbereich - 0,58 m²
- Master – Exklusiver Rückzugsort mit direktem Dachterrassen-Zugang – 15,51 m²
- Master-Bad – Luxuriöses En-suite-Bad – 6,94 m²
LEBEN IM FREIEN – IHR PRIVATES PARADIES mit 185,96 m²
- Privatgarten – Ihr grünes Reich mit hochwertigem Rollrasen im Untergeschoss – 93,94 m²
- Terrasse UG – Großzügige Terrassenfläche mit im Untergeschoss - 20,09 m²
- Balkon EG – Freibereich im Erdgeschoss mit Feinsteinzeugbelag – 3,91 m²
- Dachterrasse OG – Erste Dachterrasse mit Feinsteinzeugplatten – 6,54 m²
- Dachterrasse DG – Zweite private Dachterrasse mit Panoramablick – 7,07 m²
- Vorplatz – Gepflasterte Eingangszone – 35,18 m²
- 2 Stellplätze – Ihre privaten PKW-Stellplätze direkt am Haus
Wir weisen darauf hin, dass zwischen dem Vermittler und dem zu vermittelnden Dritten ein familiäres oder wirtschaftliches Naheverhältnis besteht.
Der Vermittler ist als Doppelmakler tätig.
Infrastruktur / Entfernungen
Gesundheit
Arzt <1.500m
Apotheke <1.500m
Klinik <2.500m
Krankenhaus <2.000m
Kinder & Schulen
Schule <1.000m
Kindergarten <1.500m
Höhere Schule <5.000m
Universität <8.500m
Nahversorgung
Supermarkt <1.500m
Bäckerei <1.500m
Einkaufszentrum <3.500m
Sonstige
Bank <1.500m
Geldautomat <1.500m
Post <1.500m
Polizei <1.500m
Verkehr
Bus <500m
U-Bahn <5.000m
Straßenbahn <3.000m
Bahnhof <2.500m
Autobahnanschluss <1.000m
Angaben Entfernung Luftlinie / Quelle: OpenStreetMap
Eckdaten
| Kaufpreis: | 1.250.000,00 € |
| Fläche: | 189,74 m² |
| Zimmer: | 6 |
Basisdaten zur Immobilie
| Objektnr: | 21293 |
| Art: | Haus - Doppelhaushälfte |
| Land: | Österreich |
| Baujahr: | 2025 |
| Zustand: | Erstbezug |
| Alter: | Neubau |
| Kaufpreis: | 1.250.000,00 € |
| Kaufpreis / m²: | auf Anfrage |
| Provision: | 3% des Kaufpreises zzgl. 20% USt. |
| Wohnfläche: | 189,74 m² |
| Zimmer: | 6 |
| Bäder: | 3 |
| WC: | 4 |
| Balkone: | 1 |
| Terrassen: | 2 |
| Stellplätze: | 2 |
| Garten: | 93,94 m² |
| Keller: | 10,97 m² |
| Heizwärmebedarf: | B 26,82 kWh/m²a |
| fGEE: | A+ 0,66 |
Ausstattung
Parkett, Fliesen, Fußbodenheizung, Wohnküche / offene Küche, Bad mit Fenster, Badewanne, Dusche, Carport, Parkplatz
Internet und TV
Information zur Internet und TV Versorgung hier
Ihre persönliche Beratung
Ing. Francis Broinger
3SI Makler GmbH
f.broinger@3si.at
+43 1 607 58 58 - 52
+43 660 29 36 662
F +43 1 607 55 80
