Sonniges Baugrundstück mit inspirierendem Visualisierungskonzept
Grundstück
- Baugrund Eigenheim,
6320
Angerberg
Lage der Immobilie
Angerberg ist eine Gemeinde mit ca. 1981 Einwohnern (Stand 1. Jänner 2024) im Bezirk Kufstein in Österreich. Die Gemeinde liegt im Gerichtsbezirk Rattenberg.
Die Gemeinde Angerberg liegt oberhalb des Verkehrsknotenpunktes Wörgl am 18 km langen „Mittelgebirgsrücken“, der zwischen der Brandenberger Ache und Niederbreitenbach verläuft.
Im Norden Angerbergs befindet sich der Gebirgszug der Brandenberger Alpen mit dem Hundsalmjoch (1637 m) als höchster Erhebung.
Wörgl, bekannt als Schul- und Einkaufsstadt, ist mit dem Auto oder öffentlichen Verkehrsmitteln in wenigen Minuten erreichbar.
Das kleine Dörfchen Mariastein, einer der bekanntesten Wallfahrtsorte unseres Landes, befindet sich in unmittelbarer Nähe.
Durch die nahegelegene Autobahnauffahrt Wörgl Ost ist auch die Verkehrsanbindung
nach Rosenheim – München, sowie nach Innsbruck und Richtung Italien optimal gegeben.
Kufstein: ca. 15 km
Kitzbühel: ca. 38 km
Innsbruck: ca. 72 km
Rosenheim: ca. 53 km
Salzburg: ca. 128 km
München: ca. 104 km
Beschreibung der Immobilie
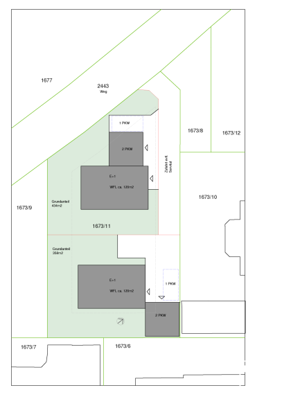
Traumhaftes Baugrundstück in Top-Lage Angerbergs – verwirklichen Sie Ihren Wohntraum!
Dieses großzügige Grundstück bietet die perfekte Grundlage für Ihr neues Zuhause.
Profitieren Sie von einer ruhigen und begehrten Wohngegend mit exzellenter Infrastruktur und hohem Freizeitwert.
Durch unseren Kooperationspartner Town & Country erhalten Sie bei Wunsch eine maßgeschneiderte Hausplanung und haben die Möglichkeit, Ihren Traum vom Eigenheim schnell und unkompliziert umzusetzen.
Highlights:
- Grundstück in attraktiver Lage mit hervorragender Verkehrsanbindung
- Hohe Lebensqualität in einer familienfreundlichen Umgebung
- Möglichkeit der individuelle Planung und Bau durch unseren Partner Town & Country
Vereinbaren Sie jetzt einen Besichtigungstermin und lassen Sie sich von diesem einzigartigen Grundstück begeistern!
Wir freuen uns auf Ihre Anfrage!
Eckdaten
Objektnr: | 0009000492 |
Art: | Grundstück - Baugrund Eigenheim |
Land: | Österreich |
Kaufpreis: | 316.500,00 € |
Provision: | 3% des Kaufpreises plus 20% USt. |
Grundstücksfl.: | 385,00 m² |
Internet und TV
Information zur Internet und TV Versorgung hier
Ihre persönliche Beratung

Dominique Armbruster
Raiffeisen Tirol Kufstein
E dominique.armbruster@rbk.at
T +43 5372 200-5018043537220050183