BAUTRÄGER / baubewilligtes Neubau-Projekt in 1220 Wien (Stadlau, Mühlwasser) mit 1.260m² Nutzfläche

Grundstück , 1220 Wien

Lage der Immobilie

Die Liegenschaft befindet sich im 22. Wiener Gemeindebezirk. Sie liegt in unmittelbarer Nähe zum Mühlwasser, einem beliebten Naherholungsgebiet. Die Umgebung ist geprägt von Wohnhäusern und Grünflächen. In der Nähe gibt es eine Bushaltestelle, von der aus man bequem ins Stadtzentrum gelangen kann. Auch der Autobahnanschluss ist nur wenige Minuten entfernt, was eine gute Anbindung an das Straßennetz bietet. Die Lage ist somit sowohl für Pendler als auch für Naturliebhaber die die Nähe zur Stadt nicht missen möchten.

Beschreibung der Immobilie

Zum Verkauf steht ein rechtskräftig baubewilligtes Neubau-Projekt auf einem Baurechtsgrundstück (100 Jahre) in 1220 Wien mit einer Nutzfläche von 1.260 m². Das Projekt ist vollständig entwickelt mit kompletter Ausführungsplanung, inkl. Bodengutachten, E-Planung, HKLS-Planung, Statik und Bauphysik.

Preis

Der Verkaufspreis beträgt 650.000 EUR, es besteht auch die möglich der Optierung in die Umsatzsteuer wobei der Verkaufspreis (netto) 590.000 EUR zzgl. 20% USt. betragen würde. Der Baurechtszins beträgt weniger als 2 EUR/m²/Monat.

Grundstück

Das Grundstück weist ein Größe von 1.253m² und eine Widmung W I 6,5m ogk BB auf. Die Liegenschaft wurde vermessen und im Grenzkataster eingetragen. 

Objektbeschreibung

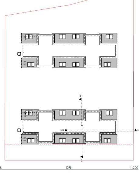
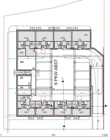
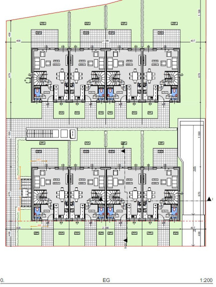
Das Objekt teilt sich in 2 Baukörper auf mit jeweils 4 Wohneinheiten/Reihenhäuser, sowie einer vollständig darunter befindlichen Tiefgarage mit 9 KFZ-Stellplätzen, Haustechnikräumen, Fahrradraum und je Wohneinheit Kellerräume. Die Wohneinheiten weisen eine Wohnnutzfläche zwischen 115-120 m² auf, sowie Balkone, Terrassen und Grünflächen und Kellerräume.

Die Beheizung erfolgt energieeffizient über Wärmepumpen, die Kühlung ist mit fan-coils vorgesehen und die Eigenstromerzeugung über eine gemeinschaftliche PV-Anlage.

Das Objekt wurde bereits in der Planung für ein klimaaktiv-Zertifikat vorgesehen/registriert.

FLÄCHENAUFSTELLUNG
  • 940 m² Wohnnutzfläche
  • 104 m² Balkone
  • 132 m² Terrassen
  • 535 m² Grünfläche
  • 203 m² Keller
  • 9 KFZ-Stellplätze (in der Tiefgarage)

Wir weisen darauf hin, dass zwischen dem Vermittler und dem zu vermittelnden Dritten ein familiäres oder wirtschaftliches Naheverhältnis besteht.

Der Vermittler ist als Doppelmakler tätig.

Infrastruktur / Entfernungen

Gesundheit
Arzt <1.500m
Apotheke <2.000m
Klinik <2.000m
Krankenhaus <2.000m

Kinder & Schulen
Schule <1.500m
Kindergarten <1.500m
Universität <1.500m
Höhere Schule <4.500m

Nahversorgung
Supermarkt <1.500m
Bäckerei <2.000m
Einkaufszentrum <2.500m

Sonstige
Geldautomat <1.500m
Bank <2.000m
Post <1.500m
Polizei <2.500m

Verkehr
Bus <500m
U-Bahn <1.500m
Straßenbahn <2.000m
Bahnhof <1.500m
Autobahnanschluss <1.000m

Angaben Entfernung Luftlinie / Quelle: OpenStreetMap

Eckdaten

Objektnr: 7368/54
Art: Grundstück
Land: Österreich
Kaufpreis: 650.000,00
Kaufpreis / m²: 515,87 €
Provision: 3% des Kaufpreises zzgl. 20% USt.
Wohnfläche: 940,00 m²
Nutzfläche: 1.260,00 m²
Grundstücksfl.: 1.253,00 m²
Heizwärmebedarf:  B  37,90 kWh/m²a
fGEE:  A+  0,63
Immobilie merken Exposé

Internet und TV

Information zur Internet und TV Versorgung hier


Immobilie anfragen


Ihre persönliche Beratung

AWMG KG

Ing. Mario Gruber

AWMG KG

E mg@awmg.at

T +43 1 3940500

H +43 676 4157080