Lage der Immobilie
Siehe Lageexposé!Beschreibung der Immobilie
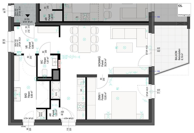
Diese Wohnung eignet sich perfekt für Singles oder auch ein Pärchen.
Über einen Personenaufzug gelangt man in das 1.Obergeschoss eines modern gebauten Wohnhauses.
In der Wohnung angekommen findet man sich zuerst in einem kleinen Vorraum, der genügend Platz für eine Garderobe aufweist wieder.
Von hier aus ist ein schön gefliestes Badezimmer mit großer Duschkabine, sowie das separate WC begehbar.
Ein paar Schritte weiter gelangt man in einen lichtdurchfluteten Wohnraum mit direktem Zugang zum gemütlichen Balkon.
Im Wohnbereich ist Platz für einen Esstisch und eine Couch inkl. Wohnwand.
Die Küche ist durch die L-förmige Planung etwas abgegrenzt.
In der Küche befindet sich noch ein kleinerer zusätzlicher Raum, dieser kann als Speisekammer oder Abstellraum genutzt werden.
Das geräumige Schlafzimmer kann über den Wohnbereich betreten werden, hier ist ebenfalls ausreichend Platz für ein Doppelbett und einen größeren Kleiderschrank.
*** Finden Sie ab sofort unsere Immobilien auch auf der Maklerplattform www.alleimmobilien.at ***
Der Immobilienmakler erklärt, dass er – entgegen dem in der Immobilienwirtschaft üblichen Geschäftsgebrauch des Doppelmaklers – einseitig nur für den Vermieter tätig ist.
Eckdaten
| Gesamtmiete: | 972,79 € |
| Fläche: | 63,85 m² |
| Zimmer: | 2,50 |
Basisdaten zur Immobilie
| Objektnr: | 13499 |
| Art: | Wohnung |
| Land: | Österreich |
| Baujahr: | 2023 |
| Zustand: | Erstbezug |
| Alter: | Neubau |
| Gesamtmiete: | 972,79 € |
| Kaltmiete (netto): | 762,90 € |
| Kaltmiete: | 972,79 € |
| Provision: | Gemäß Erstauftraggeberprinzip bezahlt der Abgeber die Provision. |
| Betriebskosten: | 209,89 € |
| Wohnfläche: | 63,85 m² |
| Zimmer: | 2,50 |
| Bäder: | 1 |
| WC: | 1 |
| Balkone: | 1 |
| Stellplätze: | 1 |
| Keller: | 4,25 m² |
| Heizwärmebedarf: | B 33,00 kWh/m²a |
| fGEE: | A 0,76 |
Ausstattung
Parkett, Fliesen, Fußbodenheizung, Einbauküche, Personenaufzug, Bad mit Fenster, Dusche, Kabel/Satelliten-TV, Tiefgarage, Wasch/Trockenraum
Internet und TV
Information zur Internet und TV Versorgung hier
Ihre persönliche Beratung
Karl Pitzmann
CL-immogroup GmbH
k.pitzmann@cl-immogroup.at
+43 664 / 13 22 568
