Immobilie merken

Wohnen auf 2 Ebenen mit Weitblick

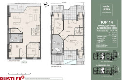
Wohnung - Maisonette, 2380 Perchtoldsdorf , Adam-Strenninger-Gasse 2

Beschreibung der Immobilie

Diese großzügige Maisonettewohnung mit rund 120m² Wohnfläche bietet nicht nur Raum, sondern auch grenzenlose Möglichkeiten zur persönlichen Entfaltung. Der rundum freie Ausblick auf die charmante Umgebung von Perchtoldsdorf verleiht jeder Tageszeit eine besondere Atmosphäre – ob beim Frühstück mit Sonnenaufgang oder bei einem Glas Wein mit Blick in den Sonnenuntergang. Diese Maisonettewohnung vereint viele Komponenten für ein stimmiges Wohnkonzept über zwei Ebenen. Durch die Ausrichtung nach Osten und Westen wird Ihnen über den gesamten Tag hinweg ein helles und freundliches Wohnambiente garantiert. Mit einer Wohnfläche von ca. 120m², Terrassen bzw. Loggien auf beiden Seiten und einem durchdachten Grundriss bietet sie ein Wohngefühl mit Seltenheitswert – offen, funktional und zugleich privat. Bereits im unteren Geschoss erwartet Sie eine helle, einladender Wohnraum mit direktem Ausgang ins Freie. Die angeschlossene Terrasse bzw. Loggia, mit auf Drainagekies verlegte Feinsteinzeug Platten, erweitert den Wohnbereich und schafft eine fließende Verbindung von Innen und Außen. Zudem stehen Ihnen eine Küche, ein Zimmer, ein modernes Badezimmer mit Dusche, WC und Aufsatzschalen auf einen Vollholz Waschtisch sowie ein Abstellraum zur Verfügung - ideal für das tägliche Familienleben. Über eine stilvolle Vollholz Eichentreppe gelangen Sie ins Obergeschoss. Dort öffnet sich der Raum – mit einer lichtdurchfluteten Galerie, einem Fitnessbereich, einem Wirtschaftsraum und einem weiteren Badezimmer mit freistehender Badewanne. Auch auf dieser Ebene genießen Sie den Zugang zu weiteren Terrassen bzw. Loggien, was die Maisonette noch großzügiger und vielseitiger macht. Die offene Gestaltung über zwei Ebenen schafft ein einzigartiges Wohngefühl, das sich flexibel an Ihre Bedürfnisse anpasst: Ob Galerie, Homeoffice, Fitnessraum oder kreatives Atelier – hier können Sie Ihre Vorstellungen vom modernen Wohnen ganz individuell verwirklichen. Selbstverständlich stehen Tiefgaragenstellplätze zur Verfügung. Zudem können alle Bewohner eine atemberaubende, gemeinschaftlich nutzbare Dachterrasse genießen, die einen beeindruckenden 360° Ausblick bietet. Hochwertige Ausstattung: - geölte Eichen-Landhausholzdiele mit Fase geklebt Fußböden - Eichenholzeingangstür mit modernem Fingerprintsystem, Zahlencode und klassischem Schlüsselschloss - Videosprechanlage - fast raumhohe Fenster - LED-Spots in der Decke (schaltbar und dimmbar mit KNX-Schaltelementen) - Hochwertige Innentüren mit einer Höhe von 2,30m bis 2,40m - Kaminanschluss vorhanden - wohnungsinterne Warmwasser Aufbereitung - effiziente Luftwärmepumpe - teilw. kontrollierte Wohnraumbelüftung mit Wärmerückgewinnung - Klimaanlage (Vorinstallation) - Sonnenschutz: ostseitig Zip Screens, westseitig Raffstores - PV-Anlage im Dachbereich Weitere Wohnungen stehen noch zum Verkauf und können auf Wunsch gerne vor Ort besichtigt werden. Lage und Infrastruktur: Die beworbene Liegenschaft befindet sich im südlichen Teil von Perchtoldsdorf, im Bezirk Mödling. Die Marktgemeinde ist bekannt für ihre Weinbaukultur und ihre Nähe zur Bundeshauptstadt Wien. Die Umgebung zeichnet sich durch eine hohe Lebensqualität, eine gute Anbindung an den öffentlichen Verkehr und eine ausgezeichnete Nahversorgung aus. Der Bahnhof Perchtoldsdorf, welcher die Linien S2, S3 und S4 führt, ist in wenigen Minuten erreichbar und bietet eine direkte Verbindung nach Wien. Zudem verkehren mehrere Buslinien in Gehdistanzen. Die Wienerstraße führt direkt nach Wien und ermöglicht eine schnelle Anbindung an die Wiener Südautobahn (A2) sowie die Südosttangente (A23). Diverse Bildungseinrichtungen befinden sich direkt im Ort. In der unmittelbaren Umgebung der Liegenschaft wird eine Vielzahl an Einkaufsmöglichkeiten, darunter Supermärkte, Fachgeschäfte und Wochenmärkte geboten. Das nahegelegene Einkaufszentrum "Shopping City Süd" in Vösendorf bietet zusätzlich eine breite Auswahl an Geschäften und Restaurants. Die Region rund um Perchtoldsdorf bietet zahlreiche Freizeitmöglichkeiten. Der Wienerwald lädt zu Wanderungen und Radtouren ein, während die Perchtoldsdorfer Heide als Naturpark mit seltenen Tieren und Pflanzen einen hohen Erholungswert bietet.

Eckdaten

Kaufpreis: 943.000,00 €
Fläche: 119,65 m²
Zimmer: 4

Basisdaten zur Immobilie

Objektnr: 141/82919
Art: Wohnung - Maisonette
Land: Österreich
Baujahr: 2024
Möbliert: Teil
Kaufpreis: 943.000,00
Provision: 3%
Wohnfläche: 119,65 m²
Zimmer: 4
Bäder: 2
WC: 2
Terrassen: 6
Heizwärmebedarf:  B  27,50 kWh/m²a
fGEE:  A+  0,69

Ausstattung

Personenaufzug



Internet und TV

Information zur Internet und TV Versorgung hier




Immobilie anfragen




Ihre persönliche Beratung

Rustler Immobilientreuhand

Petra Merkader

Rustler Immobilientreuhand

Merkader@rustler.eu

+432236908100669

+43 676 834 34 669


Rustler Immobilientreuhand - Immobilen Makler

Mariahilfer Straße 196/Eingang Lehnergasse 3, 1150 Wien

https://www.rustler.eu