FAMILIENNEST mit GARTEN - *gefördert* 4ZI - Reihenhaus mit viel Stauraum und 2Stellplätzen!
Haus
- Reiheneckhaus,
3500
Imbach
Lage der Immobilie
Imbach in der Marktgemeinde Senftenberg Eine touristisch erschlossene Gemeinde mit viel Sportmöglichkeiten, Heurigen und dem NUHR Gesundheitszentrum Kindergarten und Volksschule Busverbindung nach Krems ca.15minBeschreibung der Immobilie
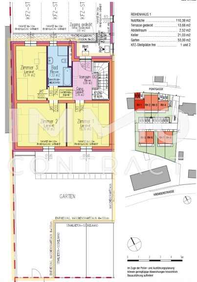
Eckdaten
Objektnr: | 132816 |
Art: | Haus - Reiheneckhaus |
Land: | Österreich |
Zustand: | Teil_vollsaniert |
Kaufpreis: | 408.462,72 € |
Wohnfläche: | 110,38 m² |
Zimmer: | 4 |
Bäder: | 1 |
WC: | 2 |
Terrassen: | 1 |
Stellplätze: | 2 |
Garten: | 53,00 m² |
Keller: | 21,03 m² |
Heizwärmebedarf: | 24,50 kWh/m²a |
fGEE: | 0,48 |
Ausstattung
Fliesen, Laminatboden, Solarenergie, Fußbodenheizung, Badewanne, Dusche, Wasch/Trockenraum
Internet und TV
Information zur Internet und TV Versorgung hier
Ihre persönliche Beratung

Doris Schneider-Hiesberger
IMMOcontract Immobilien Vermittlung GmbH
E D.Schneider-Hiesberger@IMMOcontract.at
H 00436648191815