Wohnen im Zentrum: Neuwertige 3-Zimmer Gartenwohnung

Wohnung - Erdgeschoß, 6410 Telfs

Lage der Immobilie

Wohnen in der Rosengasse von Telfs, bedeutet, alle Vorzüge einer zentralen Lage mit hoher Lebensqualität zu verbinden. Das nahegelegene Inntalcenter bietet mit seinen zahlreichen Geschäften, Cafés und Dienstleistungen alles für den täglichen Bedarf – bequem und schnell erreichbar.


Telfs überzeugt zudem als vielseitiger Bildungsstandort: Von Kinderkrippen und Kindergärten über Volks- und Mittelschulen bis hin zu höheren Schulen wie dem BRG/BORG oder dem Werkschulheim finden Familien hier ein umfassendes Angebot direkt vor Ort.


Auch in der Freizeit hat Telfs viel zu bieten: Im Sommer lockt das moderne Telfer Bad mit Frei- und Hallenbad, weitläufigen Liegewiesen und Sportangeboten. Im Winter profitiert man von der Nähe zum Seefelder Plateau mit seinen bestens ausgebauten Ski- und Langlaufmöglichkeiten. Zahlreiche Spazier- und Wanderwege sowie Naturjuwele wie der Möserer See runden das Freizeitangebot ab.


Fazit:


Die Rosengasse vereint urbanen Komfort mit alpiner Lebensqualität – ideal für Familien, Berufstätige und Naturliebhaber, die zentrale Lage, perfekte Infrastruktur und vielfältige Freizeitmöglichkeiten gleichermaßen schätzen.

Beschreibung der Immobilie

Wohnen in Zentrumslage Telfs:

Neuwertige Erdgeschosswohnung mit Garten und Terrasse

Das Wichtigste auf einen Blick:

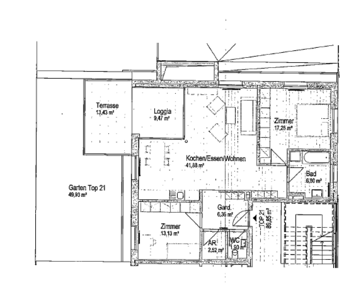
  • Wohnfläche: ca. 89,85 m²
  • Gartenfläche: ca. 49,93 m²
  • Terrassenfläche: ca. 13,43 m²
  • Loggia: ca. 9,47 m²
  • Kellerfläche: ca. 4,36 m²
  • 1 Garagenparkplatz bereits inkludiert (ein weiterer um € 18.000,- optional erwerbbar)
  • Baujahr: 2016
  • Lage: Telfs
  • Kaufpreis: € 485.000,-
  • Vermittlungshonorar: 3 % vom Gesamtkaufpreis zzgl. 20 % USt.

Wohnungsbeschreibung:

In der beliebten Rosengasse in Telfs erwartet Sie eine moderne Erdgeschosswohnung, die durch großzügige Raumgestaltung und vielseitige Freiflächen besticht. Auf rund 90 m² Wohnfläche eröffnet sich ein durchdachter Grundriss: Ein einladender Eingangsbereich führt in das helle Wohnzimmer mit offener, moderner Einbauküche – der ideale Mittelpunkt für gemeinsames Wohnen und Genießen. Zwei Schlafzimmer, ein Badezimmer mit Fenster und Badewanne, ein separates WC sowie ein praktischer Abstellraum runden das Raumangebot ab.

Besonders hervorzuheben sind die attraktiven Außenflächen: Ein sonniger Garten mit knapp 50 m², eine großzügige Terrasse sowie eine dreiseitig umschlossene Loggia, die auch an kühleren Tagen einen geschützten Platz im Freien bietet. So entsteht ein harmonisches Zusammenspiel von Drinnen und Draußen.

Die 2016 erbaute Wohnung befindet sich in sehr gepflegtem Zustand und wird durch eine zentrale Gasheizung versorgt. Zur Einheit gehört ein Kellerabteil, zudem stehen zwei Tiefgaragenplätze zur Verfügung – einer davon ist bereits im Kaufpreis inkludiert, ein weiterer kann optional um € 18.000,- erworben werden.

Nutzen Sie die Gelegenheit und sichern Sie sich Ihr neues Zuhause in Telfs – wir freuen uns auf Ihre Anfrage!

Eckdaten

Objektnr: 0017000580
Art: Wohnung - Erdgeschoß
Land: Österreich
Baujahr: 2016
Kaufpreis: 485.000,00
Provision: 3% des Kaufpreises plus 20% USt.
Betriebskosten: 193,60 €
Heizkosten: 99,81 €
Wohnfläche: 89,85 m²
Zimmer: 3
Bäder: 1
WC: 1
Terrassen: 1
Garten: 49,93 m²
Keller: 4,36 m²
Heizwärmebedarf:  B  28,89 kWh/m²a
fGEE:  A  0,79
Immobilie merken Exposé

Ausstattung

Gas, Zentralheizung


Internet und TV

Information zur Internet und TV Versorgung hier


Immobilie anfragen


Ihre persönliche Beratung

Raiffeisenbank Tirol Mitte West eGen

Sigrid Schönthaler-Kober

Raiffeisen Tirol Telfs-Mieming eGen

E sigrid.schoenthaler-kober@rbm.tirol

T +43 5262 698146834