Geschäftslokal in der Döblinger Hauptstraße nahe Bahnhof Spittelau (U4+U6) zur unbefristeten Miete! **VIDEOTOUR**
                                                            Einzelhandel
                                ,
                            
                            
                                
                                                                            1190
                                    
                                                                            Wien
                                    
                                    ,
                                        Döblinger Hauptstraße                                                                                    
                                    
                                
                                                                    
Lage der Immobilie
Döblinger Hauptstraße 35Beschreibung der Immobilie
Geschätzte Interessent:innen!
Sofern Sie eine Besichtigung wünschen, füllen Sie verpflichtend das Formular unter folgendem Link aus:
www.sulek.immobilien/besichtigung
Bitte machen Sie vorab die **Videotour**!
Auf unserer Website finden Sie ein Handyvideo der Wohnung unter folgendem Link:
https://storage.justimmo.at/file/5ffPkWRHDjezDiKp9igvh3.mov
Herzlichen Dank!
Erzählen Sie uns von Ihrem Konzept! (keine Gastronomie)
Geschäftslokal.
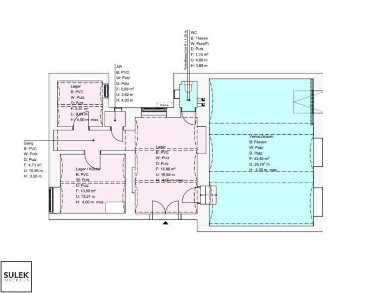
Ab sofort gelangt dieses rd. 83m² große Geschäftslokal im Erdgeschoss eines gepflegten Altbaus in der Döblinger Hauptstraße 35 zur unbefristeten Vermietung.
Das Geschäftslokal bietet eine Verkaufsfläche von rd. 43m², ein WC, ein Durchgangszimmer mit Stiegenhauszugang, einen weiterführenden Gang, zwei Lagerräume (einer davon mit Küchenanschlüssen) und einen Abstellraum.
Im Verkaufsraum und WC sind Fliesen verlegt, in den übrigen Räumlichkeiten finden Sie PVC-Boden vor.
Lage/Infrastruktur.
Aufgrund der idealen öffentlichen Anbindung, sowie dem großen Angebot an vielfältigen Lokalen, Geschäften und anderweitigen Institutionen in unmittelbarer Umgebung ist die Lage dieser Liegenschaft als optimal zu bezeichnen.
Eine direkte Anbindung an das öffentliche Verkehrsnetz, wie S-Bahn und U-Bahn (U4 +U6;Bahnhof Spittelau - 4 Gehminuten, 350m entfernt) ist gegeben. Auch die Straßenbahnlinie 37 hält in unmittelbarer Nähe.
Den nächstgelegenen Supermarkt (z.B. Billa), sowie eine Apotheke und Bankfiliale erreichen Sie innerhalb 3 Gehminuten.
Für Erholung im Freien bietet sich der unweit gelegene Wertheimsteinpark oder beliebte Türkenschanzpark an.
Infrastruktur / Entfernungen
Gesundheit
Arzt <250m
Apotheke <250m
Klinik <500m
Krankenhaus <1.000m
Kinder & Schulen
Schule <500m
Kindergarten <250m
Universität <750m
Höhere Schule <500m
Nahversorgung
Supermarkt <500m
Bäckerei <250m
Einkaufszentrum <1.750m
Sonstige
Geldautomat <250m
Bank <250m
Post <500m
Polizei <500m
Verkehr
Bus <250m
U-Bahn <500m
Straßenbahn <250m
Bahnhof <500m
Autobahnanschluss <750m
Angaben Entfernung Luftlinie / Quelle: OpenStreetMap
Eckdaten
| Objektnr: | 26038 | 
| Art: | Einzelhandel | 
| Land: | Österreich | 
| Zustand: | Gepflegt | 
| Alter: | Altbau | 
| Kaltmiete (netto): | 1.498,50 € | 
| Kaltmiete: | 1.660,29 € | 
| Miete / m²: | 18,00 € | 
| Provision: | 3 Bruttomonatsmieten zzgl. 20% USt. | 
| Betriebskosten: | 161,79 € | 
| MwSt Gesamt: | 332,06 € | 
| Nutzfläche: | 83,25 m² | 
| Verkaufsfläche: | 43,45 m² | 
| Zimmer: | 3 | 
| Heizwärmebedarf: | D 118,00 kWh/m²a | 
| fGEE: | D 1,95 | 
Ausstattung
Fliesen, Kunststoffboden
Internet und TV
Information zur Internet und TV Versorgung hier
Ihre persönliche Beratung
 
                                                        Kenan Bilgili
Mittelsmann Philipp Sulek GmbH
                E kb@sulek-immobilien.at
            
T +43 676 64 33 124
H +43 664 354 11 44
 
                 
                 
                 
                 
                 
                 
                 
                 
                 
                 
                 
                 
                 
                 
                 
                 
                