Immobilie merken

Helle Neubauwohnungen direkt an der Traisen

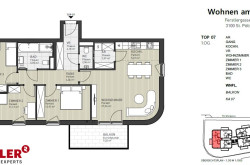
Wohnung , 3100 St. Pölten , Ferstlergasse 6

Beschreibung der Immobilie

Traisen Living – Das perfekte Zuhause für Pendler und Familien Willkommen in Traisen Living, der Wohnhausanlage, die modernes Wohnen, Naturverbundenheit und optimale Erreichbarkeit ideal vereint. Direkt an der Traisen gelegen und nur wenige Minuten vom Zentrum St. Pöltens entfernt, bietet dieses Projekt alles, was Familien und Pendler für ein entspanntes, komfortables Leben brauchen. Für Pendler: Schnell angebunden, entspannt ankommen + Hauptbahnhof St. Pölten in wenigen Minuten zu Fuß erreichbar – ideal für die tägliche Fahrt nach Wien oder Linz + Direkte Nähe zur Westbahnstrecke, S33 und A1 – perfekt für alle, die mit dem Auto pendeln + Ruhige Wohnlage trotz hervorragender Verkehrsanbindung + Tiefgarage mit optionalem Stellplatz – bequem parken, trocken ins Haus Hier starten Sie entspannt in den Tag und kommen abends in einem Zuhause an, das Ruhe und Erholung schenkt. Für Familien: Sicher, grün und alltagsfreundlich + Schulen, Kindergärten und medizinische Versorgung in unmittelbarer Nähe + Spielplatz und begrünte Außenanlagen direkt im Wohnareal + Eigengärten, Balkone oder Terrassen – ideal für Kinder, Haustiere oder entspannte Familienmomente + Die Traisen vor der Haustür – perfekt für Spaziergänge, Radfahren und Naturerlebnisse + Supermärkte, Bäckereien und Apotheken bequem erreichbar Hier wachsen Kinder in einer sicheren, grünen Umgebung auf – und Eltern profitieren von kurzen Wegen und einer durchdachten Infrastruktur. Wohnhighlights, die überzeugen: + 25 Eigentumswohnungen mit 2–4 Zimmern + Wohnflächen von 56–123 m² + Erstbezug – sofort einziehen und wohlfühlen + Tiefgarage mit 25 Stellplätzen, Kellerabteil, hochwertige Ausstattung + Energieeffiziente Haustechnik für niedrige Betriebskosten Ausstattung die Maßstäbe setzt: + Massivbauweise mit Vollwärmeschutzfassade + 3-fach verglaste Kunststoff-Alu-Fenster mit außenliegendem Sonnenschutz + Hochwertige Parkettböden in Wohnräumen, Feinsteinzeug-Fliesen in Bädern und WCs + Brunnen-Wärmepumpe mit Bauteilaktivierung für energieeffiziente Heizung + Vorbereitung für E-Ladestationen in der Tiefgarage + Spielplatz und begrünte Außenanlagen für Familien und Kinder Lage, die das Beste aus zwei Welten vereint Traisen Living befindet sich in einer Wohngegend, die Ruhe, Natur und urbanen Komfort harmonisch verbindet. Die Ferstlergasse liegt in einem gewachsenen, familienfreundlichen Umfeld, das durch seine angenehme Atmosphäre und hohe Lebensqualität überzeugt. Für Familien: Die Umgebung bietet ein sicheres, überschaubares Wohnviertel, in dem Kinder unbeschwert aufwachsen können. Zahlreiche Freizeitmöglichkeiten liegen praktisch vor der Haustür: weitläufige Grünflächen, Spazierwege entlang des Wassers und attraktive Outdoor-Bereiche schaffen Raum für gemeinsame Aktivitäten und entspannte Nachmittage. Die Nähe zu Bildungseinrichtungen und Alltagsangeboten sorgt dafür, dass Wege kurz bleiben und der Familienalltag stressfrei funktioniert. Für Pendler: Die Lage ist ideal für alle, die beruflich flexibel bleiben möchten. Dank der schnellen Erreichbarkeit zentraler Verkehrsknotenpunkte profitieren Sie von kurzen Wegen und einer unkomplizierten Anbindung in alle Richtungen. Gleichzeitig wohnen Sie in einem ruhigen Umfeld, das nach einem intensiven Arbeitstag Erholung bietet und den Kopf frei macht. Für alle, die mehr vom Wohnen erwarten: Die Kombination aus naturnaher Umgebung, urbaner Nähe und hoher Lebensqualität macht Traisen Living zu einem Standort, der langfristig überzeugt. Hier entsteht ein Wohngefühl, das jeden Tag ein Stück leichter, angenehmer und wertvoller macht.

Eckdaten

Kaufpreis: 494.400,00 €
Fläche: 92,47 m²
Zimmer: 4

Basisdaten zur Immobilie

Objektnr: 141/83095
Art: Wohnung
Land: Österreich
Baujahr: 2025
Alter: Neubau
Kaufpreis: 494.400,00
Provision: 3%
Wohnfläche: 92,47 m²
Zimmer: 4
Bäder: 1
WC: 1
Balkone: 1
Heizwärmebedarf:  B  26,20 kWh/m²a
fGEE:  A+  0,70

Ausstattung

Personenaufzug



Internet und TV

Information zur Internet und TV Versorgung hier




Immobilie anfragen




Ihre persönliche Beratung

Rustler Immobilientreuhand

Paula Polaniecki

Rustler Immobilientreuhand

Polaniecki@rustler.eu

+43 1 894 97 49682

+43 676 834 34 682


Rustler Immobilientreuhand - Immobilen Makler

Mariahilfer Straße 196/Eingang Lehnergasse 3, 1150 Wien

https://www.rustler.eu