Exklusive 2-Zimmer-Wohnung im begehrten Cottageviertel

Wohnung , 1190 Wien , Silbergasse 25

Lage der Immobilie

Cottageviertel, Oberdöbling, Setagayapark

Beschreibung der Immobilie

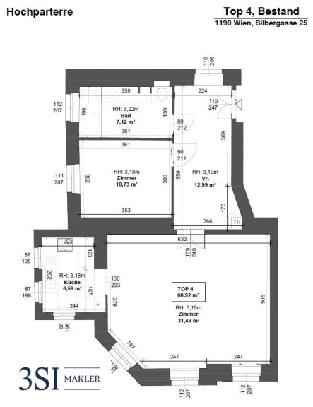
Top 4

Diese attraktive 2-Zimmer-Wohnung im begehrten 19. Bezirk bietet auf ca. 68 m² ein besonderes Wohnerlebnis. Das helle, großzügige Wohnzimmer vermittelt eine einladende Wohlfühlatmosphäre und eignet sich ideal als persönlicher Rückzugsort. Die offene Küche überzeugt durch ihre moderne Gestaltung und schafft Raum für kulinarische Entfaltung wie auch für gesellige Stunden mit Familie und Freunden.

Raumaufteilung:

  • großzügiger Eingangsbereich
  • offene Wohnküche
  • Schlafzimmer
  • Badezimmer mit Badewanne und WC

Lage

Das kleine, gepflegte Altbauhaus im 19. Bezirk liegt im beliebten Cottageviertel und erstreckt sich über ein Hochparterre sowie zwei Regelgeschoße. Die Umgebung zeichnet sich durch eine ausgezeichnete Infrastruktur aus, mit zahlreichen Geschäften, Restaurants und Cafés in unmittelbarer Nähe.

Dank der optimalen Anbindung an den öffentlichen Verkehr – Buslinien 10A und 39A sowie die Straßenbahnen 37 und 38 – gelangen Sie schnell in die Stadt. Zudem genießen Sie die Nähe zum Setagayapark und können die Natur in vollen Zügen erleben, während die umliegenden Heurigen und Weinberge zu genussvollen Ausflügen einladen.

Nebenkosten

Der guten Ordnung halber halten wir fest, dass, sofern im Angebot nicht anders vermerkt, bei erfolgreichem Abschlussfall eine Provision anfällt, die den in der Immobilienmaklerverordnung BGBI. 262 und 297/1996 festgelegten Sätzen entspricht – das sind 3 % des Kaufpreises zzgl. 20 % USt. Diese Provisionspflicht besteht auch dann, wenn Sie die Ihnen überlassenen Informationen an Dritte weitergeben. 

Hinweis gemäß Energieausweisvorlagegesetz: Ein Energieausweis wurde vom Eigentümer bzw. Verkäufer, nach unserer Aufklärung über die generell geltende Vorlagepflicht, sowie Aufforderung zu seiner Erstellung noch nicht vorgelegt. Daher gilt zumindest eine dem Alter und der Art des Gebäudes entsprechende Gesamtenergieeffizienz als vereinbart. Wir übernehmen keinerlei Gewähr oder Haftung für die tatsächliche Energieeffizienz der angebotenen Immobilie.

Wir weisen darauf hin, dass zwischen dem Vermittler und dem zu vermittelnden Dritten ein familiäres oder wirtschaftliches Naheverhältnis besteht.

Der Vermittler ist als Doppelmakler tätig.

Infrastruktur / Entfernungen

Gesundheit
Arzt <125m
Apotheke <225m
Klinik <675m
Krankenhaus <425m

Kinder & Schulen
Schule <575m
Kindergarten <325m
Universität <550m
Höhere Schule <725m

Nahversorgung
Supermarkt <275m
Bäckerei <625m
Einkaufszentrum <1.525m

Sonstige
Geldautomat <200m
Bank <200m
Post <775m
Polizei <475m

Verkehr
Bus <200m
U-Bahn <1.125m
Straßenbahn <450m
Bahnhof <550m
Autobahnanschluss <1.300m

Angaben Entfernung Luftlinie / Quelle: OpenStreetMap

Eckdaten

Objektnr: 21236
Art: Wohnung
Land: Österreich
Baujahr: 1900
Zustand: Gepflegt
Alter: Altbau
Kaufpreis: 449.000,00
Provision: 3% des Kaufpreises zzgl. 20% USt.
Betriebskosten: 167,21 €
MwSt Gesamt: 16,72 €
Wohnfläche: 68,25 m²
Zimmer: 2
Bäder: 1
WC: 1
Immobilie merken Exposé

Ausstattung

Parkett, Fliesen, Gas, Etagenheizung, Einbauküche, Wohnküche / offene Küche, Bad mit Fenster, Badewanne


Internet und TV

Information zur Internet und TV Versorgung hier


Immobilie anfragen


Ihre persönliche Beratung

3SI Makler GmbH

Lucas Carlsen

3SI Makler GmbH

E l.carlsen@3si.at

T +43 1 607 58 58 - 80

H +43 699 10 34 29 38

F +43 1 607 55 80