Historisches Haus mit Gewölbe in modernem Komfort!!!
Haus
- Einfamilienhaus,
7083
Purbach am Neusiedler See




















Lage der Immobilie
Die kleine Stadt Purbach am Neusiedlersee liegt eingebettet zwischen Leithagebirge und Neusiedlersee im Nordburgenland. Weinkultur, Gastfreundlichkeit und die Schönheit der Landschaft verleihen dieser Gemeinde ihren natürlichen Charme.
Die Landeshauptstadt Eisenstadt, sowie die Autobahnanschlussstelle erreichen Sie mit dem Auto in ca. 15 Minuten. Die Entfernung nach Wien beträgt 40 Minuten. Die Anbindung an das öffentliche Verkehrsnetz ist durch Gemeindebusse und Bahn gegeben. Dinge des täglichen Bedarfs können bequem im Ort gedeckt werden. Ein Arzt und eine Apotheke ist ebenfalls vor Ort.
Ein Kindergarten und eine Volksschule und eine Mittelschule befinden sich in Purbach.
Purbach lädt zu aktiven oder beschaulichen Tagen im milden pannonischen Klima ein. Wanderungen und Radausflüge in der Kirschblütenregion bieten Erholung und Entspannung für die ganze Familie.
Beschreibung der Immobilie
Historisches Haus mit modernem Komfort.
Ein Juwel für Liebhaber besonderer Immobilien. Lassen Sie sich von der einzigartigen Kombination aus Alt und Neu verzaubern und vereinbaren Sie noch heute einen Besichtigungstermin.
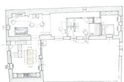
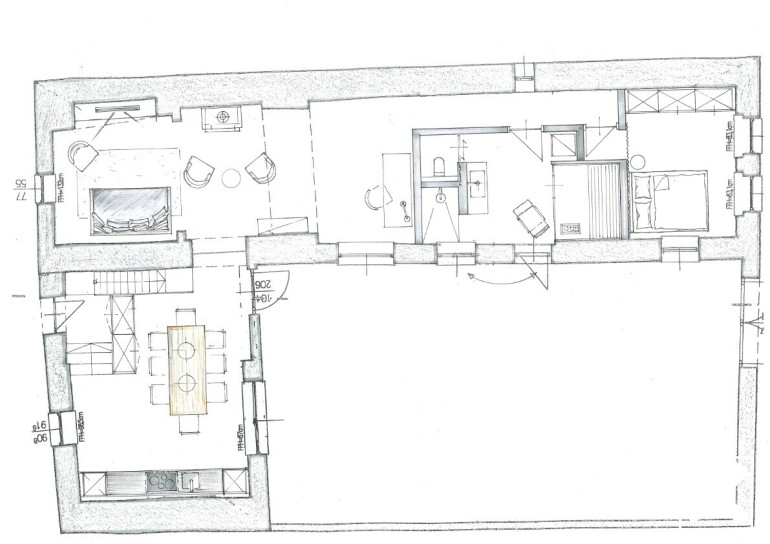
Das Innenleben des Hauses, die Fenster, das Dach, sämtliche Installationen, Elektrik und Sanitär wurden 2022- 2024 vollständig erneuert. Die neuen Böden, die modernen Küchen- und Badeinrichtungen sowie die stilvollen Wand- und Deckengestaltungen schaffen ein behagliches und gleichzeitig zeitgemäßes Wohnambiente auf ca. 120m² Wohnfläche.
Ein zusätzliches Highlight ist die Sauna sowie der große Pool im Innenhof .
Haben wir Ihr Interesse geweckt?
Dann Fordern Sie gleich das unverbindliche Exposé mit der Adresse und Detailbeschreibung an.
Eckdaten
Objektnr: | 0001010831 |
Art: | Haus - Einfamilienhaus |
Land: | Österreich |
Baujahr: | 1900 |
Möbliert: | Teil |
Kaufpreis: | 560.000,00 € |
Provision: | 3% des Kaufpreises plus 20% USt. |
Wohnfläche: | 120,00 m² |
Grundstücksfl.: | 241,00 m² |
Gesamtfläche: | 241,00 m² |
Zimmer: | 3 |
Bäder: | 1 |
WC: | 2 |
Terrassen: | 1 |
Garten: | 108,00 m² |
Heizwärmebedarf: | C 83,00 kWh/m²a |
fGEE: | C 1,06 |
Ausstattung
Gas, Fußbodenheizung, Wohnküche / offene Küche, Swimmingpool, Sauna
Internet und TV
Information zur Internet und TV Versorgung hier
Ihre persönliche Beratung

Walter Haider
Raiffeisen Immobilien Vermittlung
E teamnoesued@riv.at
T +43517517
H +43 664 60 517 517 98