Beschreibung der Immobilie
Baubeginn: Frühjahr 2026
Voraussichtliche Fertigstellung: Ende 2026
Parkplätze: Optional erhältlich (nicht im Kaufpreis enthalten)
Dieses Wohnbauprojekt vereint hochwertige Architektur, energieeffiziente Bauweise und modernen Wohnkomfort. Hier entsteht ein Zuhause für Menschen, die Wert auf Qualität, Design und nachhaltiges Wohnen legen – eingebettet in eine ruhige und zugleich zentrale Lage.
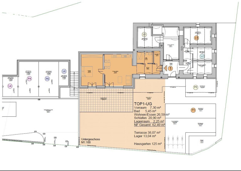
Diese wunderschöne Gartenwohnung mit einer Nutzfläche von ca. 62,49 m² vereint modernes Design, durchdachte Raumaufteilung und großzügige Freiflächen zu einem idealen Zuhause.
Die Wohnung überzeugt durch eine offene, lichtdurchflutete Gestaltung und bietet ein harmonisches Wohnambiente mit direkter Verbindung ins Grüne.
Sie verfügt über einen Vorraum, ein Badezimmer mit WC, eine großzügige Wohnküche sowie ein Schlafzimmer. Der große Wohn-Essbereich bildet das Herzstück der Wohnung und öffnet sich über bodentiefe Fensterflächen auf die 38 m² große Terrasse und den Hausgarten mit rund 125 m² – perfekt für entspannte Stunden im Freien oder gesellige Abende mit Freunden.
Die Wohnung wird in massiver, energieeffizienter Bauweise errichtet und überzeugt durch hochwertige Materialien und moderne Ausstattung. Holz-Alufenster mit 3-fach-Isolierverglasung und Raffstores sorgen für angenehmes Raumklima und hohen Wohnkomfort.
Ein Kellerabteil bietet zusätzlichen Stauraum, Fahrradabstellplätze stehen den Bewohnern gemeinschaftlich zur Verfügung. Parkplätze können bei Bedarf optional erworben werden.
Infrastruktur / Entfernungen
Gesundheit
Arzt <500m
Apotheke <1.000m
Klinik <2.500m
Krankenhaus <1.000m
Kinder & Schulen
Schule <500m
Kindergarten <500m
Nahversorgung
Supermarkt <1.000m
Bäckerei <1.000m
Einkaufszentrum <1.500m
Sonstige
Geldautomat <1.000m
Bank <1.000m
Post <1.000m
Polizei <1.000m
Verkehr
Bus <500m
Bahnhof <1.500m
Angaben Entfernung Luftlinie / Quelle: OpenStreetMap
Eckdaten
Objektnr: | 961/35786 |
Art: | Wohnung |
Land: | Österreich |
Baujahr: | 2026 |
Alter: | Neubau |
Kaufpreis: | 238.680,00 € |
Nutzfläche: | 62,49 m² |
Zimmer: | 2 |
Bäder: | 1 |
WC: | 1 |
Terrassen: | 1 |
Garten: | 125,00 m² |
Keller: | 13,04 m² |
Heizwärmebedarf: | C 63,00 kWh/m²a |
fGEE: | A 0,81 |
Internet und TV
Information zur Internet und TV Versorgung hier
Ihre persönliche Beratung

Markus Scholze
Real-Service für steirische Sparkassen Realitätenvermittlungs-Ges.m.b.H.
E markus.scholze@sreal.at
T +43 5 0100 - 26415
H +43 664 78098069