KLEINES GEMÜTLICHES GASTHAUS, HEURIGENSTÜBERL MIT HISTORISCHEM FLAIR!
Gastgewerbe
- Gastronomie/Restaurant,
2870
Aspang Markt
Lage der Immobilie
Das Gasthaus (Heurigenstüberl) liegt im Erdgeschoss eines stilvollen Altbaus am Marienplatz im Zentrum von Aspang. Zur Autobahn in Richtung Wien als auch in Richtung Graz sind es nur ca. 6 km. Der Bahnhof ist nicht einmal 1 km entfernt.
Aspang verfügt über eine sehr gute Infrastruktur und ist der Hauptort des Pittentals. Mehrere größere Gewerbe- und Handelsbetriebe haben hier oder der näheren Umgebung ihre Standorte. Durch eine verstärkte Wohnbautätigkeit in den letzten Jahren und daraus resultierendem Zuzug präsentiert sich der Ort sehr lebendig, mit vielen Aktivitäten.
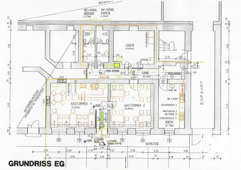
Beschreibung der Immobilie
Charmanter Gasthof für Gastronomen, es ist bereits alles
vorhanden, was es dafür braucht.
Die Gastroküche ist vollwertig ausgestattet (gegen Ablöse). Hier können Sie Ihre kulinarischen Kreationen zaubern und Ihre Gäste mit regionalen Köstlichkeiten verwöhnen.
Die Gaststube mit Schank ist der Kern des Gasthauses. Hier kommt man gern für ein Achterl und die neuesten Dorfnachrichten vorbei.
Gute Frequenzlage mit ausreichend Parkmöglichkeiten.
Eckdaten
| Gesamtmiete: | 1.380,00 € |
| Fläche: | 132,00 m² |
| Zimmer: | 2 |
Basisdaten zur Immobilie
| Objektnr: | 0001010833 |
| Art: | Gastgewerbe - Gastronomie/Restaurant |
| Land: | Österreich |
| Baujahr: | 1900 |
| Möbliert: | Voll |
| Gesamtmiete: | 1.380,00 € |
| Kaltmiete (netto): | 1.000,00 € |
| Kaltmiete: | 1.150,00 € |
| Provision: | 3 Bruttomonatsmieten plus 20% USt. |
| Heizkosten: | 150,00 € |
| Nutzfläche: | 132,00 m² |
| Zimmer: | 2 |
| Terrassen: | 1 |
| Heizwärmebedarf: | E 153,00 kWh/m²a |
| fGEE: | D 1,85 |
Ausstattung
Zentralheizung
Internet und TV
Information zur Internet und TV Versorgung hier
Ihre persönliche Beratung
Martin Winkler
Raiffeisen Immobilien Vermittlung
teamnoesued@riv.at
+43517517
+43 664 60 517 517 69
