Luxus-Penthouse: 4-Zimmer-Residenz mit 3,60m Raumhöhe - 3% Winterbonus

Wohnung - Dachgeschoß, 1130 Wien

Lage der Immobilie

Die Auhofstraße 258 liegt in Hacking, dem wohlbehüteten Villenviertel im 13. Wiener Gemeindebezirk Hietzing – einer der exklusivsten Adressen der Stadt. Umgeben von alten Baumbeständen, noblen Residenzen und viel Grün genießen Sie hier absolute Ruhe, ohne auf urbane Annehmlichkeiten zu verzichten. Die U4-Station Hütteldorf, S-Bahn- und Buslinien sind in wenigen Gehminuten erreichbar und verbinden Sie in kürzester Zeit mit der Wiener Innenstadt. Hochwertige Gastronomie, erlesene Boutiquen, renommierte Schulen und medizinische Spitzenversorgung liegen in unmittelbarer Nähe. Für Freizeit und Erholung bieten sich der Wiental-Radweg, der Wienerwald und weitläufige Parkanlagen direkt vor der Haustür an.

Beschreibung der Immobilie

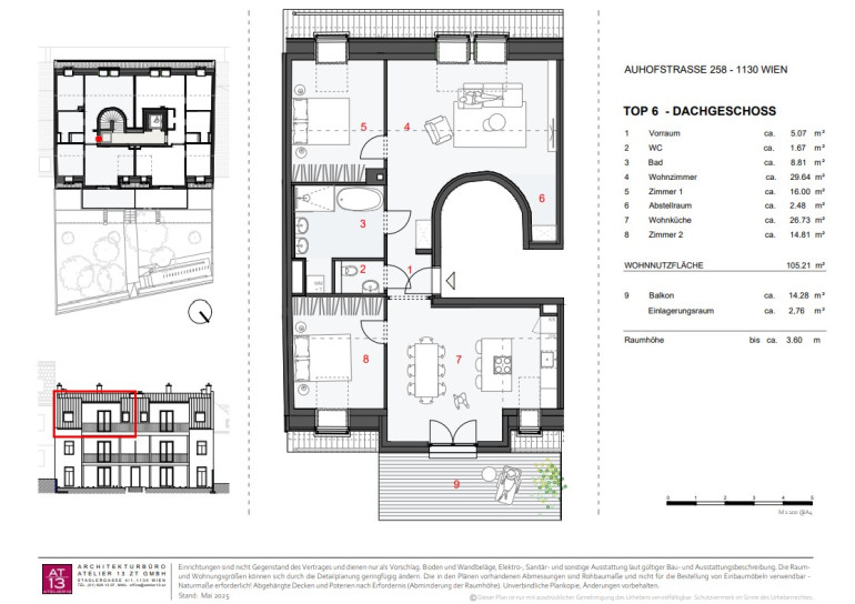
Willkommen in einer Penthouse-Residenz der Extraklasse – Top 6 in der historischen Villa Auhof vereint auf ca. 105,21m² Wohnfläche den Glanz eines stilvoll revitalisierten Altbaus mit der Raffinesse zeitgenössischer Architektur. Ein repräsentativer Wohn- und Essbereich mit 26,73 m² Wohnküche und separatem 29,64 m² Wohnzimmer öffnet sich über raumhohe Fenster zum 14,28 m² großen Balkon mit Blick ins Grüne. Zwei großzügige Schlafzimmer, ein edel ausgestattetes Badezimmer, separates WC sowie ein Abstellraum vervollständigen das Raumkonzept. Die Raumhöhe von 3,60 m schafft eine beeindruckende Großzügigkeit, während hochwertige Materialien und modernste Technik ein Wohngefühl auf absolutem Top-Niveau garantieren.

Eckdaten

Objektnr: 132369_6
Art: Wohnung - Dachgeschoß
Land: Österreich
Baujahr: 2025
Zustand: Erstbezug
Kaufpreis: 953.000,00
Wohnfläche: 105,21 m²
Nutzfläche: 105,21 m²
Gesamtfläche: 119,49 m²
Zimmer: 4
Bäder: 1
WC: 1
Balkone: 1
Heizwärmebedarf:  B  40,20 kWh/m²a
fGEE:  A  0,82
Immobilie merken Exposé

Ausstattung

Parkett, Fußbodenheizung, Personenaufzug, Badewanne, Dusche


Internet und TV

Information zur Internet und TV Versorgung hier


Immobilie anfragen


Ihre persönliche Beratung

Julian Pelzmann

IMMOcontract Immobilien Vermittlung GmbH

E j.pelzmann@immocontract.at