Erstbezug nach Sanierung: Großes Einfamilienhaus in einzigartiger Lage mit Weitblick und vielen Zimmern, Blick ins Grüne und in absoluter Ruhelage
Haus
- Einfamilienhaus,
1140
Wien
,
Steinböckengasse
Lage der Immobilie
SteinböckengasseBeschreibung der Immobilie
Werte InteressentInnen!
Sofern Sie eine Besichtigung wünschen, bitten füllen Sie verpflichtend das Formular unter folgendem Link aus www.sulek.immobilien/besichtigung!
Wir melden uns sodann verlässlich zur Terminvereinbarung.
Herzlichen Dank!
HINWEIS: Nutzen Sie gerne vorab die Möglichkeit einer Videobesichtigung auf unserer Website! HIER KLICKEN!
***************************************
Highlights.
- unbefristetes Mietverhältnis (da es sich um eine Vollausnahme des MRG handelt, mit einem mieterseitigen und vermieterseitigen Kündigungsverzicht von 5 Jahren)
- schöner, privater Garten
- Fern- und Grünblick
- 2 geräumige, helle Wohnbereiche
- offene Kamine in beiden Stockwerken
- Fitnessraum
- viele Schlafzimmer bieten vielfältige Nutzungsmöglichkeiten
- großzügige Terrassen. und Balkonflächen
- neue hochmoderne Alarmanlage mit Anschlussmöglichkeit an Sicherheitsfirma
Liegenschaft.
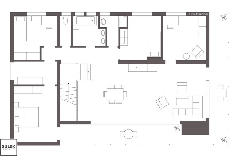
Zur unbefristeten Miete gelangt dieses Einfamilienhaus auf einem wunderschönen, begrünten Grundstück in absoluter Ruhelage inmitten eines Naturschutzgebiets am Stadtrand Wiens. Der Garten ist ca. 650m² groß und größtenteils uneinsichtig, die Privatsphäre ist somit garantiert. Das Wohnhaus bietet auf insgesamt rd. 300m² und zwei Stockwerken (+ geräumiges Kellergeschoss) einen umfassenden Wohnkomfort.
Die Oberflächen und Nassräume wurden kürzlich umfassend saniert. Das Objekt steht somit nach der Sanierung als Erstbezug zur Verfügung.
Im Erdgeschoss befindet sich einer der beiden großen Wohnbereiche mit offenem Kamin, anschließendem Esszimmer und direkt begehbarer, östlich ausgerichteter Steinterrasse. Die Terrasse verfügt über eine praktische Markise und lädt an warmen Sommertagen zum Frühstück mit der Familie ein. Ebenfalls im Erdgeschoss finden Sie eine separate, voll ausgestattete Küche mit Speisekammer, sowie zwei kleine Zimmer, eine separate Toilette und ein Badezimmer.
Im Obergeschoss befindet sich der zweite große und ebenso lichtdurchflutete Wohnbereich, welcher vor allem durch die offene Glasfront mit Blick ins Grüne besticht. Auch im Obergeschoss ist ein offener Kamin vorhanden. Zudem gelangen Sie direkt zum angrenzenden Südostbalkon, welcher einen phänomenalen Ausblick bietet. Weiters im Obergeschoss befinden sich zwei Bäder, ein separates WC, sowie vier weitere Wohnräume / Schlafzimmer, wovon eines über einen praktischen Schrankraum verfügt.
Der Keller bietet vielerlei Nutzungsmöglichkeiten und der Dachboden zudem viel Stauraum. Die Böden des Hauses sind teilweise verfliest und in den Wohnbereichen mit Parkett versehen. Über den Hintereingang des Hauses gelangen Sie direkt ins Grüne und können Ihre Joggingrunden und Ausflüge somit direkt vom Haus starten.
Ferner ist eine Doppelgarage vorhanden. Das Haus wird durch eine Ölheizung beheizt. Weiters stehen 3 offene Kamine (davon ein Außenkamin) zur Verfügung. Die Warmwasseraufbereitung erfolgt über einen Boiler im Haus. Die pauschalisierte Miete beinhaltet Grundsteuer, Müllabfuhr und eine Gebäudeversicherung. Die verbrauchsabhängigen Kosten für weitere öffentliche Abgaben, Wasser, Strom, Öl, etc. sind nicht in der Miete enthalten. Unverbindlich können wir die folgenden monatlichen Kosten mitteilen, die uns der bisherige Mieter zukommen ließ: Strom € 200-300 / Öl € 200-250 (Sommer/Winter) / Wasser&Abwasser € 50-80.
Lage / Infrastruktur.
In einer ruhigen Sackgasse, umgeben von einem wunderschönen, großläufigen Erholungsgebiet, gelegen bietet die Lage eine wunderbare Grünruhelage und dennoch eine gute Infrastruktur. Auf der Linzer Straße finden Sie zahlreiche Geschäfte (z.B. Supermarkt Spar, Drogeriemarkt DM - 1km, 12 Gehminuten entfernt), eine Bankfiliale, Tankstelle, Apotheke, Ärzte sowie mehrere Restaurants. Die Liegenschaft ist gut an das öffentliche Verkehrsnetz angebunden. Die nächstgelegenste Bushaltestelle "Hüttelberg" der Linie 47B ist nur 4 Gehminuten entfernt und bringt Sie direkt nach Hütteldorf zur Schnell- und U-Bahn. Auch Haltestellen der Buslinien 52A, 52B und Straßenbahnlinie 49 befinden sich in fußläufiger Reichweite. Mit der Straßenbahn können Sie ohne Umsteigen innerhalb 30 Minuten die Innenstadt (Ring/Volkstheater) erreichen. Für sportliche Aktivitäten bietet sich neben diversen Parks das nahegelegene Hütteldorfer Bad an.
- umgeben von vielen Parks und großzügigen Grünflächen - Erholungsgebiet
- nächstgelegener Supermarkt - 1,3km, 14 Gehminuten (Spar)
- Haltestelle der Buslinie 47B um's Eck - direkte Anbindung nach Hütteldorf (S+U)
- Haltestelle der Straßenbahnlinie 49 in Gehreichweite - direkte Anbindung in die Innenstadt
***************************************
Sollten Sie nach Durchsicht des Inserats eine Besichtigung wünschen, bitten wir um Anfrage über das Kontaktformular und Nennung ein paar konkreter Terminvorschläge.
***************************************
Für die Richtigkeit und Vollständigkeit der Angaben kann keine Gewähr bzw. Haftung übernommen werden. Weiteres weisen wir auf ein wirtschaftliches und/oder familiäres Naheverhältnis hin. Festgehalten wird, dass unser Maklerunternehmen gem. §17 MaklerG einseitig nur für den Vermieter tätig wird, nicht für den Mieter!
Noch nichts gefunden?
Wir informieren Sie als Erste/r über passende Immobilienangebote.
Legen Sie jetzt Ihren individuellen Suchagenten über folgenden Link an.
Wir senden Ihnen geeignete Immobilien unverbindlich vorab zu.
Suchagent anlegen - https://sulek-immobilien.service.immo/registrieren/de
Der Immobilienmakler erklärt, dass er – entgegen dem in der Immobilienwirtschaft üblichen Geschäftsgebrauch des Doppelmaklers – einseitig nur für den Vermieter tätig ist.
Infrastruktur / Entfernungen
Gesundheit
Arzt <1.000m
Apotheke <1.000m
Klinik <1.750m
Krankenhaus <1.000m
Kinder & Schulen
Schule <1.000m
Kindergarten <750m
Universität <2.000m
Höhere Schule <4.250m
Nahversorgung
Supermarkt <1.000m
Bäckerei <1.000m
Einkaufszentrum <3.250m
Sonstige
Geldautomat <1.000m
Bank <1.000m
Post <2.000m
Polizei <1.000m
Verkehr
Bus <250m
U-Bahn <1.500m
Straßenbahn <1.000m
Bahnhof <1.500m
Autobahnanschluss <3.250m
Angaben Entfernung Luftlinie / Quelle: OpenStreetMap
Eckdaten
| Gesamtmiete: | 3.990,00 € |
| Fläche: | 300,00 m² |
| Zimmer: | 8 |
Basisdaten zur Immobilie
| Objektnr: | 26047 |
| Art: | Haus - Einfamilienhaus |
| Land: | Österreich |
| Baujahr: | 1974 |
| Zustand: | Erstbezug |
| Alter: | Neubau |
| Gesamtmiete: | 3.990,00 € |
| Kaltmiete (netto): | 3.627,27 € |
| Kaltmiete: | 3.627,27 € |
| Provision: | Gemäß Erstauftraggeberprinzip bezahlt der Abgeber die Provision. |
| MwSt Gesamt: | 362,73 € |
| Wohnfläche: | 300,00 m² |
| Grundstücksfl.: | 900,00 m² |
| Zimmer: | 8 |
| Bäder: | 4 |
| WC: | 4 |
| Balkone: | 1 |
| Terrassen: | 1 |
| Garten: | 650,00 m² |
| Heizwärmebedarf: | D 150,02 kWh/m²a |
| fGEE: | D 1,78 |
Ausstattung
Parkett, Fliesen, Öl, Einbauküche, Südbalkon, Bad mit Fenster, Badewanne, Wasch/Trockenraum
Internet und TV
Information zur Internet und TV Versorgung hier
Ihre persönliche Beratung
M.A., MBA Philipp Sulek
Mittelsmann Philipp Sulek GmbH
ps@kaufmannsulek.at
+43 1 226 27 20
+43 660 199 19 88
