Lage der Immobilie
In der Donaustadt entsteht ein besonders attraktives Stadtquartier mit Wohnungen, Geschäften, Lokalen, Freiraum und zahlreichen Gemeinschafts- und Mobilitätsangeboten. Auch die Natur kommt nicht zu kurz, denn in unmittelbarer Nähe befindet sich der Badeteich Hirschstetten sowie die gleichnamigen, weitläufigen Blumengärten. Hinsichtlich der öffentlichen Anbindung gibt es zahlreiche Optionen: Die U2 (Haltestelle Hausfeldstraße) erreicht man fußläußig innerhalb von zehn Minuten. Die Haltestelle der Straßenbahn-Linie Prinzgasse ist 350 Meter entfernt; die Buslinien 85A und 95 A (Haltestelle Pirquetgasse) 150 Meter. In 300 bzw. 350 Metern Entfernung befinden sich die Buslinien 95B und 97 A (Haltestelle Zanggasse). Und wer mag, ist innerhalb von 20 Minuten in der Wiener Innenstadt.Beschreibung der Immobilie
BILLIGER WIRDS NIMMA! 6,5% WINTERRABATT AUF ALLE WOHNUNGEN! (ALLE ANGEFÜHRTEN PREISE SIND SCHON DIE AKTIONSPREISE!)
ZUSÄTZLICH GIBT ES PRO ZIMMER EINEN € 1000,- GUTSCHEIN VON XXXLUTZ!
AUF INS NEUE ZUHAUSE - AM BESTEN IN GRETL'S GARTEN!
In sehr guter Lage, wenige Minuten zu Fuß vom Hirschstettner Badeteich, entstehen hier 118 freifinanzierte Eigentumswohnungen. Neben dem idyllischen Badeteich mit Liegewiesen und Spielplätzen befinden sich in nächster Umgebung ebenso die Hirschstettner Blumengärten und zahlreiche andere Naherholungsgebiete. Fühlen Sie sich jeden Tag wie im Urlaub. Neben viel Grün, um die Seele baumeln zu lassen, erwartet Sie eine ausgezeichnete Infrastruktur.
Mit dem Auto erreichen Sie die City in ca. 20 Minuten, mit den Öffis in nur ca. 30 Minuten - nächste U-Bahn Anschlussstelle U2 Hausfeldstrasse.
Auch für Ihr leibliches Wohl und Ihre täglichen Bedürfnisse ist gesorgt: Restaurants, eine Apotheke und Nahversorger befinden sich in nächster Nähe.
FÜR IHRE KINDER IST GESORGT! Am angrenzenden Bildungscampus Berresgasse finden Sie vom Kindergarten bis zur Mittelschule ausgezeichnete Bildungseinrichtungen für Ihren Nachwuchs.
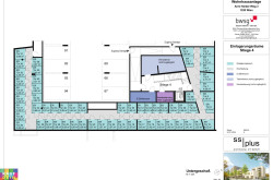
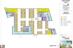
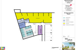
Die Wohnhausanlage setzt sich aus vier Gebäudeblöcken mit unterschiedlichen Höhen zusammen. Sie zeichnet sich durch geräumige Wohnungsgrundrisse und großzügige Freiflächen aus. Es gibt eine Garage, Einlagerungsräume, Kinderwagen- und Fahrradräume, einen geräumigen Gemeinschaftsraum für Ihre Partys sowie hauseigene Spielplätze.
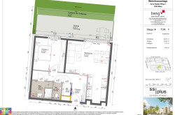
Wohnungstypen: 2–4 Zimmer
Wohnungsgrößen: von 54m² bis 112m²
Verschiedene Freiflächenvarianten: Loggia, Balkon, Terrasse
Ein Tiefgaragenplatz kann zusätzlich um € 29.202,45,- erworben werden. Begrenzte Stückzahl vorhanden!
Infrastruktur / Entfernungen
Gesundheit
Arzt <250m
Apotheke <275m
Klinik <1.150m
Krankenhaus <3.150m
Kinder & Schulen
Schule <225m
Kindergarten <150m
Universität <2.675m
Höhere Schule <2.650m
Nahversorgung
Supermarkt <275m
Bäckerei <275m
Einkaufszentrum <1.975m
Sonstige
Bank <675m
Geldautomat <275m
Post <675m
Polizei <1.175m
Verkehr
Bus <100m
U-Bahn <1.075m
Straßenbahn <300m
Bahnhof <1.075m
Autobahnanschluss <1.625m
Angaben Entfernung Luftlinie / Quelle: OpenStreetMap
Eckdaten
| Kaufpreis: | 327.651,00 € |
| Fläche: | 60,76 m² |
| Zimmer: | 2 |
Basisdaten zur Immobilie
| Objektnr: | 2744 |
| Art: | Wohnung |
| Land: | Österreich |
| Baujahr: | 2024 |
| Zustand: | Erstbezug |
| Alter: | Neubau |
| Kaufpreis: | 327.651,00 € |
| Provision: | Provisionsfrei |
| Betriebskosten: | 115,50 € |
| MwSt Gesamt: | 11,55 € |
| Wohnfläche: | 60,76 m² |
| Nutzfläche: | 60,76 m² |
| Zimmer: | 2 |
| Bäder: | 1 |
| WC: | 1 |
| Terrassen: | 1 |
| Garten: | 7,91 m² |
| Keller: | 3,86 m² |
| Heizwärmebedarf: | A 23,66 kWh/m²a |
| fGEE: | A 0,72 |
Ausstattung
Fliesen, Parkettboden, Fernwärme, Fußbodenheizung, Personenaufzug
Internet und TV
Information zur Internet und TV Versorgung hier
Ihre persönliche Beratung
Simone Unger-Ullmann
KDH Immobilien GmbH
simone@kaufdeinhaus.at
+43 660 340 32 29
