Beschreibung der Immobilie
IHR NEUES ZUHAUSE DIREKT AM HIRSCHSTETTNER BADETEICH – URLAUBSFEELING IN WIEN!
Willkommen in dieser einzigartigen Erstbezugswohnung im begehrten 1220 Wien! Diese Immobilie ist ideal für junge Familien, die ein harmonisches und komfortables Zuhause suchen, sowie für Investoren, die in eine attraktive Lage investieren möchten.
- Erstbezug: Genießen Sie die Vorzüge einer nagelneuen Wohnung und einem frischen Wohngefühl.
- Heizung: Die Fußbodenheizung sorgt für eine angenehme Wärmeverteilung und ein behagliches Ambiente in jedem Raum.
- Technologie: Dank der Glasfaseranbindung sind Sie bestens vernetzt und genießen schnelles Internet.
Die Verkehrsanbindung ist äußerst praktisch: Bus und Straßenbahn befinden sich in unmittelbarer Nähe, sodass Sie schnell und unkompliziert in die Innenstadt gelangen.
In der Umgebung finden Sie alles, was das Herz begehrt: Ärzte, Apotheken, Kliniken, Schulen und Kindergärten sind bequem zu Fuß erreichbar. Supermärkte und weitere Einkaufsmöglichkeiten sorgen für eine optimale Versorgung im Alltag.
Erleben Sie das Urlaubsfeeling direkt vor Ihrer Haustür am Hirschstettner Badeteich. Ob entspannende Spaziergänge, Picknicks mit der Familie oder sportliche Aktivitäten – dieser Standort bietet Ihnen eine hohe Lebensqualität und zahlreiche Freizeitmöglichkeiten.
Verpassen Sie nicht die Chance auf dieses besondere Wohngefühl! Kontaktieren Sie uns noch heute für weitere Informationen und einen Besichtigungstermin!
Direkt beim Hirschstettner Badesee entstehen 99 freifinanzierte Eigentumswohnungen. Neben dem idyllischen Badeteich mit Erholungsmöglichkeiten und Spielplätzen rund um den Teich bietet das neue Stadtgebiet grundlegende Einrichtungen zur Nahversorgung. Die Gebäude zeichnen sich durch eine Höhenstaffelung in vier vorgegebenen Bauklassen mit zwei bis maximal elf Geschoßen aus. Auf diese Weise wird eine ausreichende Belichtung der Gebäude und des Freiraums gewährleistet. Bei der Planung haben wir auch an Selbstversorger gedacht: bestehende Gewächshäuser sollen gemeinschaftlich genutzt werden. Ein großer Anteil der Dachflächen pro Bauplatz werden begrünt und auch begehbar sein.
Des Weiteren legen wir ein besonderes Augenmerk auf den optimalen Nutzungsmix von gewerblich und gemeinschaftlich genutzten Flächen: In den Erdgeschoßzonen ist Platz für Supermärkte, Lokale, eine Apotheke und Bäckerei sowie einen Kindergarten. Gemeinschaftsräume wie eine Bibliothek, einen Spieleverleih- und Multifunktionsraum bieten Möglichkeiten für eine individuelle Freizeitgestaltung.
Wasser ist ein charakteristisches Element des Gebietes und wird das neue Stadtviertel prägen. Die bestehenden Freiräume am Hirschstettner Badeteich werden durch Cafés und Aufenthaltsbereiche aufgewertet.
Ausreichend Grün- und Freiräume zu gestalten, ist uns besonders wichtig. Geplant sind Kinder- und Jugendspielplätze, Sportflächen für die aktiven Bewohner:innen und Grünflächen für Erholungssuchende.
Im vorwiegend autofreien Viertel überwiegen Rad- und Fußwege. Dennoch kommen Autobesitzer mit zahlreichen Tiefgaragen-Parkplätzen nicht zu kurz. Mobilitätsstationen bieten Bike und Carsharing; aber auch Serviceleistungen wie eine Fahrradreparaturwerkstatt an.
Für Elektrofahrzeugbesitzer:innen: Alle Stellplätze der BWSG-Objekte werden für die E-Mobilität vorbereitet.
Infrastruktur / Entfernungen
Gesundheit
Arzt <300m
Apotheke <500m
Klinik <775m
Krankenhaus <3.000m
Kinder & Schulen
Schule <400m
Kindergarten <150m
Universität <3.075m
Höhere Schule <3.025m
Nahversorgung
Supermarkt <550m
Bäckerei <600m
Einkaufszentrum <1.450m
Sonstige
Bank <775m
Geldautomat <550m
Post <825m
Polizei <900m
Verkehr
Bus <175m
U-Bahn <1.225m
Straßenbahn <450m
Bahnhof <1.225m
Autobahnanschluss <1.100m
Angaben Entfernung Luftlinie / Quelle: OpenStreetMap
Eckdaten
Objektnr: | 2581 |
Art: | Wohnung |
Land: | Österreich |
Baujahr: | 2023 |
Zustand: | Erstbezug |
Alter: | Neubau |
Kaufpreis: | 309.835,00 € |
Kaufpreis / m²: | 4.577,94 € |
Provision: | Provisionsfrei |
Betriebskosten: | 153,46 € |
MwSt Gesamt: | 15,35 € |
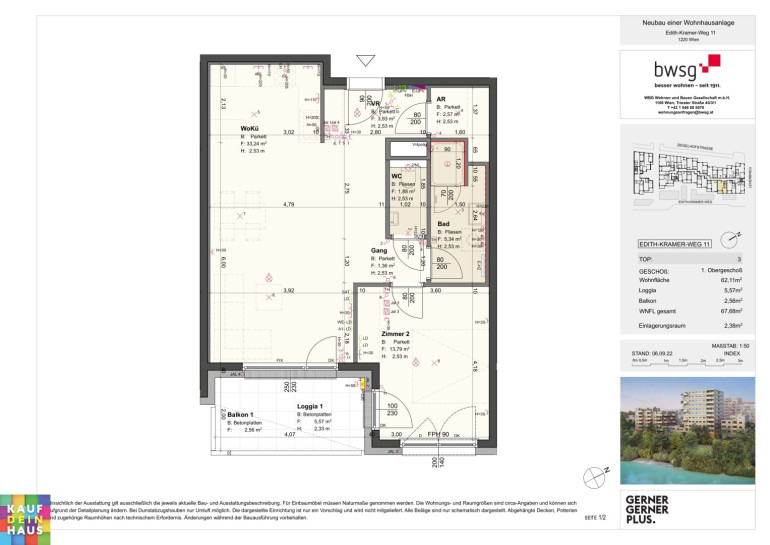
Wohnfläche: | 62,11 m² |
Nutzfläche: | 67,68 m² |
Lagerfläche: | 2,38 m² |
Zimmer: | 2 |
Balkone: | 1 |
Heizwärmebedarf: | B 27,62 kWh/m²a |
fGEE: | A 0,80 |
Ausstattung
Fliesen, Parkettboden, Fernwärme, Fußbodenheizung, Personenaufzug
Internet und TV
Information zur Internet und TV Versorgung hier
Ihre persönliche Beratung

Simone Unger-Ullmann
KDH Immobilien GmbH
E simone@kaufdeinhaus.at
T +43 660 340 32 29