2-Zimmer-Dachgeschosswohnung - Altach, Löwengasse / Top 8
Wohnung
- Dachgeschoß,
6844
Altach
,
Löwengasse
Lage der Immobilie
Das Wohnbauprojekt in der Löwengasse in Altach besticht durch ihre zentrale Lage und die hervorragende Infrastruktur. In unmittelbarer Nähe finden Sie Ärzte, Apotheken, Schulen und Kindergärten, die den Alltag erleichtern. Supermärkte und Bäckereien sind nur einen kurzen Fußweg entfernt, während Banken und Geldautomaten für Ihre finanziellen Angelegenheiten sorgen. Auch die Anbindung an öffentliche Verkehrsmittel wie Bus und Bahnhof sowie der Autobahnanschluss sind optimal. Hier wohnen Sie komfortabel und gut vernetzt!Beschreibung der Immobilie
Wohnbauförderung möglich!
In Altach entsteht eine moderne Kleinwohnanlage mit nur wenigen Einheiten – perfekt für alle, die Wert auf Wohnqualität, Ruhe und Nachhaltigkeit legen.
Die großzügig geschnittenen 2- bis 4-Zimmer-Wohnungen überzeugen durch durchdachte Grundrisse, hochwertige Ausstattung und helle Wohnräume. Dank der Kombination aus ruhiger Wohnlage und zentraler Erreichbarkeit genießen Sie hier die ideale Balance aus Entspannung und urbaner Nähe.
Besondere Highlights:
-
🏡 Großzügige 2- bis 4-Zimmer-Wohnungen – ideal für Familien, Paare oder anspruchsvolle Singles
-
🚗 10 KFZ-Tiefgaragenabstellplätze sorgen für komfortables Parken direkt im Haus
-
🌱 Effiziente Luftwärmepumpe in Kombination mit Photovoltaik-Anlage für umweltfreundliches Wohnen
-
🌲Moderne hinterlüftete Holzfassade mit natürlicher Ausstrahlung
-
❄️ Angenehmes Raumklima durch Fußbodenheizung mit Kühlfunktion
-
🌐 Glasfaseranschluss vorhanden – optimal für Homeoffice und Streaming
Dieses Projekt vereint architektonische Eleganz mit zukunftsweisender Technik – ein Zuhause zum Wohlfühlen, nachhaltig und werthaltig.
Sonderwünsche noch leicht umsetzbar.
In dieser Phase haben Sie die seltene Gelegenheit, aktiv an der Gestaltung Ihres künftigen Zuhauses teilzunehmen. Gemeinsam mit dem erfahrenen Team von der B&S 69 Wohnbau GmbH können Sie Sonderwünsche und Anpassungen einbringen, um sicherzustellen, dass Ihr neues Zuhause Ihren ganz persönlichen Lebensstil widerspiegelt.
Fazit:
Dieses Neubauprojekt vereint ästhetisches Design, wohnlichen Komfort und ein hohes Maß an Nachhaltigkeit.
Die großzügigen Grundrisse, die moderne Haustechnik und die ruhige, dennoch zentrale Lage schaffen ein Zuhause, das gleichermaßen Rückzugsort wie Lebensmittelpunkt ist.
Insgesamt entstehen neun exklusive Eigentumswohnungen, die höchsten Ansprüchen an Wohnqualität und Wohlbefinden gerecht werden.
Jetzt melden – und schon bald Ihr neues Zuhause in Altach entdecken!
Unsere Angaben beziehen sich auf die Auskünfte des Eigentümers. Irrtum und Änderungen vorbehalten.
Folgen Sie dem nachfolgenden Link für weitere Informationen zu den restlichen verfügbaren Wohnungen:
Kleinwohnanlage mit Kühlung, zentral gelegen in Altach
Noch nichts gefunden? Wir informieren Sie über geeignete Immobilienangebote noch vor allen anderen.
Legen Sie jetzt kostenlos Ihren individuellen Suchagenten unter folgendem Link an. Wir schicken Ihnen passende Immobilien exklusiv vorab zu.
Suchagent anlegen
Infrastruktur / Entfernungen
Gesundheit
Arzt <100m
Apotheke <600m
Krankenhaus <2.700m
Kinder & Schulen
Schule <175m
Kindergarten <500m
Universität <9.250m
Höhere Schule <1.850m
Nahversorgung
Supermarkt <400m
Bäckerei <325m
Einkaufszentrum <3.150m
Sonstige
Bank <350m
Geldautomat <350m
Post <1.900m
Polizei <375m
Verkehr
Bus <150m
Autobahnanschluss <775m
Bahnhof <975m
Flughafen <5.200m
Angaben Entfernung Luftlinie / Quelle: OpenStreetMap
Eckdaten
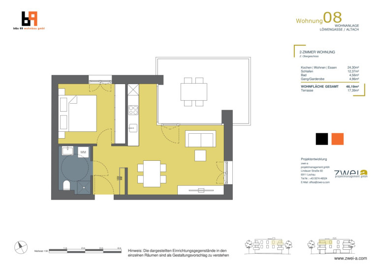
| Kaufpreis: | 351.000,00 € |
| Fläche: | 46,19 m² |
| Zimmer: | 2 |
Basisdaten zur Immobilie
| Objektnr: | 5681/572 |
| Art: | Wohnung - Dachgeschoß |
| Land: | Österreich |
| Baujahr: | 2026 |
| Zustand: | Erstbezug |
| Alter: | Neubau |
| Kaufpreis: | 351.000,00 € |
| Kaufpreis / m²: | auf Anfrage |
| Wohnfläche: | 46,19 m² |
| Zimmer: | 2 |
| Bäder: | 1 |
| WC: | 1 |
| Terrassen: | 1 |
| Stellplätze: | 1 |
| Keller: | 5,18 m² |
| Heizwärmebedarf: | B 33,52 kWh/m²a |
| fGEE: | A+ 0,66 |
Ausstattung
Parkett, Fliesen, Fußbodenheizung, Wohnküche / offene Küche, Personenaufzug, Ostbalkon, Dusche, Reinigungsservice, Kabel/Satelliten-TV, Tiefgarage
Internet und TV
Information zur Internet und TV Versorgung hier
Ihre persönliche Beratung
Mag. Daniel Ströhle
Rimo Immobilien GmbH
info@rimo.at
+43 5522 39303 21
