2-Zimmer-Wohnung mit Loggia zum Kauf - Auf der Schmelz - Top Infrastruktur - Ideale Vermietbarkeit - Garagenmöglichkeit! T6
Wohnung
,
1160
Wien
Lage der Immobilie
Schmelz, Josefstädter Straße, Ottakring, Hütteldorfer StraßeBeschreibung der Immobilie
Diese feine Stadtwohnung mit 2 Zimmern in 1160 Wien – gelegen zwischen den U-Bahnstationen U4 Hütteldorfer Straße und U6 Josefstädter Straße – steht ab sofort zum Kauf.
Bitte keine Anrufe, aufgrund gesetzlicher Vorgaben benötigen wir eine schriftliche Anfrage, am besten über den "Anfragebutton". Wir danken für Ihr Verständnis.
Anfragen werden von uns üblicherweise binnen 12h beantwortet.
Aufgrund der mitgesendeten Unterlagen und Links, landen wir leider oft im Spam-Filter.
Bitte kontrollieren Sie diesen auf Mails von alfred(at)kiesling-immobilien.at.
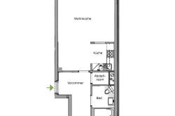
Die Wohnung in in sehr guter öffentlicher Anbindung befindet sich fußläufig von der Schmelz entfernt. Sie liegt im 1. Liftstock und verfügt über:
- Vorraum
- Abstellraum
- Badezimmer
- Zimmer
- Wohnküche mit
- Kochnische und Ausgang auf die
- Loggia
- Kellerabteil
- Garagenplatzmöglichkeit
Vom Vorraum erreichen Sie das Schlafzimmer, das Badezimmer, den Abstellraum sowie die Wohnküche mit einer Kochnische. Das Badezimmer verfügt über eine Badewanne, ein Waschbecken, Toilette sowie Waschmaschinenanschluss. In der Wohnküche finden Sie Raum für Ihren Ess- und Wohnbereich. Die Küche ist voll ausgestattet mit Herd, Backofen, Dunstabzug, Kühlschrank, Geschirrspüler sowie Ober- und Unterschränke und eine Arbeitsplatte. Auf die Loggia gelangen Sie vom Wohnbereich aus.
Der Wohnung ist ein Kellerabteil zugeordnet.
Die Wohnung ist straßenseitig ausgerichtet.
Geheizt wird mittels Zentralheizung. Abrechnung erfolgt nach individuellem Verbrauch.
Sie können einen Garagenplatz im Haus separat erwerben.
Seltene Gelegenheit! Zögern Sie nicht zu lange!
Ob für Sie als Eigenheim oder als Anlage - sie eignet sich ideal zum Vermieten, da Sie im „freien Mietzins“ liegen.
In diesem Haus stehen mehrere Wohnungen zum Verkauf mit Nutzflächen zwischen 42m2 und 92m2. Stöbern Sie auf unserer Homepage oder kontaktieren Sie und direkt per E-Mail!
Lagebeschreibung:
Die Liegenschaft auf welcher sich die Wohnung befindet, ist in einer überdurchschnittlich guten Lage und weist eine gute Verkehrsanbindung, Nahversorgung sowie Infrastruktur auf. Genauere Information können Sie dem Lageprofil nach Ihrer Anfrage.
Die Anbindung an den öffentlichen Verkehr ist gut. In rund 15 Gehminuten erreichen Sie Bus, U-Bahn und Straßenbahn.
Straßenbahn: 9 Camillo-Sitte-Gasse, rund 210m
Bus: 48A Camillo-Sitte-Gasse, rund 190m
U-Bahn: U3 Schweglerstraße 1km - rund 15 Gehminuten! Zu U3 Ottakring, U4 Hütteldorfer Straße, U6 Josefstädter Straße rund 20 Gehminuten
Lokalbahnhof: S45 Ottakring rd. 1,5km
Nahversorgung, Infrastruktur, Kinderbetreuung und ärztliche Versorgung:
Die Nahversorgung ist fußläufig sehr gut gesichert.
Bäckerei, Supermarkt, Drogerie: rd. 500m, rd. 190m, rd. 700m
Trafik, Bank, Postfiliale: rd. 250m, rd. 530m, rd. 720m
Kindergarten, Volksschule, Mittelschule rund im Umkreis von rund 500m
Div. ärztliche Versorgung: Allgemeinmediziner rd. 130m, Zahnarzt rd. 460m, Kinderarzt rd. 590m, Apotheke rd. 300m, Tierarzt rd. 740m
Zahlreiche Restaurants, Bars und Lokale befinden sich in unmittelbarer Gehweite, 200-500m
Die Vorschreibung der Hausverwaltung beläuft sich auf € 203,90 brutto und setzt sich wie folgt zusammen:
Betriebskosten € 132,92 netto zzgl. 10% Ust (€ 13,26) gesamt € 146,21 brutto
Rücklage € 57,69 netto zgl. 0% Ust gesamt € 57,69 brutto
Der Rücklagenstand per 09.09.2024 betrug € 11.003,73.
Bei Vertragsabschluss (Schriftform vorausgesetzt) fallen folgende Kosten bar an:
Kaufpreis 339.000,00 €
Eintragungsgebühr 3.729,00 €**
Grunderwerbssteuer 11.865,00 €
Provision 12.204,00 €
Gesamt* 366.798,00 €
*zzgl. Vertragserrichtung & Durchführung
**Eintragungsgebühr ist derzeit abgeschafft (bis 06/2026). Voraussetzung: es wird Hauptwohnsitz im neuen Eigenheim für zumindest 5 Jahre begründet
Ein Energieausweis der Klasse B, mit einem Heizwärmebedarf von 54,00 kWh/m²a, fGEE 0,88 Klasse C, wurde übergeben. Es wird ausdrücklich festgehalten, dass vom Verwmittler keine Haftung für die Richtigkeit und die Höhe des Energieausweises übernommen wird. Der tatsächliche Energieverbrauch ist abhängig vom individuellen Nutzerverhalten.
Wir weisen darauf hin, dass zwischen dem Vermittler und dem zu vermittelnden Dritten ein familiäres oder wirtschaftliches Naheverhältnis besteht.
Der Vermittler ist als Doppelmakler tätig.
Infrastruktur / Entfernungen
Gesundheit
Arzt <500m
Apotheke <500m
Klinik <1.000m
Krankenhaus <2.000m
Kinder & Schulen
Schule <500m
Kindergarten <500m
Universität <1.000m
Höhere Schule <1.000m
Nahversorgung
Supermarkt <500m
Bäckerei <500m
Einkaufszentrum <1.000m
Sonstige
Geldautomat <500m
Bank <1.000m
Post <1.000m
Polizei <1.000m
Verkehr
Bus <500m
U-Bahn <1.000m
Straßenbahn <500m
Bahnhof <1.000m
Autobahnanschluss <5.000m
Angaben Entfernung Luftlinie / Quelle: OpenStreetMap
Eckdaten
| Objektnr: | 3716 |
| Art: | Wohnung |
| Land: | Österreich |
| Zustand: | Gepflegt |
| Alter: | Neubau |
| Kaufpreis: | 339.000,00 € |
| Provision: | 12.204,00 € inkl. 20% USt. |
| Betriebskosten: | 132,92 € |
| MwSt Gesamt: | 13,29 € |
| Wohnfläche: | 53,98 m² |
| Nutzfläche: | 60,27 m² |
| Zimmer: | 2 |
| Bäder: | 1 |
| WC: | 1 |
| Heizwärmebedarf: | B 54,00 kWh/m²a |
| fGEE: | C 0,88 |
Ausstattung
Parkett, Fliesen, Zentralheizung, Einbauküche, Personenaufzug, Westbalkon, Dusche, Badewanne, Tiefgarage
Internet und TV
Information zur Internet und TV Versorgung hier
Ihre persönliche Beratung
Alfred Xaver Kiesling
Alfred X. Kiesling - Immobilien
Alfred@kiesling-immobilien.at
0664 16 45 458
+ 43 664 16 45 45 8
