Exklusive Dachgeschosswohnung in Grenznähe
Wohnung
- Dachgeschoß,
6343
Erl
Lage der Immobilie
Erl ist eine Gemeinde mit rund 1.623 Einwohnern (Stand: 1. Jänner 2025) im Bezirk Kufstein in Tirol. Bekannt ist der Ort weit über die Landesgrenzen hinaus aufgrund der traditionsreichen Passionsspiele sowie der Tiroler Festspiele Erl.
Erl ist die nördlichste gelegene Gemeinde in Tirol und etwa 15 Kilometer von Kufstein entfernt, direkt an der Grenze zu Bayern.
Die malerische Naturlandschaft begeistert im Sommer wie im Winter gleichermaßen und lädt zu zahlreichen Freizeitaktivitäten ein. Ein besonderes Naturjuwel ist die „Blaue Quelle“, deren Wasser – je nach Sonneneinstrahlung – in faszinierenden Grün- und Türkistönen schimmert und wie ein smaragdgrünes Herz leuchtet. Nur wenige Minuten entfernt befindet sich ein romantischer Wasserfall, der als Kraftplatz gilt.
Für Wanderfreunde bietet Erl eine Vielzahl an abwechslungsreichen Routen, die herrliche Ausblicke und frische Bergluft garantieren. In der Umgebung laden zudem mehrere idyllische Badeseen zum Baden und Entspannen ein.
Auch im Winter hat Erl viel zu bieten: Die SkiWelt Wilder Kaiser–Brixental, eines der größten Skigebiete Österreichs, ist in wenigen Autominuten erreichbar und bietet erstklassiges Skivergnügen auf bestens präparierten Pisten.
Erl punktet zudem mit einer guten Verkehrsanbindung. Die Autobahnanschlüsse Oberaudorf und Kufstein sind nur wenige Autominuten entfernt, wodurch sowohl München (ca. 86 km) als auch Innsbruck (ca. 92 km) bequem erreichbar sind. Die nächsten Bahnhöfe befinden sich in Kufstein (ca. 14 km) und Oberaudorf (ca. 6 km).
Die Infrastruktur in Erl ist gut: Ein kleiner Supermarkt, eine Bäckerei, Kindergarten, Volksschule, Ärzte sowie gemütliche Gastronomiebetriebe sind im Ort vorhanden.
Erl – ein schmuckes Dorf, das Tradition, Natur und Erholung harmonisch vereint.
Beschreibung der Immobilie
Grenznah & Hochwertig: Erstbezug mit Bergblick I 178 m² Wohnfläche I Energetisch saniert
Diese exklusive Dachgeschosswohnung in Erl vereint architektonischen Charme mit modernem Wohnkomfort.
Nach einer umfassenden Kernsanierung (2024) präsentiert sich das gesamte Objekt auf neuestem energetischen und technischen Stand – klar, offen und hochwertig.
Die Wohnung befindet sich im 2. Obergeschoss eines charmanten Wohnhauses mit nur vier Einheiten.
Der Zugang erfolgt über eine Treppe, ein Lift ist nicht vorhanden – die Wohnung erstreckt sich über das gesamte Dachgeschoss und bietet dadurch Ruhe und einen schönen Ausblick.
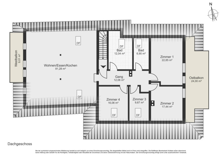
Auf rund 178 m² Wohnfläche erwartet Sie ein außergewöhnlich großzügiger Wohnraum mit sichtbaren Holzbalken, weitläufigen Fensterfronten und einem beeindruckenden Raumgefühl.
Highlights:
- Großzügige ca. 178 m² Wohnfläche auf einer Ebene
- Lichtdurchfluteter Wohn-, Ess- & Kochbereich (ca. 80 m²)
- Zwei sonnige Balkone mit Berg- & Grünblick
- Vier individuell nutzbare Zimmer
- Zwei hochwertige Tageslichtbäder (davon eines mit Wanne & Doppelwaschtisch)
- Erstbezug nach kompletter Kernsanierung
- Fußbodenheizung & Luft-Wärmepumpe
- Zwei Freistellplätze mit Vorbereitung für E-Ladestation
- Großes Kellerabteil (ca. 16 m²)
- Ruhige Lage zwischen Kufstein & der deutschen Grenze
Lage
Erl liegt zwischen Kufstein und der deutschen Grenze, eingebettet in eine ruhige, grüne Umgebung mit perfekter Anbindung.
Idealer Ausgangspunkt für Berg- und Skibegeisterte: Erl gilt als Tor zu Tirols vielfältiger Berg- und Skiwelt – von hier aus erreichen Sie in kurzer Zeit die Regionen Wilder Kaiser, Kufsteinerland und Alpbachtal sowie über die A12 auch die Zillertaler Bergwelt.
- Nur wenige Minuten zur A93 / A12
- Bahnhof Oberaudorf in kurzer Fahrzeit erreichbar
- Nahversorger, Kindergarten und Schule im Ort
- Spazier- und Radwege direkt vor der Haustür
- Kulturelle Highlights: Passionsspielhaus & Festspielhaus Erl
Fazit
Eine Dachgeschosswohnung für Menschen, die Großzügigkeit, Stil und Qualität schätzen.
Ideal für Paare oder Familien, die ein modernes Zuhause mit Tiroler Charakter suchen – oder für Grenzgänger, die das Beste aus beiden Welten genießen möchten.
Erleben Sie Wohnen auf neuem Niveau – in Erl, wo Tirol und Bayern sich treffen.
Zögern Sie nicht – vereinbaren Sie noch heute einen Besichtigungstermin.
Wir freuen uns auf Ihre Kontaktaufnahme und darauf, Ihnen diese besondere Immobilie persönlich zu zeigen.
Eckdaten
| Kaufpreis: | 675.000,00 € |
| Fläche: | 178,30 m² |
| Zimmer: | 5 |
Basisdaten zur Immobilie
| Objektnr: | 0009000528 |
| Art: | Wohnung - Dachgeschoß |
| Land: | Österreich |
| Baujahr: | 1985 |
| Kaufpreis: | 675.000,00 € |
| Provision: | 3% des Kaufpreises plus 20% USt. |
| Betriebskosten: | 132,68 € |
| Heizkosten: | 62,59 € |
| Wohnfläche: | 178,30 m² |
| Zimmer: | 5 |
| Bäder: | 2 |
| WC: | 2 |
| Balkone: | 2 |
| Keller: | 15,99 m² |
| Heizwärmebedarf: | B 39,40 kWh/m²a |
| fGEE: | A 0,77 |
Ausstattung
Zentralheizung
Internet und TV
Information zur Internet und TV Versorgung hier
Ihre persönliche Beratung
Dominique Armbruster
Raiffeisen Tirol Kufstein
dominique.armbruster@rbk.at
43537220050183
+43 5372 200-50183
