HEUBERG | ARCHITEKTUR MIT WEITBLICK
Haus
- Doppelhaushälfte,
5023
Heuberg
Beschreibung der Immobilie
DRACHENSCHAUEN HEUBERG | ARCHITEKTUR MIT WEITBLICK
Architektenhaus mit Wintergarten und Gaisbergblick
Allgemein
In ruhiger Höhenlage über Salzburg, am begehrten Heuberg, präsentiert sich dieses architektonisch markante Wohnhaus mit großzügiger Glasfront, Wintergarten und sonniger Südostausrichtung.
Die Kombination aus moderner Linienführung, massiver Bauweise und lichtdurchflutetem Innenraum schafft ein Wohngefühl, das gleichermaßen offen, strukturiert und naturverbunden wirkt – ideal für Menschen, die Raum, Ruhe und Weitblick schätzen.
Grundstück
Das Grundstück umfasst rund 290 m² und liegt in sonniger Hanglage mit freiem Blick auf den Gaisberg. Der Garten ist terrassiert angelegt, die Zufahrt erfolgt über eine private Erschließungsstraße mit geplanter Asphaltierung.
Die Grundstücksgröße bietet ein ausgewogenes Verhältnis zwischen Freifläche und Pflegeaufwand, die süd- und ostseitige Ausrichtung sorgt für ganztägige Belichtung. Die Widmung lautet auf Bauland-Wohngebiet; die Bebauung erfolgte in offener Bauweise mit zwei Vollgeschoßen und ausgebautem Dachraum.
Beschreibung Haus
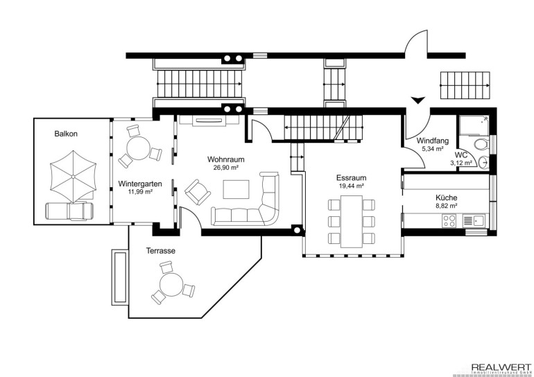
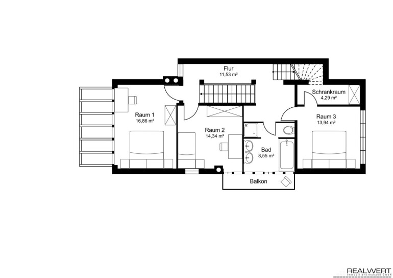
Im Erdgeschoss bildet der großzügige Wohn- und Essbereich mit offenem Kamin und anschließender Küche den Mittelpunkt des Hauses. Große Glasflächen und der vorgelagerte Wintergarten verbinden Innen- und Außenraum auf harmonische Weise und schaffen ein helles, einladendes Ambiente. Im Obergeschoss befinden sich drei Schlafräume, ein Schrankraum und ein Badezimmer mit Badewanne, Dusche und Doppelwaschtisch. Das Dachstudio ergänzt die Wohnfläche um einen hellen, offenen Raum, der sich ideal als Büro, Atelier oder Rückzugsbereich eignet.
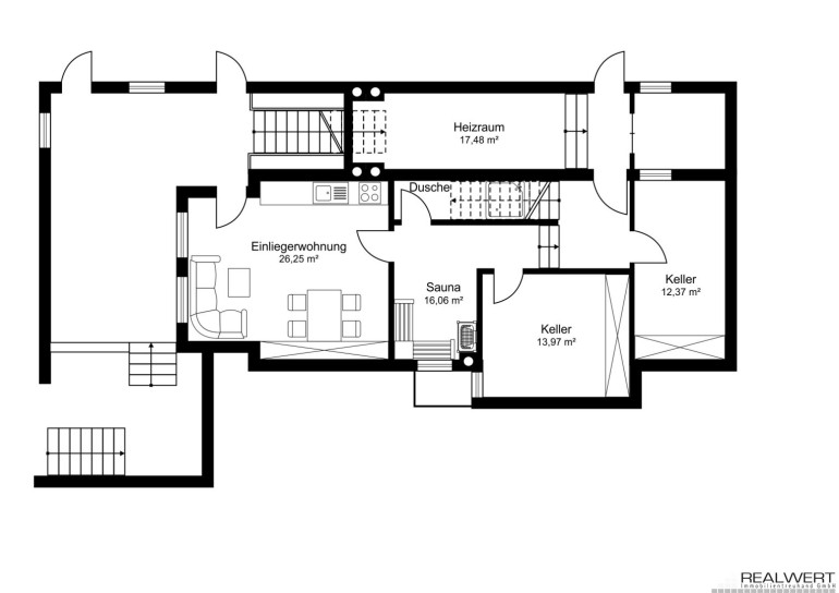
Im Untergeschoss stehen neben Lager- und Technikräumen auch eine Sauna mit Duschzone sowie ein separater, eigenständig zugänglicher Bereich zur Verfügung, der als Gäste- oder Einliegertrakt genutzt werden kann.
Beschreibung Einliegertrakt
Der im Untergeschoss befindliche, südseitig belichtete Einliegerbereich verfügt über einen eigenen Zugang, einen Aufenthaltsraum sowie eine separate Dusche.
Diese Einheit eignet sich ideal für Gäste, Au-pair oder berufliche Nutzung im Sinne eines Homeoffices und erweitert die Nutzungsmöglichkeiten des Hauses deutlich.
Bauqualität und Konstruktion
Das Gebäude wurde 1992 in massiver Ziegelbauweise mit Stahlbetondecken errichtet. Das Satteldach mit Holzdachstuhl und Ziegeldeckung, die Holzfenster mit Isolierverglasung sowie die weiß verputzte Fassade dokumentieren handwerkliche Qualität und klassische Bauweise.
Sämtliche Unterlagen und Pläne aus dem Bauverfahren bestätigen eine solide, detailorientierte Errichtung. Die Substanz zeigt sich augenscheinlich trocken, statisch einwandfrei und durchgängig gepflegt.
Technik und Energie
Die Beheizung erfolgt über eine Gas-Zentralheizung mit Heizkörpern in allen Geschossen. Ein Kaminzug im Wohnraum ermöglicht den Betrieb eines Zusatzofens.
Der Energieausweis weist einen Heizwärmebedarf von 75 kWh/m²a (Klasse D) aus. Sämtliche haustechnischen Anlagen sind funktionsfähig.
Garten und Außenflächen
Die Außenbereiche gliedern sich in mehrere Ebenen mit Terrassen, Holzdecks und Rasenflächen.
Besonders prägnant ist die südseitige Hauptterrasse mit freiem Blick auf den Gaisberg, die einen fließenden Übergang vom Wintergarten ins Freie bildet.
Der Garten ist bewusst naturnah angelegt, bietet jedoch ausreichend Struktur für individuelle Gestaltung oder repräsentative Nutzung.
Die ruhige, grüne Umgebung betont den Wohncharakter inmitten einer begehrten Heuberger Wohnlage.
Parken und Zufahrt
Zwei Pkw-Stellplätze befinden sich direkt vor dem Haus.
Die Zufahrt verläuft über den Bittsolweg, eine reine Anrainerstraße ohne Durchzugsverkehr. Die Verbindung in die Stadt Salzburg, nach Parsch oder Guggenthal ist in wenigen Minuten gegeben – sowohl mit dem Pkw als auch mit öffentlichen Verkehrsmitteln.
Zustand
Das Gebäude präsentiert sich in einem gepflegten, dem Baujahr entsprechenden Gesamtzustand. Oberflächen und Außenbereiche weisen teilweise Erneuerungsbedarf auf, insbesondere bei Bodenbelägen und Holzdecks.
Die Bausubstanz selbst ist solide und ohne erkennbare Mängel. Modernisierungen lassen sich gezielt umsetzen, ohne strukturelle Eingriffe vorzunehmen.
Fazit
Diese Immobilie am Heuberg steht für klare Architektur, solide Bauweise und einen außergewöhnlichen Ausblick auf den Gaisberg.
Ein Haus für Menschen, die Wert auf Raum, Licht und Lage legen – ein Ort, an dem man nicht nur wohnt, sondern ankommt.
Der Vermittler ist als Doppelmakler tätig.
Infrastruktur / Entfernungen
Gesundheit
Arzt <2.000m
Apotheke <2.000m
Klinik <4.500m
Krankenhaus <5.000m
Kinder & Schulen
Schule <2.500m
Kindergarten <2.500m
Universität <5.000m
Höhere Schule <4.000m
Nahversorgung
Supermarkt <2.000m
Bäckerei <2.500m
Einkaufszentrum <4.000m
Sonstige
Bank <2.000m
Geldautomat <2.000m
Post <2.000m
Polizei <3.500m
Verkehr
Bus <1.000m
Bahnhof <3.500m
Autobahnanschluss <3.000m
Flughafen <8.500m
Angaben Entfernung Luftlinie / Quelle: OpenStreetMap
Eckdaten
| Kaufpreis: | 825.000,00 € |
| Fläche: | 171,00 m² |
| Zimmer: | 6 |
Basisdaten zur Immobilie
| Objektnr: | 523/1198 |
| Art: | Haus - Doppelhaushälfte |
| Land: | Österreich |
| Baujahr: | 1992 |
| Zustand: | Gepflegt |
| Alter: | Neubau |
| Kaufpreis: | 825.000,00 € |
| Provision: | 3% des Kaufpreises zzgl. 20% USt. |
| Betriebskosten: | 147,00 € |
| Heizkosten: | 300,00 € |
| Wohnfläche: | 171,00 m² |
| Nutzfläche: | 240,00 m² |
| Grundstücksfl.: | 290,00 m² |
| Zimmer: | 6 |
| Bäder: | 2 |
| WC: | 3 |
| Terrassen: | 4 |
| Stellplätze: | 1 |
| Keller: | 68,65 m² |
| Heizwärmebedarf: | D 104,00 kWh/m²a |
| fGEE: | C 1,11 |
Ausstattung
Parkett, Gas, Kamin, Zentralheizung, Einbauküche, Wohnküche / offene Küche, Südbalkon, Bad mit Fenster, Badewanne, Carport, Sauna
Internet und TV
Information zur Internet und TV Versorgung hier
Ihre persönliche Beratung
Thomas Lainer
Realwert- Immobilientreuhand GmbH
t.lainer@realwert.at
+43 662 82 10 75-0
F +43 662 82 10 75-19
