Lage der Immobilie
Diese Immobilie befindet sich in unmittelbarer Nähe zum Grazer Augarten – einer der gefragtesten Wohngegenden der Stadt. Die Kombination aus urbaner Infrastruktur und direkter Nähe zu großzügigen Grünflächen macht diese Lage besonders attraktiv. Einkaufsmöglichkeiten für den täglichen Bedarf befinden sich in kurzer Gehdistanz (Supermarkt ca. 300 m). Kindergarten, Schule sowie höhere Schulen und Universitäten sind in wenigen Minuten erreichbar. Die Anbindung an den öffentlichen Verkehr ist ausgezeichnet – Bus- und Straßenbahnhaltestellen liegen praktisch vor der Haustüre. Der Augarten selbst bietet weitläufige Erholungsflächen und Spazierwege entlang der Mur. Innenstadt, Jakominiplatz und Hauptbahnhof sind rasch erreichbar. Parkmöglichkeiten bestehen in der blauen Zone direkt vor dem Haus; eine Anwohnerparkgenehmigung liegt bei rund 14–17 € monatlich.Beschreibung der Immobilie
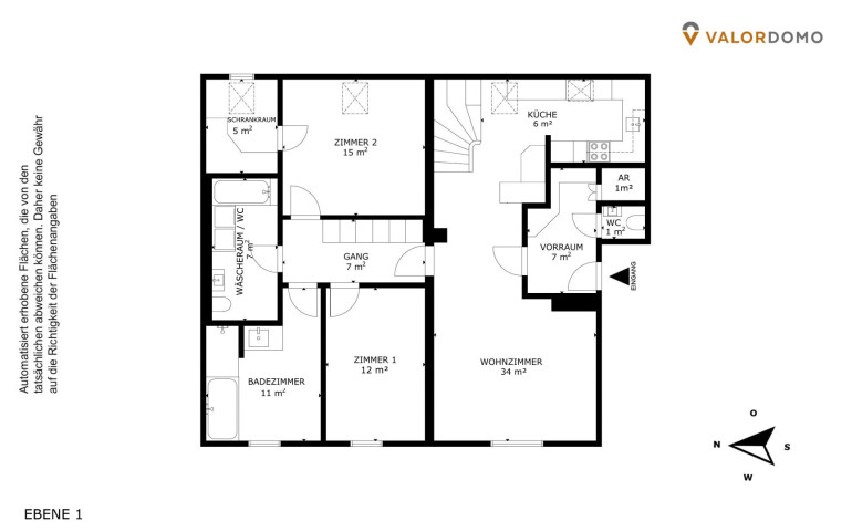
Diese sehr gepflegte Maisonettewohnung befindet sich im 3. Obergeschoss eines im Jahr 1983 errichteten Wohnhauses, das 2024 umfassend generalsaniert wurde.
Die Wohnung erstreckt sich über zwei Ebenen und bietet rund 126 m² Wohnfläche (laut Nutzwertgutachten). Ein besonderes Highlight ist die ca. 30 m² große, westseitig ausgerichtete Dachterrasse mit Blick auf die Baumkronen des Augartens. Dank transparenter Winterplane ist eine Nutzung auch in den kühleren Monaten möglich.
Der Eingangsbereich verfügt über einen Vorraum mit Gäste-WC und praktischem Abstellraum. Von hier gelangt man in den offen gestalteten Wohn- und Essbereich mit angrenzender, 2020 erneuerter Küche, der das Herzstück der Wohnung bildet. Auf dieser Ebene befinden sich zudem ein separater Schlafbereich mit Einbauschränken, ein großzügiges Schlafzimmer mit begehbarem Schrankraum, ein weiteres Zimmer – ideal als Kinder- oder Arbeitszimmer – sowie das moderne Tageslichtbad, das 2022 erneuert wurde. Das ursprüngliche Innenbad wurde in einen funktionalen Wäscheraum mit zusätzlichem WC umgebaut.
Über eine Holztreppe erreicht man den ausgebauten Spitzboden, der derzeit als Lounge- bzw. zusätzlicher Wohnbereich genutzt wird. Von hier aus betritt man die großzügige Dachterrasse – ein privater Rückzugsort über den Dächern von Graz mit Westausrichtung.
Zur Wohnung gehört auch ein ca. 11 m² großes Kellerabteil. Das fix verbaute Mobiliar, insbesondere Küche und maßgefertigte Einbauten, ist im Kaufpreis enthalten.
Das Gebäude wird von der Gemeinnützigen Grazer Wohnungsgenossenschaft (GGW) verwaltet. Im Zuge der Sanierung wurde ein Darlehen durch die Eigentümergemeinschaft aufgenommen, dessen Rückzahlung über die monatliche Instandhaltungsrücklage erfolgt. Das anteilige Darlehen beträgt zuletzt rund 35.000 EUR. Beim Kauf sind dafür Grunderwerbssteuer (3,5%) und Grundbucheintragungsgebühr (1,1%) zu berücksichtigen.
Die Wohnung präsentiert sich in einem sehr gepflegten Zustand, wurde laufend instand gehalten und mit viel Liebe zum Detail verbessert. Gerne stellen wir Ihnen vorab einen virtuellen Rundgang durch die Wohnung zur Verfügung und vereinbaren gerne einen persönlichen Besichtigungstermin mit Ihnen.
Noch nichts gefunden? Wir informieren Sie über geeignete Immobilienangebote noch vor allen anderen.
Legen Sie jetzt Ihren individuellen Suchagenten unter folgendem Link an. Wir schicken Ihnen passende Immobilien exklusiv vorab zu.
Suchagent anlegen - https://valordomo-immobilien.service.immo/registrieren/de
Der Vermittler ist als Doppelmakler tätig.
Infrastruktur / Entfernungen
Gesundheit
Arzt <500m
Apotheke <1.000m
Klinik <1.000m
Krankenhaus <1.500m
Kinder & Schulen
Schule <500m
Kindergarten <500m
Universität <500m
Höhere Schule <1.000m
Nahversorgung
Supermarkt <500m
Bäckerei <1.000m
Einkaufszentrum <1.000m
Sonstige
Geldautomat <500m
Bank <500m
Post <500m
Polizei <1.000m
Verkehr
Bus <500m
Straßenbahn <500m
Autobahnanschluss <4.000m
Bahnhof <1.500m
Flughafen <8.500m
Angaben Entfernung Luftlinie / Quelle: OpenStreetMap
Eckdaten
| Kaufpreis: | 459.000,00 € |
| Fläche: | 126,00 m² |
| Zimmer: | 4 |
Basisdaten zur Immobilie
| Objektnr: | 5408/411 |
| Art: | Wohnung - Maisonette |
| Land: | Österreich |
| Baujahr: | 1983 |
| Zustand: | Gepflegt |
| Alter: | Neubau |
| Kaufpreis: | 459.000,00 € |
| Provision: | 3% des Kaufpreises zzgl. 20% USt. |
| Betriebskosten: | 344,69 € |
| Heizkosten: | 136,69 € |
| MwSt Gesamt: | 61,81 € |
| Wohnfläche: | 126,00 m² |
| Zimmer: | 4 |
| Bäder: | 1 |
| WC: | 2 |
| Terrassen: | 1 |
| Keller: | 11,40 m² |
Ausstattung
Parkett, Fliesen, Laminatboden, Fernwärme, Einbauküche, Wohnküche / offene Küche, Westbalkon, Dusche, Bad mit Fenster, Badewanne, Kabel/Satelliten-TV
Internet und TV
Information zur Internet und TV Versorgung hier
Ihre persönliche Beratung
DI (FH) Julian Englich
ValorDomo Immobilien GmbH
office@valordomo.com
+43 676 3136555
+43 676 3136555
