Maisonette in Toplage beim Grazer Augarten mit sonniger West-Terrasse
Wohnung
- Maisonette,
8010
Graz
Lage der Immobilie
Die Maisonettewohnung befindet sich direkt beim beliebten Augarten – eine der begehrtesten Wohnlagen der Stadt. Die ruhige, grüne Umgebung und die Nähe zur Innenstadt machen diesen Standort besonders attraktiv. Alle wichtigen Einrichtungen des täglichen Bedarfs sind bequem zu Fuß erreichbar: Ein Supermarkt liegt rund 300 m entfernt, Schule und Kindergarten befinden sich in unmittelbarer Nähe, und auch Universitäten sowie höhere Schulen sind binnen weniger Minuten erreichbar. Straßenbahn- und Bushaltestellen liegen nur wenige Meter entfernt, wodurch die Anbindung an das öffentliche Verkehrsnetz ausgezeichnet ist. Freizeit- und Erholungsmöglichkeiten bietet der direkt angrenzende Augarten mit weitläufigen Grünflächen und Spazierwegen entlang der Mur. Durch die zentrale Lage sind Innenstadt, Jakominiplatz und Hauptbahnhof ebenfalls rasch erreichbar. Parkmöglichkeiten sind in der blauen Zone direkt vor dem Haus vorhanden – eine Anwohnerparkgenehmigung kostet ca. 14 – 17 € pro Monat.Beschreibung der Immobilie
Diese außergewöhnlich gepflegte Maisonettewohnung liegt im 3. Stock eines im Jahr 1983 errichteten Wohnhauses, das zwischen 2024 und 2025 generalsaniert wurde.
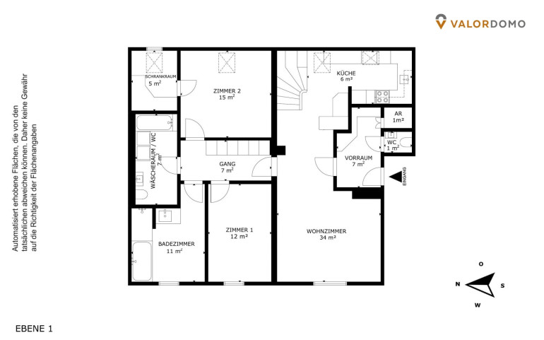
Die Wohnung besticht durch ihren hellen, großzügigen Grundriss mit rund 126 m² Wohnfläche (laut Nutzwertgutachten) - verteilt auf zwei Ebenen - und eine ca. 30 m² große, westseitig ausgerichtete Dachterrasse mit Blick auf die Baumkronen des Augartens. Eine transparente Winterplane ermöglicht die Nutzung auch in den kühleren Monaten.
Der Eingangsbereich bietet einen Vorraum mit Gäste-WC und praktischem Abstellraum. Von hier gelangt man in den offenen Wohn- und Essbereich mit angrenzender Küche, die 2020 erneuert wurde. Auf dieser Ebene befinden sich außerdem ein Schlafbereich mit Gang und Einbauschränken, ein großzügiges Schlafzimmer mit begehbarem Schrankraum, ein weiteres Zimmer (z. B. Kinder- oder Arbeitszimmer) sowie das moderne Bad mit Fenster, das 2022 erneuert wurde. Das ursprüngliche Innenbad wurde zu einem Wäscheraum mit zusätzlichem WC umgebaut.
Über eine Holztreppe führt der Weg in den ausgebauten Spitzboden, der als zusätzlicher Wohn- oder Entspannungsbereich (Lounge) genutzt wird. Von hier betritt man die herrliche Dachterrasse mit Westausrichtung – ein privater Rückzugsort über den Dächern von Graz.
Rund um das Haus befindet sich eine blaue Zone, wo es für Anwohner viele freie Parkplätze gibt. Bewohner des Hauses sind berechtigt eine Dauerparkgenehmigung von der Stadt Graz zu bekommen, wodurch man defacto meist direkt vor dem Haus ein KFZ abstellen kann.
Zur Wohnung gehören außerdem ein Kellerabteil sowie ein eigener Fahrradabstellraum, der ausschließlich dieser Einheit zugeordnet ist. Das fix verbaute Mobiliar (u. a. Küche und maßgefertigte Einbauten) ist im Kaufpreis enthalten. Das schön renovierte Haus verfügt nicht über einen Lift. Die Liegenschaft wird von der Gemeinnützigen Grazer Wohnungsgenossenschaft (GGW) verwaltet. Im Zuge der Sanierung wurde ein Darlehen der Eigentümergemeinschaft aufgenommen, dessen Rückzahlung künftig über die monatliche Instandhaltungsrücklage erfolgt. Der für diese Wohnung anteilige Betrag am Sanierungsdarlehen beläuft sich derzeit auf ca. 36.000,- EUR. Für den zum Zeitpunkt des Verkaufs noch aushaftenden Betrag des Sanierungsdarlehens fallen bei Erwerb ebenfalls die Grunderwerbsteuer sowie die Grundbucheintragungsgebühr an.
Die Wohnung befindet sich in einem sehr gepflegten Zustand, wurde laufend verbessert und mit viel Liebe zum Detail instand gehalten. Die derzeitigen Eigentümer möchten die Wohnung noch bis Ende Jänner 2026 selbst nutzen.
Wenn Sie anfragen, stellen wir Ihnen vorab bereits die Möglichkeit zur Verfügung einen virtuellen Rundgang durch die Wohnung zu machen. Sehr gerne zeigen wir Ihnen die Immobilie im Anschluss in einer persönlichen Besichtigung. Wir freuen uns auf Ihre Kontaktaufnahme!
Noch nichts gefunden? Wir informieren Sie über geeignete Immobilienangebote noch vor allen anderen.
Legen Sie jetzt Ihren individuellen Suchagenten unter folgendem Link an. Wir schicken Ihnen passende Immobilien exklusiv vorab zu.
Suchagent anlegen - https://valordomo-immobilien.service.immo/registrieren/de
Der Vermittler ist als Doppelmakler tätig.
Infrastruktur / Entfernungen
Gesundheit
Arzt <500m
Apotheke <1.000m
Klinik <1.000m
Krankenhaus <1.500m
Kinder & Schulen
Schule <500m
Kindergarten <500m
Universität <500m
Höhere Schule <1.000m
Nahversorgung
Supermarkt <500m
Bäckerei <1.000m
Einkaufszentrum <1.000m
Sonstige
Geldautomat <500m
Bank <500m
Post <500m
Polizei <1.000m
Verkehr
Bus <500m
Straßenbahn <500m
Autobahnanschluss <4.000m
Bahnhof <1.500m
Flughafen <8.500m
Angaben Entfernung Luftlinie / Quelle: OpenStreetMap
Eckdaten
| Objektnr: | 5408/411 |
| Art: | Wohnung - Maisonette |
| Land: | Österreich |
| Baujahr: | 1983 |
| Zustand: | Gepflegt |
| Alter: | Neubau |
| Kaufpreis: | 489.000,00 € |
| Provision: | 3% des Kaufpreises zzgl. 20% USt. |
| Betriebskosten: | 344,69 € |
| Heizkosten: | 136,69 € |
| MwSt Gesamt: | 61,81 € |
| Wohnfläche: | 126,00 m² |
| Zimmer: | 4 |
| Bäder: | 1 |
| WC: | 2 |
| Terrassen: | 1 |
| Keller: | 11,40 m² |
Ausstattung
Parkett, Fliesen, Laminatboden, Fernwärme, Einbauküche, Wohnküche / offene Küche, Westbalkon, Bad mit Fenster, Badewanne, Dusche, Kabel/Satelliten-TV
Internet und TV
Information zur Internet und TV Versorgung hier
Ihre persönliche Beratung
DI (FH) Julian Englich
ValorDomo Immobilien GmbH
office@valordomo.com
+43 676 3136555
+43 676 3136555
