16m² Terrassenfläche!!! DG-Neubauwohnung in der Koloniestraße!!!
Wohnung
- Etage,
1210
Wien
Beschreibung der Immobilie
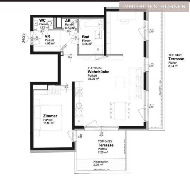
2-Zimmer Neubauwohnung (59,33m²)!
Große Freifläche (15,32m²)
Top-Ausstattung! Optimale Infrastruktur!!
Die Wohnung befindet sich im 2. DG!
RAUMAUFTEILUNG IN STICHWORTEN
• Vorraum
• Wohnzimmer mit offener Küche
• Schlafzimmer
• Bad mit Badewanne, Waschtisch, Waschmaschinenanschluss und Handtuchheizkörper
• WC mit Waschbecken
• Abstellraum
• Terrasse
• Terrasse/Kiesstreifen
• Kellerabteil
HIGHLIGHTS AUF EINEN BLICK
• KLIMAANLAGE
• Fußbodenheizung (Gaszentralheizung, keine Therme!)
• jeder Raum verfügt über ein Raumthermostat
• Außenrollläden
• Sicherheitswohnungseingangstüren
• hochwertiger Parkettboden (Eiche)
• EWE-Küche mit hochwertigen Elektrogeräten (E-Herd, Cerankochfeld, Geschirrspüler, Kühl-Gefrier-Kombination, Dunstabzug und Spüle)
• hochwertige Ausstattung auch im Badezimmer / WC (Laufen, Grohe), Badwannen mit Glasduschwänden
• sehr gute Raumaufteilung
• effiziente Grundrisse
• frostsicherer Wasseranschluss auf jeder Außenfläche
• Paketboxen im Eingangsbereich
• zentrale Schließanlage
• mehrere Fahrrad- und Kinderwagenabstellräume
• Waschküche mit 2 hochwertigen Waschmaschinen und Trocknern mit NFC-Bezahlsystem
• Pucksystem (digitales Schwarzes Brett) inkl. Hausverwaltungs-App
• großzügige Aufzüge
• Kleinkinderspielplatz mit Sandkiste und Sitzgelegenheit
• Gemeinschafts-/Jugendspielraum (Stiege 4) mit eigener Terrasse
• sehr gute Energiekennzahlen
• optimale Infrastruktur
GARAGENPLÄTZE DIREKT IM HAUS
• € 102,00 brutto pro Monat:
• Kaution € 310,00
• Mindestlaufzeit 6 Monate, danach beidseitig monatlich kündbar
UMGEBUNG UND INFRASTRUKTUR
• diverse Supermärkte in Gehnähe (Hofer, Billa, Interspar etc.)
• Trillerpark & Shopping Center Nord mit unzähligen Einkaufsmöglichkeiten zu Fuß erreichbar
• Freizeiteinrichtungen: Kino, Fitnessstudio, Fußball, Tennis etc.
• Naherholungsgebiet Donauinsel
• gute Erreichbarkeit in die Innenstadt
SEHR GUTE ÖFFENTLICHE VERKEHRSANBINDUNG
• S-Bahn: Jedlersdorf (<5min)
• WIEN MITTE in 17min (S3)
• Autobuslinie: 36A, 36B
• Straßenbahnlinie: 26
• Regionalbus: 850
• U-Bahn: U6 Floridsdorf (ca. 12min mit Linie 26)
ERSTZAHLUNG
• 3 BMM Kaution
• erste Monatsmiete im Voraus
ZUSÄTZLICHE MONATLICHE KOSTEN
• Wasser, Heizung... werden von der ISTA nach tatsächlichem Verbrauch abgerechnet
• Strom - wird direkt nach Verbrauch abgerechnet (Wien Energie bzw. Netznutzung Wiener Netze)
• ggf. TV/Internet, Haushaltsversicherung, GIS, o.Ä.
VERTRAGSBEDINGUNGEN
• Befristung: 5 Jahre
• Kündigungsverzicht: 12 Monate (mieterseitig)
• Kündigungsfrist: 3 Monate
• gefordertes Mindestnettoeinkommen (Haushalt): EUR 2850
BENÖTIGTE UNTERLAGEN FÜR ANMIETUNG
• Mietanbot (Vorlage erhalten Sie von uns)
• Selbstauskunft (Vorlage erhalten Sie von uns)
• Kopie Reisepass oder Personalausweis
• Kopie Bankomatkarte (nur IBAN relevant)
• Einkommensnachweis (letzte 3 Lohnzettel, Einkommenssteuerbescheid oder bei Berufswechsel unterzeichneter Dienstvertrag)
• Meldezettel
• Haushaltsrechnung (Vorlage erhalten Sie von uns)
| Angaben gemäß gesetzlichem Erfordernis: | |||
| Miete | € | 919,76 | zzgl 10% USt. |
| Betriebskosten | € | 115,69 | zzgl 10% USt. |
| Umsatzsteuer | € | 103,55 | |
| ------------------------------------------------------------------ | |||
| Gesamtbetrag | € | 1139 | |
| ------------------------------------------------------------------ | |||
| Heizwärmebedarf: | 34.72 kWh/(m²a) | ||
| Klasse Heizwärmebedarf: | B | ||
| Faktor Gesamtenergieeffizienz: | 0.89 | ||
Eckdaten
| Objektnr: | 3610_4917 |
| Art: | Wohnung - Etage |
| Land: | Österreich |
| Baujahr: | 2021 |
| Zustand: | Gepflegt |
| Alter: | Neubau |
| Gesamtmiete: | 1.139,00 € |
| Kaltmiete (netto): | 919,76 € |
| Kaltmiete: | 1.139,00 € |
| Wohnfläche: | 60,00 m² |
| Zimmer: | 2 |
| Bäder: | 1 |
| WC: | 1 |
| Terrassen: | 2 |
| Heizwärmebedarf: | B 34,70 kWh/m²a |
| fGEE: | 0,89 |
Ausstattung
Fußbodenheizung, Personenaufzug, Wasch/Trockenraum
Internet und TV
Information zur Internet und TV Versorgung hier
Ihre persönliche Beratung
Kerstin Fried
Hubner Immobilien GmbH
E kerstin.fried@hubner-immobilien.com
H +43 664 88 730 881