Neubau mit Fernwärme - Top ausgestattet und große verglaste Veranda

Wohnung - Etage, 1110 Wien

Lage der Immobilie

- Bus 73B und Linie 71 zu Fuß erreichbar - Bahnhof mit dem Bus oder dem Rad gut erreichbar - Billa, Billa Plus und Penny zu Fuß erreichbar - Einkaufszentrum Huma 11 in wenigen Autominuten - Apotheke zu Fuß erreichbar - Arzt in wenigen Autominuten - Kindergarten und Volksschule zu Fuß erreichbar - Mittelschule mit dem Bus oder zu Fuß gut erreichbar Direkte Umgebung: - Alberner Hafen - Prater Spitz - Golfplatz Schwechat - Zahlreiche Radwege - Donauinsel, Prater und Lobau sind mit dem Fahrrad in 10-15 Min. erreichbar

Beschreibung der Immobilie

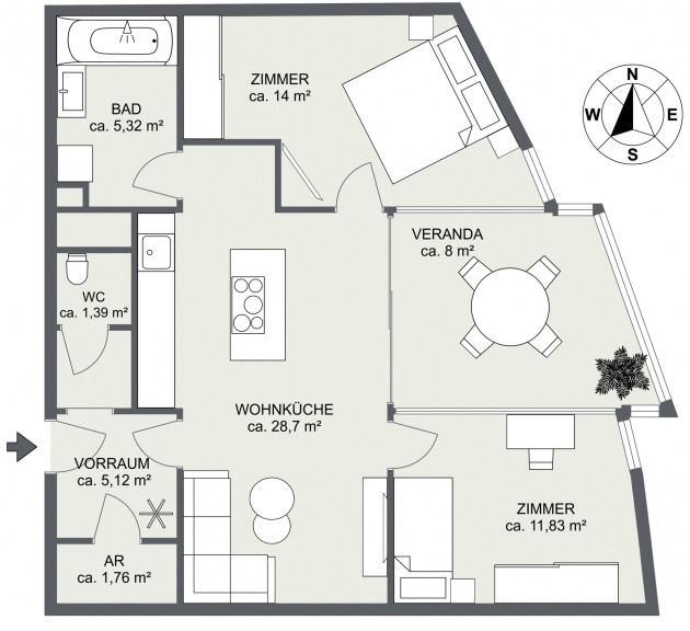
Diese top-moderne 3-Zimmer-Wohnung liegt im 11. Bezirk, direkt an der Grenze zu Schwechat – in einer ruhigen und dennoch sehr gut angebundenen Lage. 2020 wurde die Wohnung generalsaniert und ist somit in einem top Zustand. Sie können hier sofort einziehen, ohne etwas investieren zu müssen: tolle Küche mit Insel, Glasveranda, schöner Boden, schönes Bad ... Das Wohnhaus wurde im Jahr 2006 errichtet und befindet sich in gepflegtem Zustand. Die Wohnung selbst liegt in der Stiege 2, dies ist der Bauteil "Bohne". Sie präsentiert sich in einem modernen, hochwertigen Stil – hier können Sie sofort einziehen und sich wohlfühlen. - Zentrales Element ist die große verglaste Veranda, ideal für den Essbereich - Zwei Schlafzimmer mit Glasfront zur Veranda – hell, freundlich und mit Vorhängen für Privatsphäre - Großzügiger Wohn- und Essbereich mit gemütlicher Nische für Ihre Couch - Moderne, elegante Wohnküche in Schwarz – viel Platz zum Kochen und Genießen - Badezimmer mit moderner Ausstattung - 1. Stock mit Lift - Kellerabteil für zusätzlichen Stauraum - Tiefgaragenplatz Raumaufteilung (Wohnfläche 68,45 m², WNFL ca. 76,45 m²) - Wohnküche ca. 27,11 m² - Verglaste Veranda ca. 8 m² - 2 Zimmer ca. 15,62 m² und 11,83 m² - Badezimmer ca. 5,32 m² - Vorraum ca. 5,42 m² - Abstellraum ca. 1,76 m² - WC ca. 1,39 m²

Eckdaten

Objektnr: 1200
Art: Wohnung - Etage
Land: Österreich
Baujahr: 2006
Zustand: Modernisiert
Kaufpreis: 299.000,00
Provision: 3% zzgl. 20% MwSt.
Wohnfläche: 76,45 m²
Nutzfläche: 76,45 m²
Zimmer: 3
Bäder: 1
Keller: 3,62 m²
Immobilie merken Exposé

Ausstattung

Parkett, Fernwärme, Personenaufzug, Kabel/Satelliten-TV


Internet und TV

Information zur Internet und TV Versorgung hier


Immobilie anfragen


Ihre persönliche Beratung

Reischel Immobilien GmbH

Sasa Nika

Reischel Immobilien GmbH

E kontakt@reischel.at

T 00436643963830

H 00436643963830

F 00431336808080