Exklusives Büro/Praxis im besten Lage – Ihr neuer Standort für Erfolg!
Einzelhandel
- Ladenlokal,
4020
Linz
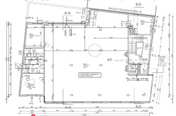
Beschreibung der Immobilie
Eckdaten
| Gesamtmiete: | 2.601,84 € |
| Fläche: | 326,72 m² |
Basisdaten zur Immobilie
| Objektnr: | 141/84419 |
| Art: | Einzelhandel - Ladenlokal |
| Land: | Österreich |
| Baujahr: | 2005 |
| Gesamtmiete: | 2.601,84 € |
| Kaltmiete (netto): | 1.306,88 € |
| Kaltmiete: | 2.168,20 € |
| Miete / m²: | 4,00 € |
| Provision: | 3 BMM |
| Nutzfläche: | 326,72 m² |
| Heizwärmebedarf: | C 62,33 kWh/m²a |
| fGEE: | C 1,03 |
Internet und TV
Information zur Internet und TV Versorgung hier
Ihre persönliche Beratung
Christian Vogel
Rustler Immobilientreuhand
vogel@rustler-ooe.eu
+43 732 908180699
+43 676 834 34 699
