Beschreibung der Immobilie
Charmante 1,5-Zimmer-Wohnung im Zentrum von Thalgau – Historisch. Zentral. Solide.
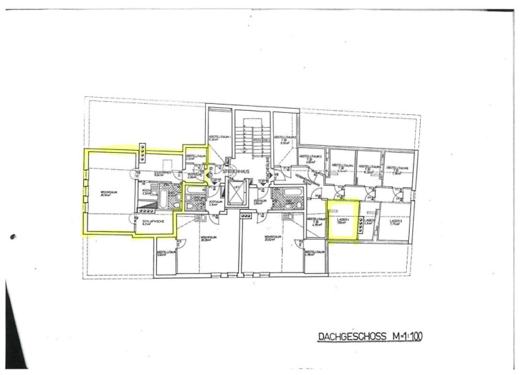
Diese gepflegte 1,5-Zimmer-Wohnung im Herzen von Thalgau vereint historischen Charme mit funktionalem Wohnkomfort. Das Gebäude wurde laut Energieausweis im Jahr 1920 errichtet und bietet durch laufende Instandhaltungen ein solides Wohnambiente. Mit einer Nutzfläche von ca. 52,27 m² eignet sich die Wohnung ideal für Singles, Paare oder Anleger.
Raumaufteilung:
-
Vorraum mit Platz für Garderobe
-
Badezimmer mit Badewanne, WC und Waschmaschinenanschluss
-
Großzügiger Wohn- & Essbereich
-
Schlafnische
-
Praktischer Abstellraum innerhalb der Wohnung
Die Wohnung liegt im 4. Obergeschoß eines gepflegten Mehrparteienhauses mit Personenaufzug. Die Beheizung erfolgt mittels Fernwärme, und Kunststofffenster mit Doppelverglasung sorgen für ein angenehmes Wohnklima.
Zusätzliche Vorteile:
-
Top-Lage direkt am Marktplatz Thalgau – sämtliche Nahversorger, Schulen, Apotheke, Bank und öffentlicher Verkehr sind fußläufig erreichbar
-
Fahrradraum und Allgemeinflächen zur Mitbenutzung
-
Allgemeinparkplätze vor dem Haus
-
Reparaturrücklage der Liegenschaft: € 96.385,82 (Stand 12.06.2025)
-
Monatliche Gesamtbelastung: € 241,00, inkl. Betriebskosten, Heizkosten und Rücklage
Ob als Eigenheim oder Wertanlage, diese Wohnung überzeugt durch ihre zentrale Lage, ihre praktische Raumaufteilung und ein attraktives Preis-Leistungs-Verhältnis.
Vereinbaren Sie noch heute einen Besichtigungstermin. Wir freuen uns auf Ihre Kontaktaufnahme!
Der Vermittler ist als Doppelmakler tätig.
Infrastruktur / Entfernungen
Gesundheit
Arzt <500m
Apotheke <500m
Klinik <500m
Kinder & Schulen
Schule <500m
Kindergarten <500m
Universität <7.000m
Nahversorgung
Supermarkt <500m
Bäckerei <500m
Einkaufszentrum <10.000m
Sonstige
Bank <500m
Geldautomat <500m
Post <500m
Polizei <500m
Verkehr
Bus <500m
Autobahnanschluss <3.000m
Angaben Entfernung Luftlinie / Quelle: OpenStreetMap
Eckdaten
| Objektnr: | 517 |
| Art: | Wohnung |
| Land: | Österreich |
| Kaufpreis: | 168.000,00 € |
| Kaufpreis / m²: | auf Anfrage |
| Provision: | 3% des Kaufpreises zzgl. 20% USt. |
| Betriebskosten: | 101,82 € |
| Heizkosten: | 41,67 € |
| MwSt Gesamt: | 18,51 € |
| Wohnfläche: | 52,27 m² |
| Lagerfläche: | 7,83 m² |
| Zimmer: | 1,50 |
| Bäder: | 1 |
| WC: | 1 |
| Heizwärmebedarf: | D 114,00 kWh/m²a |
| fGEE: | E 2,71 |
Ausstattung
Fernwärme, Personenaufzug, Badewanne
Internet und TV
Information zur Internet und TV Versorgung hier
Ihre persönliche Beratung
Siawash Fazlali, MSc
IMMO Oberndorfer Fazlali GmbH
E makler@immo-oberndorfer.at
T +43 662 83310233
H +43 664 88606453
