Immobilie merken

61 m² Büro nahe Liesinger Platz

Büro / Praxis - Bürofläche, 1230 Wien

Lage der Immobilie

Der Liesinger Platz ist verkehrstechnisch durch S-Bahn und zahlreiche Buslinien gut erschlossen und zeichnet sich durch die hervorragende Infrastruktur aus, die durch die kürzlich stattgefundene Eröffnung des neuen Shoppings-Centers noch verstärkt wurde.

Beschreibung der Immobilie

Sie wollen Ihren Bürostandort verändern? Hier - in interessanter zentraler Lage Liesings sind Sie bestens aufgehoben!

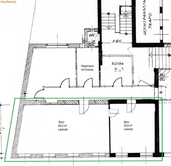
Im Erdgeschoß eines einstöckigen Bürogebäudes gelangt ein ca. 61 m² großes Büro besteht aus 2 Räumen zur Vermietung.

Die Gesamtbelastung pro m² beträgt EUR 11,00 netto (zuzügl. 20% USt).

Infrastruktur / Entfernungen

Gesundheit
Arzt <500m
Apotheke <500m
Klinik <1.000m
Krankenhaus <2.500m

Kinder & Schulen
Schule <500m
Kindergarten <500m
Universität <5.500m
Höhere Schule <6.000m

Nahversorgung
Supermarkt <500m
Bäckerei <500m
Einkaufszentrum <1.000m

Sonstige
Geldautomat <500m
Bank <500m
Post <500m
Polizei <500m

Verkehr
Bus <500m
U-Bahn <2.500m
Straßenbahn <1.500m
Bahnhof <500m
Autobahnanschluss <3.000m

Angaben Entfernung Luftlinie / Quelle: OpenStreetMap

Eckdaten

Kaltmiete (netto): 521,05 €
Fläche: 61,30 m²
Zimmer: 2

Basisdaten zur Immobilie

Objektnr: 5720/12103503
Art: Büro / Praxis - Bürofläche
Land: Österreich
Zustand: Gepflegt
Kaltmiete (netto): 521,05 €
Kaltmiete: 879,50 €
Provision: 3 Brutto-Monatsmieten zzgl. 20 % USt
Betriebskosten: 245,20 €
MwSt Gesamt: 40,00 €
Gesamtfläche: 61,30 m²
Bürofläche: 61,30 m²
Zimmer: 2
Heizwärmebedarf:  C  59,00 kWh/m²a
fGEE:  A  0,73

Ausstattung

Laminatboden, Zentralheizung



Internet und TV

Information zur Internet und TV Versorgung hier




Immobilie anfragen




Ihre persönliche Beratung

Mag. Thomas G. Frey

[frey|flaeche] - Thomas Frey Immobilien

office@freyflaeche.at

+43 1 997 23 24