Beschreibung der Immobilie
Objekt und Lage:
Das wunderschöne Altbaugebäude befindet sich im Herzen der Wiener Innenstadt, nur einen Steinwurf von der Kärntner Straße und der Oper entfernt.
Das Haus hat einen wunderschönen Innenhof und ist äußerst repräsentativ.
Die zur Vermietung stehende Fläche im 1.OG befindet sich zwischen den Ringstraßen Galerien und der Kärntner Straße, wodurch die Infrastruktur hervorragend ist.
Die Betriebskosten sind als zirka Angaben zu verstehen.
Mietvertrag: befristet, 10 Jahre (3 Jahre Kündigungsverzicht mieterseits)
Kaution: 6 Bruttomonatsmieten (€ 35.155,25)
Provision: 3 Bruttomonatsmieten (€ 17.577,62)
Gesamtmiete, inkl. BK und Ust.: € 5.859,21/Monat (exkl. Heizung und Strom)
+++ reserviert
Anmerkung:
keine unecht-Steuerbefreiten Mieter
Ausstattung: Übergabe wie liegt und steht
- öffenbare Fenster
- Kühlung via Splitgeräte
- tlw. Glastrennwände
- hohe Räume
- manueller Sonnenschutz innen
- Empfang
- 5 getrennt begehbare Zimmer
- eingerichtete Teeküche
- getrennte Sanitäreinheiten
- Teppichboden
- Gasetagenheizung
- Personenlift
- barrierefrei
Energieausweis liegt vor:
Heizwärmebedarf: 97,3kWh/m²a
Stellplätze:
Öffentliche Garage in der direkten Umgebung: Ringstraßen Galerie
Fahrradabstellplätze
Verkehrsanbindung:
U1, U2, U4: Station Karlsplatz, Straßenbahnlinie 1, 71, D: Station Schwarzenbergplatz, Autobus Linie 3A, 4A: Station Schwarzenbergplatz
Alle Preisangaben verstehen sich zzgl. der gesetzl. Ust.
Alle Angaben ohne Gewähr, Irrtümer und Änderungen vorbehalten.
Wir weisen darauf hin, dass zwischen dem Vermittler und dem zu vermittelnden Dritten ein familiäres oder wirtschaftliches Naheverhältnis besteht.
Der Vermittler ist als Doppelmakler tätig.
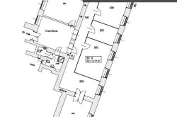
1. Etage
Top 18: 193,68 m² 23,00 € - Die Betriebskosten sind als zirka Angaben zu verstehen.
+++ reserviert
DECUS Immobilien GmbH – Wir beleben Räume
Für weitere Informationen und Besichtigungen steht Ihnen gerne Frau Sonja Macho unter der Mobilnummer +43 664 44 53 56 1und per E-Mail unter macho@decus.at persönlich zur Verfügung.
www.decus.at | office@decus.at
Wichtige Informationen
Bitte beachten Sie, dass per 13.06.2014 eine neue Richtlinie für Fernabsatz- und Auswärtsgeschäfte in Kraft getreten ist.
Ab 1.4.2024 entfallen die Grundbuchs- und Pfandrechtseintragungsgebühren vorübergehend für Eigenheime bis zu einer Bemessungsgrundlage von EUR 500.000,-. Voraussetzung ist das dringende Wohnbedürfnis, ausgenommen davon sind vererbte oder geschenkte Immobilien. Die Befreiung ist jedoch für den Einzelfall zu prüfen, DECUS Immobilien übernimmt hierzu keine Haftung.
Ab 01.07.2023 gilt das Erstauftraggeber-Prinzip bei Wohnungsmietverträgen, ausgenommen davon sind Dienst-/Natural-/Werkswohnungen. Wir dürfen gem. § 17 Maklergesetz darauf hinweisen, dass wir auf die Doppelmaklertätigkeit gem. § 5 Maklergesetz bei Wohnungsmietverträgen verzichten und nur noch einseitig tätig sind (bei den restlichen Vermittlungsarten nicht) und ein wirtschaftliches Naheverhältnis zu unseren Auftraggebern besteht.
Im Falle eines Abschlusses mit Ihnen oder einem von Ihnen namhaft gemachten Dritten bzw. bei beidseitiger Willensübereinstimmung beträgt unser Honorar (lt. Honorarverordnung für Immobilienmakler) 2 Bruttomonatsmieten (BMM) bei Dienst-/Natural-/Werkwohnungen sowie Suchaufträgen, 3 BMM bei Gewerbe-, PKW-, Keller- und Lagermietverträgen sowie bei Kaufobjekten 3 % des Kaufpreises, zuzüglich der gesetzlichen Umsatzsteuer.
Dieses Objekt wird Ihnen unverbindlich und freibleibend angeboten. Oben angeführte Angaben basieren auf Informationen und Unterlagen des Eigentümers und sind unsererseits ohne Gewähr.
Nähere Informationen sowie unsere AGBs und die Nebenkostenübersichtsblatt finden Sie auf unserer Homepage www.decus.at unter "Service" - "Rechtliches zum FAGG" sowie im Anhang der zugesendeten Objekt-Exposés!
Infrastruktur / Entfernungen
Gesundheit
Arzt <250m
Apotheke <250m
Klinik <750m
Krankenhaus <1.250m
Kinder & Schulen
Schule <250m
Kindergarten <500m
Universität <250m
Höhere Schule <250m
Nahversorgung
Supermarkt <250m
Bäckerei <250m
Einkaufszentrum <250m
Sonstige
Geldautomat <250m
Bank <250m
Post <250m
Polizei <500m
Verkehr
Bus <250m
U-Bahn <250m
Straßenbahn <250m
Bahnhof <250m
Autobahnanschluss <3.250m
Angaben Entfernung Luftlinie / Quelle: OpenStreetMap
Verfügbare Flächen
Stiege/Bauteil
Eckdaten
| Kaltmiete (netto): | 4.454,64 € |
| Fläche: | 193,68 m² |
Basisdaten zur Immobilie
| Objektnr: | 1151492 |
| Art: | Büro / Praxis |
| Land: | Österreich |
| Kaltmiete (netto): | 4.454,64 € |
| Kaltmiete: | 4.882,67 € |
| Miete / m²: | 23,00 € |
| Betriebskosten: | 428,03 € |
| Nutzfläche: | 193,68 m² |
| Heizwärmebedarf: | 97,30 kWh/m²a |
Internet und TV
Information zur Internet und TV Versorgung hier
Ihre persönliche Beratung
Sonja Macho
DECUS Immobilien GmbH
macho@decus.at
+43 664 44 53 56 1
+43 664 44 53 56 1
F +43 1 35 600 10
