Traumhaft Wohnen - erfolgreich Vermieten! Gepflegtes Wohnhaus in Pruggern
Haus
,
8965
Pruggern
Beschreibung der Immobilie
Dieses sehr gepflegte Wohnhaus in Pruggern, gelegen in einer schönen, sonnigen und ruhigen Wohnsiedlung mit großzügigem Garten wird zum Verkauf angeboten.
Das Haus wurde im Jahr 1980 in solider Bauweise errichtet und laufend instand gehalten, wodurch es sich heute in einem hervorragenden Erhaltungszustand präsentiert.
Es ist voll unterkellert und verfügt über zwei Garagen. Unterhalb der Garagen befindet sich eine geräumige Werkstatt, die sich ideal für Handwerker oder Bastler eignet.
Die Beheizung erfolgt derzeit über eine Zentralheizung mit Öl, ein Fernwärmeanschluss ist bereits vorbereitet und kann bei Bedarf problemlos aktiviert werden.
Das Haus bietet viel Platz für Wohnen und Gäste und eignet sich somit ideal sowohl für Familien als auch für eine Kombination aus privatem Wohnen und touristischer Nutzung. Neben den bisher touristisch vermieteten drei Schlafzimmern mit insgesamt fünf Betten und jeweils eigener Dusche und WC gibt es vier weitere Schlafzimmer für den privaten Gebrauch.
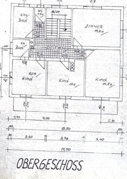
Im Erdgeschoss befindet sich ein Badezimmer mit Badewanne und WC, im Obergeschoss wurde das ursprünglich geplante Badezimmer zu einem Büro umgestaltet. In jeder Etage – außer im Keller – steht ein WC zur Verfügung.
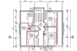
Das Dachgeschoss umfasst drei Schlafzimmer sowie ein Badezimmer mit Dusche und WC.
Ergänzend gibt es einen gemütlichen Gastraum für den Frühstücksservice, der vielseitig genutzt werden kann – sei es zur Bewirtung von Gästen oder als Aufenthaltsraum für Familie und Freunde. Damit besteht auch die Möglichkeit, Einnahmen im Rahmen einer Privatzimmervermietung zu erzielen.
Der Dachboden wurde nachträglich ausgebaut und bietet zusätzlichen Wohn- oder Stauraum.
Alle Anschlüsse an das öffentliche Kanal-, Wasser- und Stromnetz sind vorhanden, das Objekt ist in einem äußerst gepflegten Zustand und kann sofort bezogen werden.
Das Wohnhaus liegt in Pruggern, einer beliebten Wohn- und Freizeitgemeinde im steirischen Ennstal. Die ruhige Lage in einer gepflegten Siedlung bietet viel Sonne und einen herrlichen Blick auf die umliegende Bergwelt.
Die Nähe zu Gröbming gewährleistet eine ausgezeichnete Nahversorgung mit Geschäften, Schulen, Ärzten und Restaurants.
Auch mehrere Schigebiete – darunter Galsterberg, Hauser Kaibling und Schladming-Dachstein – befinden sich in unmittelbarer Umgebung. Im Sommer bietet die Region ein vielfältiges Freizeitangebot mit Wandern, Radfahren, Mountainbiken, Paragleiten oder einfach Entspannen inmitten der Natur.
Die Zufahrt erfolgt bequem über eine öffentliche, asphaltierte Straße.
Dieses gepflegte Wohnhaus in Pruggern kombiniert ruhiges, sonniges Wohnen mit einem großzügigen Platzangebot und der Möglichkeit, touristische Einnahmen zu erzielen. Hier finden Sie ein Zuhause mit viel Charme, Flexibilität und Lebensqualität im Herzen des Ennstales.
Aufgrund der Vorbehaltszone für Zweitwohnsitze ist hier kein Zweitwohnsitz möglich.
Eckdaten
| Kaufpreis: | 550.000,00 € |
| Fläche: | 198,68 m² |
| Zimmer: | 10 |
Basisdaten zur Immobilie
| Objektnr: | 0005004632 |
| Art: | Haus |
| Land: | Österreich |
| Baujahr: | 1979 |
| Kaufpreis: | 550.000,00 € |
| Provision: | 3% des Kaufpreises plus 20% USt. |
| Wohnfläche: | 198,68 m² |
| Grundstücksfl.: | 1.066,00 m² |
| Zimmer: | 10 |
| Bäder: | 5 |
| WC: | 6 |
| Balkone: | 2 |
| Terrassen: | 1 |
| Keller: | 105,00 m² |
| Heizwärmebedarf: | E 198,20 kWh/m²a |
| fGEE: | D 2,18 |
Ausstattung
Öl, Zentralheizung
Internet und TV
Information zur Internet und TV Versorgung hier
Ihre persönliche Beratung
Klaus Schrottshammer
Raiffeisen Steiermark
klaus.schrottshammer@rlbstmk.at
22751
+43 664 62 75 730
