Anlegerhit: ca. 25,- Netto-Miete p. m² | Betreiber-Service

Wohnung , 1170 Wien , Lacknergasse 31

Lage der Immobilie

Lacknergasse, Elterleinplatz, AKH

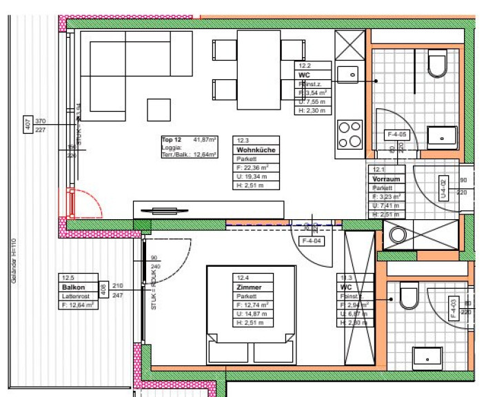
Beschreibung der Immobilie

Das Projekt | www.accenta-immo.at/lack31

In der Lacknergasse im 17. Bezirk entsteht ein moderner Neubau mit exklusivem Wohnkomfort. Zum Verkauf stehen drei hochwertige Dachgeschosswohnungen mit großzügigen Außenflächen sowie dreizehn attraktive Serviced-Apartments für Anleger.
Die Apartments sind vollausgestattet, die Grundrisse gezielt für die Anforderungen der Kurzzeitvermietung konzipiert und als Beherbergungsstätte gewidmet. Alle Vermieteraufgaben übernimmt „Vienna Residence“, der renommierte Betreiber und Spezialist für Kurzzeitvermietung. Für die nächsten 25 Jahre trägt der Betreiber sämtliche Betriebs-, Verbrauchs-, Energie- und Instandhaltungskosten und die Mieteinnahmen werden über einen gemeinsamen Mietenpool prozentuell auf Basis eines speziell errechneten „Rendite-Nutzwertes“ unter den Eigentümern verteilt. Dieser Verteilungsschlüssel sorgt für volle Transparenz und garantiert jedem Eigentümer die gleiche Rendite.

Vorsorge-Wohnungs-Modell mit Sorglos-Vermietungs-Konzept:

  • professionelles, zentrales Management übernimmt die Verwaltung und Verrechnung
  • 13 Apartments/Wohnungen für Kurzzeitvermietung im Betreiber-Modell
  • Mieteinnahmen über ein transparentes Mietenpool-System
  • kalkulierte Mietrendite von knapp 5% p. a. (netto nach Kosten)
  • "Mieteinnahmen sorgenfrei" – keine Kosten durch Leerstand oder Instandhaltung

Dieses Rundum-Sorglos-Paket ermöglicht Eigentümern eine passive und risikoreduzierte Kapitalanlage, da der gesamte organisatorische Aufwand ausgelagert wird.

Mietenpool – Einheitliche Rendite für alle Eigentümer

Beim sogenannten Mietenpool fließen die Mieteinnahmen aller Einheiten in einen gemeinsamen „Mietentopf“. Die Ausschüttung erfolgt auf Basis eines speziell berechneten „Rendite-Nutzwertes“. Dieser sorgt für volle Transparenz und garantiert jedem Eigentümer eine einheitliche Rendite. 

Ausstattung der Apartments

Die Einheiten mit Größen zwischen ca. 48 m² und 70 m² werden vollmöbliert verkauft. Die hochwertige Ausstattung umfasst alles – von der Einbauküche über Betten bis hin zu Fernseher und Kaffeelöffel – und ist optimal auf die Kurzzeitvermietung ausgerichtet.

Lage und öffentliche Anbindung

Das Projekt befindet sich in unmittelbarer Nähe der Hernalse Hauptstraße mit ihren zahlreichen Lokalen und Geschäften. Innenstadt oder Heuriger - in kurzer Zeit mit den öffentlichen Verkehrsmitteln erreichbar.

  • U5-Station Elterleinplatz (ab 2026)
  • Straßenbahn: 2, 9, 42, 43
  • Bus: 10A, 42A
  • Schnellbahn: S45

Kaufpreise
Netto-Kaufpreise: € 290.000 bis € 480.000,- (zzgl. 20 % USt.)*
*Das Möbel- und Ausstattungspaket ist im Kaufpreis nicht enthalten. Die Preise sind objektbezogen ausgewiesen.

Hinweis:
Sämtliche Bilder, Visualisierungen und Pläne in den Inseraten dienen als Referenz. Einrichtung und Fotos sind beispielhaft, teilweise KI unterstützt und können von der tatsächlichen Ausstattung oder dem Grundriss abweichen. Alle Angaben beruhen auf Informationen des Verkäufers.

Noch nichts gefunden? Wir informieren Sie über geeignete Immobilienangebote noch vor allen anderen.
Legen Sie jetzt Ihren individuellen Suchagenten unter folgendem Link an. Wir schicken Ihnen passende Immobilien exklusiv vorab zu.
Suchagent anlegen - https://accenta-immobilien.service.immo/registrieren/de

Der Vermittler ist als Doppelmakler tätig.

Sie wollen auch Ihre Immobilien Verkaufen oder Vermieten?

Accenta Immobilien - Ihr Partner für Immobilienvermittlung
www.accenta-immo.at
01/997 12 93
 

Infrastruktur / Entfernungen

Gesundheit
Arzt <150m
Apotheke <175m
Klinik <200m
Krankenhaus <1.250m

Kinder & Schulen
Schule <175m
Kindergarten <325m
Universität <1.525m
Höhere Schule <775m

Nahversorgung
Supermarkt <325m
Bäckerei <350m
Einkaufszentrum <375m

Sonstige
Geldautomat <350m
Bank <350m
Post <350m
Polizei <300m

Verkehr
Bus <350m
U-Bahn <975m
Straßenbahn <175m
Bahnhof <1.025m
Autobahnanschluss <3.150m

Angaben Entfernung Luftlinie / Quelle: OpenStreetMap

Eckdaten

Objektnr: 11428
Art: Wohnung
Land: Österreich
Baujahr: 2026
Zustand: Erstbezug
Alter: Neubau
Kaufpreis: 333.070,00
Kaufpreis / m²: auf Anfrage
Wohnfläche: 41,87 m²
Zimmer: 2
Bäder: 1
WC: 1
Balkone: 1
Heizwärmebedarf:  B  41,40 kWh/m²a
fGEE:  B  0,75
Immobilie merken Exposé

Internet und TV

Information zur Internet und TV Versorgung hier


Immobilie anfragen


Ihre persönliche Beratung

Accenta Immobilien e.U.

Michael Riedler

Accenta Immobilien e.U.

E michael.riedler@accenta-immo.at

T +43 1 997 18 00

H +43 699 14228400

F +43 1 997 18 00 – 10