Immobilie merken

Einfamilienhaus mit Traumblick ins Inntal zu verkaufen

Haus - Einfamilienhaus, 6134 Vomp

Lage der Immobilie

Die Marktgemeinde Vomp liegt idyllisch im Tiroler Unterinntal am Fuße des imposanten Karwendelgebirges und zählt mit knapp 5.500 Einwohnern sowie einer Fläche von rund 182 km² zu den größten Gemeinden Tirols. Das weitläufige Gemeindegebiet reicht vom Inntal bis hinauf in die eindrucksvolle Bergwelt des Karwendels und bietet damit eine einzigartige Mischung aus alpiner Landschaft, vielfältigen Freizeitmöglichkeiten und hoher Lebensqualität. Zahlreiche Wander- und Radwege, Bergtouren sowie die Nähe zum Naturdenkmal Großer Ahornboden machen Vomp zu einem idealen Ausgangspunkt für Naturliebhaber und Aktivsportler. Gleichzeitig sorgt die gute Infrastruktur im Ort mit Lebensmittelgeschäften, Ärzten, Banken sowie Schulen und Kinderbetreuungseinrichtungen für eine umfassende Versorgung im Alltag. Auch traditionelle Gasthäuser und Cafés tragen zu einem lebendigen Dorfleben bei. Die Bezirkshauptstadt Schwaz ist in nur wenigen Minuten erreichbar und bietet eine Vielzahl an weiteren Einkaufs- und Freizeitmöglichkeiten. Dort befindet sich auch der nächste Bahnhof, der Vomp zuverlässig mit Innsbruck, Kufstein und Wörgl verbindet. Die Landeshauptstadt Innsbruck liegt rund 30 Autominuten entfernt und erweitert die Möglichkeiten zusätzlich um ein urbanes Kultur- und Freizeitangebot. So vereint Vomp den ursprünglichen Charme eines Tiroler Dorfes mit der Nähe zu urbanen Zentren und einer beeindruckenden Naturkulisse – ein besonders lebenswerter Ort im Herzen des Tiroler Unterlandes.

Beschreibung der Immobilie

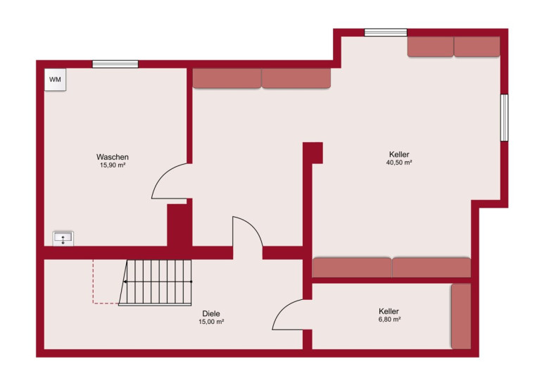
In ruhiger Lage von Vomp erwartet Sie dieses gepflegte Einfamilienhaus mit traumhaftem Ausblick über das Inntal. Auf rund 137 m² Wohnfläche verteilt auf zwei Etagen bietet das Haus viel Platz für die ganze Familie. Das Grundstück umfasst 449 m² und besticht durch eine große Terrasse sowie einen liebevoll angelegten Garten – ideal zum Entspannen und Genießen. Im Erdgeschoss überzeugt der offene Grundriss mit einem großzügigen Wohnbereich. Das leicht erhöhte Wohnzimmer sorgt für ein besonderes Raumgefühl und schließt harmonisch an den Essbereich mit der Küche an. Ergänzt wird diese Ebene durch ein Büro und ein separates WC. Im Obergeschoss befinden sich drei gut geschnittene Schlafzimmer sowie ein weiteres WC. Das Badezimmer überzeugt mit edlem Granit und Marmorfeinstein. Badewanne und Dusche sorgen zusätzlich für höchsten Komfort und eine angenehme Wohlfühlatmosphäre. Der Keller bietet zusätzlichen Raum – unter anderem eine Wäschekammer, einen rund 40 m² großen Mehrzweckraum sowie einen weiteren kleineren Raum. Damit eignet sich das Untergeschoss ideal als Stauraum, Hobby- oder Fitnessbereich. Zur Ausstattung/Besonderheiten zählen außerdem: * Fußbodenheizung in allen Wohnräumen * Warmwassererzeugung mittels Solaranlage am Haus * Regenwassernutzung für Bewässerung * Satellitenanlage * Lichtwellenleiteranschluss (vorbereitet) * Elektrische Raffstores im gesamten Haus * Garage für zwei Fahrzeuge, insgesamt bis zu fünf Stellplätze auf dem Grundstück * Niedrigenergiehaus Dieses Haus vereint Privatsphäre, Wohnkomfort und beeindruckende Aussicht – ein perfekter Rückzugsort für Familien und Ruhesuchende gleichermaßen. Für weitere Informationen oder eine persönliche Besichtigung stehen wir Ihnen gerne zur Verfügung.

Eckdaten

Kaufpreis: 1.190.000,00 €
Fläche: 137,80 m²
Zimmer: 5

Basisdaten zur Immobilie

Objektnr: 25K156
Art: Haus - Einfamilienhaus
Land: Österreich
Zustand: Gepflegt
Möbliert: Teil
Kaufpreis: 1.190.000,00
Provision: 3% zzgl. MwSt.
Betriebskosten: 192,00 €
Heizkosten: 86,00 €
Wohnfläche: 137,80 m²
Grundstücksfl.: 449,00 m²
Gesamtfläche: 263,73 m²
Zimmer: 5
Bäder: 1
WC: 1
Terrassen: 1
Stellplätze: 2

Ausstattung

Parkett, Fliesen, Steinboden, Gas, Solarenergie, Fußbodenheizung, Einbauküche



Internet und TV

Information zur Internet und TV Versorgung hier




Immobilie anfragen




Ihre persönliche Beratung

Lena-Marie Thaler

AlphaReal GmbH

thaler@alphareal.at

004353722158550

00436601389842


AlphaReal GmbH - Immobilen Makler

Maderspergerstraße 2, 6330 Kufstein, AUSTRIA

https://www.alphareal.at