Rohdachboden mit genehmigtem Einreichplan, sofort zum loslegen bei XXX-Lutz
Wohnung
- Rohdachboden,
8020
Graz
Beschreibung der Immobilie
Dieser liegt in guter Lage zur Vermietung und kann sofort ausgebaut werden und bspw. vermietet oder verkauft werden als einzelne Wohnungen.
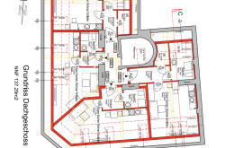
4 Wohnung mit den Größen 38,7; 34,99; 30,50; 33,1 können errichtet werden und es kein Lift vorgeschrieben.
Kaufpreis => 232.900 €
OPTIONAL: Auch das Nachbarhaus hat bereits einen genehmigten Rohdachboden welcher nur mehr darauf wartet ausgebaut zu werden. 97,59 m2 nach Ausbau lt. Plan, 2 Wohnungen mit 58,24 + 39,35 m2, Ebenso kein Lift vorgeschrieben. => 165.900 €
Eckdaten
| Kaufpreis: | auf Anfrage |
| Fläche: | 137,29 m² |
Basisdaten zur Immobilie
| Objektnr: | O2100166864 |
| Art: | Wohnung - Rohdachboden |
| Land: | Österreich |
| Zustand: | Rohbau |
| Kaufpreis: | auf Anfrage |
| Kaufpreis / m²: | auf Anfrage |
| Provision: | 3 % zzgl. 20% MwSt. |
| Wohnfläche: | 137,29 m² |
| Gesamtfläche: | 137,29 m² |
Ausstattung
Kabel/Satelliten-TV
Internet und TV
Information zur Internet und TV Versorgung hier
Ihre persönliche Beratung
BSc Patrick Großschädl
Papst Immobilien GmbH
info@papst-immo.at
0650 8286331
