2 Zimmer nähe XXX-Lutz - Eigentum, ab sofort beziehbar - H11/13 ++Videorundgang++
Zinshaus Renditeobjekt
,
8020
Graz
Beschreibung der Immobilie
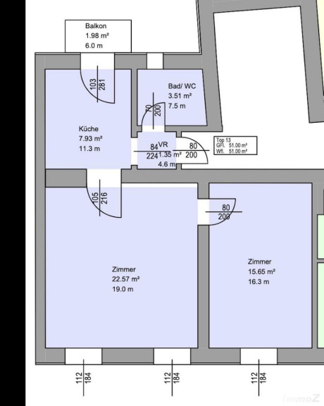
Die Top 13 befindet sich im 3. Obergeschoss und wird über das Stiegenhaus erreicht. Die Wohnung betritt man direkt in den Vorraum. Über diesen gelangt man in das Bad mit WC sowie die Küche welche möbliert ist und auch den Zugang zum Balkon Innenhofseitig bietet. Das Wohn/Esszimmer ist von der Küche aus erreichbar und leitet weiter zum Schlafzimmer.
Verfügbar => ab sofort
Heizung => Fernwärme
Kaufpreis 149.900 €
Anfragen werden ausschließlich per Mail oder WhatsApp angenommen. Für einen Besichtigungstermin oder Fragen stehe Ich, Patrick Großschädl, BSc, Ihnen unter Whatsapp Whatsapp gerne zur Verfügung.
Unsere Auswahl an Anzeigen ist momentan sehr umfangreich und es ist uns nicht möglich, alle Angebote auf den verschiedenen Online-Plattformen zu präsentieren. Deshalb laden wir Sie herzlich ein, unsere Homepage www.papst-immo.at zu besuchen, um einen Überblick über unser gesamtes Angebot zu erhalten.
Eckdaten
| Kaufpreis: | 149.900,00 € |
| Fläche: | 51,00 m² |
| Zimmer: | 2 |
Basisdaten zur Immobilie
| Objektnr: | O2200166859 |
| Art: | Zinshaus Renditeobjekt |
| Land: | Österreich |
| Zustand: | Erstbezug |
| Alter: | Altbau |
| Kaufpreis: | 149.900,00 € |
| Kaufpreis / m²: | auf Anfrage |
| Provision: | 3 % zzgl. 20% MwSt. |
| Wohnfläche: | 51,00 m² |
| Gesamtfläche: | 51,00 m² |
| Zimmer: | 2 |
| Bäder: | 1 |
| Balkone: | 1 |
| Heizwärmebedarf: | C 96,00 kWh/m²a |
| fGEE: | D 1,79 |
Ausstattung
Laminatboden, Fernwärme, Einbauküche, Bad mit Fenster, Dusche, Kabel/Satelliten-TV
Internet und TV
Information zur Internet und TV Versorgung hier
Ihre persönliche Beratung
BSc Patrick Großschädl
Papst Immobilien GmbH
info@papst-immo.at
0650 8286331
