Lage der Immobilie
Nahe am Lainzer Tor, in einer Einbahnstraße, gelegenes Haus.Beschreibung der Immobilie
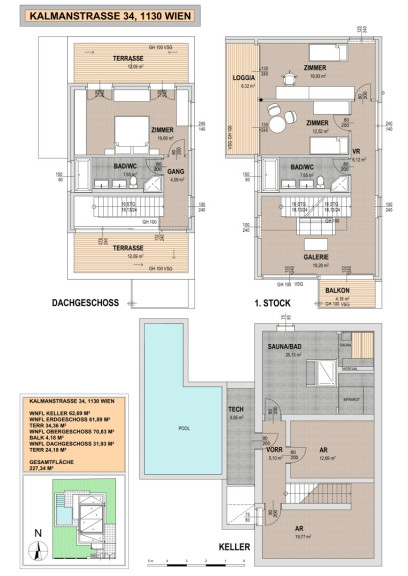
Dieses, nahe am Lainzer Tor gelegene, neu errichtete 2-stöckige, voll unterkellerte, moderne Haus ist mit sämtlichen Technikraffinessen ausgestattet. Videounterstützte Türöffnungsanlage, funkgesteuerte Außenjalousien, Internetvorbereitung (A1, Magenta, etc.), eine Luft-Wärmepumpe von Toshiba, Fußbodenheizung sowie eine Klimaanlage gehören bei diesem Haus zur Standartausrüstung.
Alle Nassräume (entweder mit Dusche oder Badewanne) sind mit wunderschönen, großflächigen Feinsteinzeugfliesen versehen und wirken sehr modern und stylisch. Toiletten befinden sich sowohl im EG, als auch im 1. und 2. OG.
Der von 3 Seiten an das Haus grenzende Garten kann im EG durch 2 Terrassenschiebetüren betreten werden. Eine große Terrassen liegt zwischen dem 8 x 4 Meter Pool und dem Haus. Im 1. OG aber auch im zweiten gibt es zusätzliche Freiflächen durch einen Balkon, eine Loggia und einen Westterrasse.
EG: großzügiger Wohn-/Essbereich mit einer Vorbereitung für eine Kücheninsel. Auf dieser Ebene steht selbstverständlich auch ein WC und ein Abstellraum/Speise zur Verfügung.
Über eine, mit Eichenholz belegte Treppe gelangt man in das 1. OG:
In diesem befindet sich ein großes Badezimmer mit Dusche und WC und 2 Zimmer, die beide einen Zugang zur gemeinsamen Loggia haben.
Straßen - und somit südseitig befindet sich ein weiterer Balkon.
2. OG: hier gibt es ein zusätzliches Badezimmer mit WC und Badewanne. Von einem großzügigen Zimmer aus haben Sie nochmals die Möglichkeit die Westterrasse zu betreten und bis spät abends die Sonne zu genießen.
Der Keller ist vollausgebaut - Technikraum und 2 weitere Räume
Die Fußbodenheizung, die durch einen wunderschönen, sehr zweckmäßigen, gebürsteten Eichendielenboden, bedeckt.
RECHTLICHER HINWEIS:
Im Hinblick auf die geltende Gesetzeslage weisen wir darauf hin, dass für unser Tätigwerden für jeden Interessenten (vollständige Anbietung, Besichtigungen und sonstige Dienstleistungen) der Abschluss eines Maklervertrages die unbedingte Grundlage darstellt.
INFOS & BESICHTIGUNGEN:
Für Informationen und Besichtigungen steht Ihnen Herr Mag. Michael Moser unter +43 699 15152424 oder +43 1 877 2222 gerne zur Verfügung.
INFORMATION FÜR KONSUMENTEN:
1. Dieses Objekt wird von einem konzessionierten Immobilienmaklerunternehmen vermarktet. Im Falle der Anmietung oder des Ankaufs fällt eine Vermittlungsprovision an.
2. Der Makler ist kraft bestehenden Geschäftsgebrauchs für beide Vertragspartner des abzuschließenden Geschäfts tätig (Doppelmakler).
3. Wir weisen auf wirtschaftliches Naheverhältnis zwischen unserem Unternehmen und der Vermieterseite hin.
POST SCRIPTUM:
Wir sind auf Miet- und Eigentumsobjekte, sowie Grundstücke im 13. Bezirk spezialisiert, vermitteln allerdings selbstverständlich auch Wohnimmobilien im gesamten Großraum Wien!
Wenn Sie beim Verkauf Ihrer Immobilie auf Ihre RECHTSSICHERHEIT großen Wert legen und Ihr Makler hinsichtlich seiner fachlichen Kompetenz die Nr. 1 sein muss, setzen Sie auf unser Know-how sowie Kontakte zu den richtigen Käufern und sichern Sie sich Ihren Erfolg durch unsere Qualitätsarbeit, starke Spezialisierung und 30-jährige Erfahrung.
Infrastruktur / Entfernungen
Gesundheit
Arzt <500m
Apotheke <500m
Klinik <1.000m
Krankenhaus <1.500m
Kinder & Schulen
Schule <500m
Kindergarten <1.000m
Universität <2.500m
Höhere Schule <5.500m
Nahversorgung
Supermarkt <500m
Bäckerei <1.000m
Einkaufszentrum <3.500m
Sonstige
Geldautomat <500m
Bank <500m
Post <1.500m
Polizei <2.000m
Verkehr
Bus <500m
U-Bahn <3.500m
Straßenbahn <1.000m
Bahnhof <2.000m
Autobahnanschluss <4.500m
Angaben Entfernung Luftlinie / Quelle: OpenStreetMap
Eckdaten
| Kaufpreis: | 1.790.000,00 € |
| Fläche: | 165,00 m² |
| Zimmer: | 4 |
Basisdaten zur Immobilie
| Objektnr: | 1587 |
| Art: | Haus |
| Land: | Österreich |
| Zustand: | Neuwertig |
| Alter: | Neubau |
| Kaufpreis: | 1.790.000,00 € |
| Provision: | 53.700,00 € |
| Wohnfläche: | 165,00 m² |
| Zimmer: | 4 |
| Bäder: | 2 |
| WC: | 3 |
| Balkone: | 1 |
| Terrassen: | 2 |
| Stellplätze: | 1 |
| Garten: | 153,00 m² |
| Keller: | 63,00 m² |
| Heizwärmebedarf: | B 32,70 kWh/m²a |
| fGEE: | A 0,71 |
Ausstattung
Dielenboden, Fliesen, Elektro, Fußbodenheizung, Nordbalkon, Südbalkon, Westbalkon, Bad mit Fenster, Badewanne, Dusche, DV-Verkabelung, Kabel/Satelliten-TV
Internet und TV
Information zur Internet und TV Versorgung hier
Ihre persönliche Beratung
Mag. Michael Moser
KLEIN & PARTNER Immobilien GmbH
m.moser@kleinpartner.com
+43 1 877 2222
+43 699 1515 2424
F +43 1 877 2222 20
