Beschreibung der Immobilie
Zum Verkauf steht dieses wunderbare Haus!
Was macht es besonders:
Dieses großartige Haus besticht durch einen kleinen und großen Saal, welche für verschiedenste Zwecke, wie z.B. zum Wohnen, Tanzen, Musizieren, für verschiedene Hobbys, Ausstellungen, etc. verwendet werden können.
Daher kann es sowohl zum Wohnen und auch Arbeiten genutzt werden, oder natürlich auch nur zum Wohnen.
Des weiteren bietet der großzügige Grundriss ein angenehmes Zusammenleben der ganzen Familie und sorgen für wahren Luxus.
Hierzu einige Details:
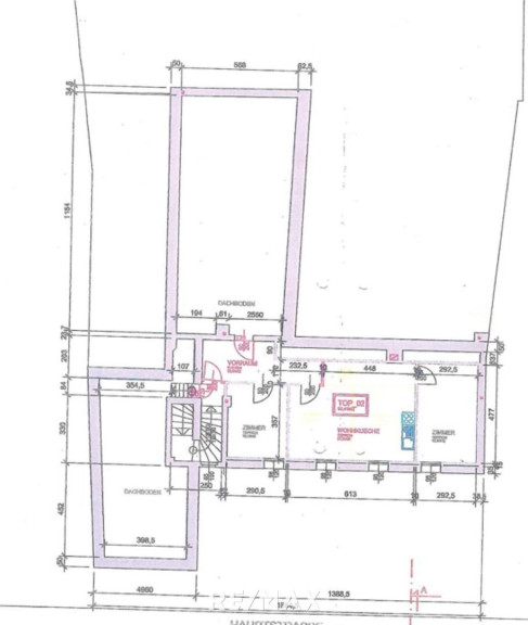
> Grundstücksfläche ca. 661 m²
> Wohnfläche - ca. 484 m²
> Erdgeschoss mit Halbgeschoss - ca. 424 m²
> Dachgeschoss - ca. 60 m²
> Küche
> 11 Zimmer
> großer Saal - ca. 151 m²
> kleiner Saal - ca. 55 m²
> Terrasse
> Garten
> Keller
> Gewölbekeller
> Gas- und Ölheizung
IN DER NÄHE:
> Einkaufsmöglichkeiten, 2 Kindergärten, Schule - in der Nähe
> Arzt, Apotheke - in der Nähe
> mit dem Auto erreichen Sie Wien in 30 Minuten
> Autobahnauffahrt A2 Südautobahn in 15 Minuten erreichbar
> Bahnhof
Die nächsten Bushaltestellen sind fußläufig innerhalb weniger Gehminuten erreichbar. Ebenso der nächste größere Nahversorger. Weiters gibt es eine Apotheke und einen Arzt für Allgemeinmedizin im Ort. Eine Einrichtung für Kleinkinderbetreuung, zwei Kindergärten und eine Volksschule sorgen dafür, dass in Pottenstein auch Ihre Kleinsten bestens betreut werden.
Gerne kümmern wir uns um Ihre Finanzierung. Unsere Finanzexperten arbeiten mit verschiedenen Banken und können für Sie daher unverbindliche Angebote vorbereiten. Sprechen Sie Ihren Makler/in aktiv an.
Überzeugen Sie sich bei einer Besichtigung von diesem tollen Objekt! ich freue mich auf Sie!
Die Angaben zum Objekt basieren auf uns zur Verfügung gestellten Informationen.
Eine Haftung unsererseits ist hierfür ausgeschlossen. Detailfragen werden im Zuge von Besichtigungen besprochen, geklärt oder nachgereicht.
Hinweis gemäß Energieausweisvorlagegesetz: Ein Energieausweis wurde vom Eigentümer bzw. Verkäufer, nach unserer Aufklärung über die ab 1.12.2012 geltende generelle Vorlagepflicht, sowie Aufforderung zu seiner Erstellung noch nicht vorgelegt. Daher gilt zumindest eine dem Alter und der Art des Gebäudes entsprechende Gesamtenergieeffizienz als vereinbart. Wir übernehmen keinerlei Gewähr oder Haftung für die tatsächliche Energieeffizienz der angebotenen Immobilie.
Wir bitten um Verständnis, dass wir aufgrund der Nachweispflicht gegenüber dem Eigentümer, nur Anfragen mit vollständigen Kontaktdaten (Name, Anschrift, TelefonNr., E-Mail) beantworten können.
Wir informieren Sie darüber, dass wir bei diesem Objekt eine Doppelmaklertätigkeit ausüben. (§ 5 Abs. 3 MaklerG).
Dieses Angebot ist unverbindlich und einer Zwischenverwertung vorbehalten.
Nebenkosten Kaufvertrag:
3 % vom Kaufpreis Provision zzgl. Mwst.
3,5 % Grunderwerbsteuer
1,1 % Grundbuchseintragungsgebühr
Kaufvertragserrichtung und Treuhandschaft lt. Tarifordnung des Vertragserrichters.
Was macht es besonders:
Dieses großartige Haus besticht durch einen kleinen und großen Saal, welche für verschiedenste Zwecke, wie z.B. zum Wohnen, Tanzen, Musizieren, für verschiedene Hobbys, Ausstellungen, etc. verwendet werden können.
Daher kann es sowohl zum Wohnen und auch Arbeiten genutzt werden, oder natürlich auch nur zum Wohnen.
Des weiteren bietet der großzügige Grundriss ein angenehmes Zusammenleben der ganzen Familie und sorgen für wahren Luxus.
Hierzu einige Details:
> Grundstücksfläche ca. 661 m²
> Wohnfläche - ca. 484 m²
> Erdgeschoss mit Halbgeschoss - ca. 424 m²
> Dachgeschoss - ca. 60 m²
> Küche
> 11 Zimmer
> großer Saal - ca. 151 m²
> kleiner Saal - ca. 55 m²
> Terrasse
> Garten
> Keller
> Gewölbekeller
> Gas- und Ölheizung
IN DER NÄHE:
> Einkaufsmöglichkeiten, 2 Kindergärten, Schule - in der Nähe
> Arzt, Apotheke - in der Nähe
> mit dem Auto erreichen Sie Wien in 30 Minuten
> Autobahnauffahrt A2 Südautobahn in 15 Minuten erreichbar
> Bahnhof
Die nächsten Bushaltestellen sind fußläufig innerhalb weniger Gehminuten erreichbar. Ebenso der nächste größere Nahversorger. Weiters gibt es eine Apotheke und einen Arzt für Allgemeinmedizin im Ort. Eine Einrichtung für Kleinkinderbetreuung, zwei Kindergärten und eine Volksschule sorgen dafür, dass in Pottenstein auch Ihre Kleinsten bestens betreut werden.
Gerne kümmern wir uns um Ihre Finanzierung. Unsere Finanzexperten arbeiten mit verschiedenen Banken und können für Sie daher unverbindliche Angebote vorbereiten. Sprechen Sie Ihren Makler/in aktiv an.
Überzeugen Sie sich bei einer Besichtigung von diesem tollen Objekt! ich freue mich auf Sie!
Die Angaben zum Objekt basieren auf uns zur Verfügung gestellten Informationen.
Eine Haftung unsererseits ist hierfür ausgeschlossen. Detailfragen werden im Zuge von Besichtigungen besprochen, geklärt oder nachgereicht.
Hinweis gemäß Energieausweisvorlagegesetz: Ein Energieausweis wurde vom Eigentümer bzw. Verkäufer, nach unserer Aufklärung über die ab 1.12.2012 geltende generelle Vorlagepflicht, sowie Aufforderung zu seiner Erstellung noch nicht vorgelegt. Daher gilt zumindest eine dem Alter und der Art des Gebäudes entsprechende Gesamtenergieeffizienz als vereinbart. Wir übernehmen keinerlei Gewähr oder Haftung für die tatsächliche Energieeffizienz der angebotenen Immobilie.
Wir bitten um Verständnis, dass wir aufgrund der Nachweispflicht gegenüber dem Eigentümer, nur Anfragen mit vollständigen Kontaktdaten (Name, Anschrift, TelefonNr., E-Mail) beantworten können.
Wir informieren Sie darüber, dass wir bei diesem Objekt eine Doppelmaklertätigkeit ausüben. (§ 5 Abs. 3 MaklerG).
Dieses Angebot ist unverbindlich und einer Zwischenverwertung vorbehalten.
Nebenkosten Kaufvertrag:
3 % vom Kaufpreis Provision zzgl. Mwst.
3,5 % Grunderwerbsteuer
1,1 % Grundbuchseintragungsgebühr
Kaufvertragserrichtung und Treuhandschaft lt. Tarifordnung des Vertragserrichters.
| Angaben gemäß gesetzlichem Erfordernis: | |||
| Heizwärmebedarf: | 283.4 kWh/(m²a) | ||
| Klasse Heizwärmebedarf: | G | ||
| Faktor Gesamtenergieeffizienz: | 4.14 | ||
| Klasse Faktor Gesamtenergieeffizienz: | G | ||
Eckdaten
| Objektnr: | 3827_446 |
| Art: | Haus - Einfamilienhaus |
| Land: | Österreich |
| Möbliert: | Teil |
| Kaufpreis: | auf Anfrage |
| Provision: | 3.00 % |
| Wohnfläche: | 484,00 m² |
| Grundstücksfl.: | 661,00 m² |
| Zimmer: | 11 |
| Bäder: | 2 |
| WC: | 2 |
| Terrassen: | 1 |
| Heizwärmebedarf: | G 283,00 kWh/m²a |
| fGEE: | G 4,14 |
Ausstattung
Gas, Zentralheizung
Internet und TV
Information zur Internet und TV Versorgung hier
Ihre persönliche Beratung
Michael Wukovits
RE/MAX Harmony
E michael.wukovits@remax-harmony.at
T +43 2635 66 461
H +43 664 4016302