3-Zimmer-Wohnung mit südseitiger Loggia - PARKSIDE GREEN RESIDENCES

Wohnung - Etage, 1180 Wien , Anastasius-Grün-Gasse 26

Beschreibung der Immobilie

Das Neubauprojekt Parkside Green Residences bietet durchdachte Grundrisse mit hochwertiger Ausstattung in toller Lage im 18. Bezirk! Nur wenige Gehminuten von Ihrem neuen Zuhause entfernt befinden sich der wunderschöne Währinger Park mit Familienbad, die U-Bahn-Station Nußdorfer Straße sowie das AKH.

Die Fertigstellung des Projektes ist im Frühjahr 2027. Die besten Wohneinheiten werden zuerst verkauft – reservieren Sie daher gleich Ihre Traumwohnung mit dem besten Grundriss und der besten Ausrichtung! Die vollständige Liste der verfügbaren Wohneinheiten und Preise erhalten Sie nach Ihrer Anfrage. Gerne beraten wir Sie bei der Auswahl und erzählen Ihnen alle wichtigen Details. Unsere Dienstleistung bei der Vermittlung ist für Sie kostenfrei! Wohnung Top 5:
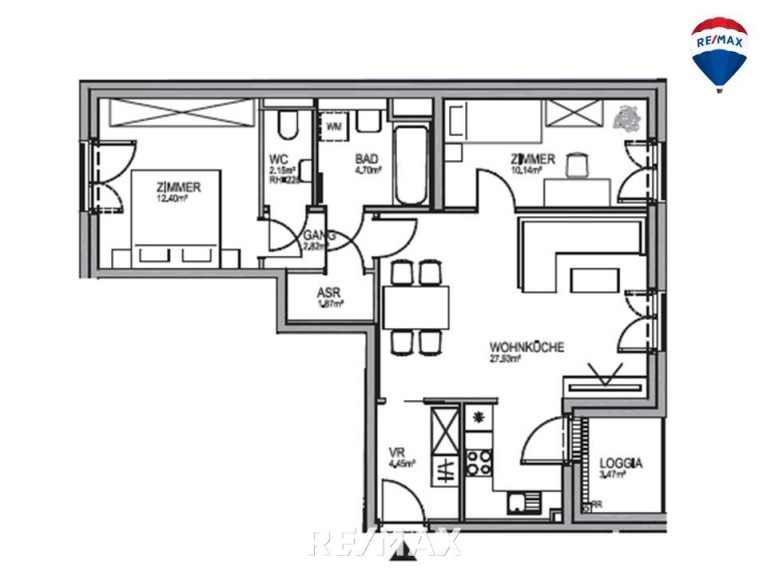
Diese 3-Zimmer-Wohnung im 1. Obergeschoss ist nach Süden und nach Norden ausgerichtet. Sie verfügt neben der Wohnküche über eine ca. 3,5 m² große südliche Loggia zur Anastasius-Grün-Gasse. Das Badezimmer ist mit einer Dusche ausgestattet. Eine separate Toilette und ein Abstellraum vervollständigen die gute Raumaufteilung.

Das Projekt erstreckt sich über zwei Adressen mit insgesamt 48 Wohnungen, einem Geschäftslokal und 33 Stellplätzen: Haus Green 2 in der Mollgasse 15 und Haus Green 1 in der Anastasius-Grün-Gasse 26. Im Innenhof befindet sich ein gemeinsamer Kinderspielplatz.

Die Ausstattung der Wohnungen und des Hauses bietet modernen Wohnkomfort:
- Zentralheizung, Warmwasservorbereitung und Temperierung mit ökologischer Sole-Wärmepumpenanlage mit Tiefensonden (Erdwärme)
- Heizung und Temperierung der Wohnung durch Bauteilaktivierung, zusätzliche Klimaanlagen im Dachgeschoss
- Photovoltaik-Thermie-Anlage für Stromerzeugung
- Parkettboden in Dielenoptik
- 60 × 60 cm keramische Bodenfliesen
- Elektrisch betriebene Außenbeschattung
- Jede Wohnung verfügt über ein Kellerabteil
- Stellplätze in der Hausgarage mit E-Ladestationen und eigener Lastenmanagementsoftware (gegen Aufpreis)
- Große Fahrradabstellräume im Erdgeschoss
- Begrünte Fassaden
Eine hochwertige Küche kann direkt über den Bauträger zum Vorteilspreis erworben werden, sodass Sie unmittelbar nach der Übergabe einziehen können.

Die Lage überzeugt durch die tolle Infrastruktur und gleichzeitige Ruhe. Durch den Währinger Park ist ein ruhiges und angenehmes Wohngefühl garantiert. Gleichzeitig profitieren die Bewohner von der Nähe zu den U-Bahn-Stationen Nußdorfer Straße und Spittelau. Der nächstgelegene größere Supermarkt ist nur ca. 2 Fahrminuten entfernt. Dieses Wohnprojekt bietet nicht nur ein Zuhause, sondern auch eine grüne Wohlfühloase mitten in Wien.

Die Wohnungen sind auch ideal zur Vermietung geeignet.
Der Verkaufspreis für Käufer mit Vorsteuerabzugsberechtigung beträgt € 485.000,00 netto. Stellplätze für KFZ oder Motorräder in der Hausgarage können optional dazu erworben werden. Jeder Stellplatz verfügt über eine Leerverrohrung für eine E-Ladestation. Eine E-Ladestation mit Lastenmanagement kann ebenfalls optional erworben werden.

Gerne unterstützen wir Sie auch bei der Finanzierung! Sprechen Sie Ihren Makler oder Ihre Maklerin aktiv an, wenn Sie noch keine Finanzierungszusage haben!

Wir weisen auf ein wirtschaftliches Nahverhältnis zum Eigentümer aufgrund voriger Vermittlungen hin.
Angaben gemäß gesetzlichem Erfordernis:
Heizwärmebedarf:25.4 kWh/(m²a)
Klasse Heizwärmebedarf:B
Faktor Gesamtenergieeffizienz:0.68
Klasse Faktor Gesamtenergieeffizienz:A+

Eckdaten

Objektnr: 3801_1171
Art: Wohnung - Etage
Land: Österreich
Baujahr: 2027
Alter: Neubau
Kaufpreis: 525.000,00
Wohnfläche: 66,46 m²
Zimmer: 3
Bäder: 1
WC: 1
Heizwärmebedarf:  B  25,40 kWh/m²a
fGEE:  A+  0,68
Immobilie merken Exposé

Ausstattung

Erdwärme, Zentralheizung


Internet und TV

Information zur Internet und TV Versorgung hier


Immobilie anfragen


Ihre persönliche Beratung

RE/MAX Together

Natalia Gelernter

RE/MAX Together

E natalia.gelernter@remax-together.at