Bungalow Rohbau - Traumhaus zum selber gestalten!

Haus - Bungalow, 4731 Prambachkirchen

Beschreibung der Immobilie

Bungalow Rohbau - Gestalten Sie Ihr Traumhaus nach eigenen Vorstellungen!

Der Innenausbau kann individuell abgeschlossen werden – ideal für kreative Eigenheimbauer oder Investoren.
+ Großzügiger Gartenbereich: Viel Platz für Freizeit, Gartenprojekte oder einen Pool – hier bleiben keine Wünsche offen.
+ Massive Bauweise und hochwertige Fenster sorgen für dauerhaften Wohnkomfort.

Modern geplanter Bungalow mit einer Wohnnutzfläche von ca. 128 m², einem Kellergeschoss von ca. 100 m² auf einem 1372 m² großen Grundstück. Die Immobilie befindet sich in einer ruhigen Siedlungslage in Südostausrichtung, als eines von mehreren Häusern einer Wohnsiedlung nahe Unterbruck in der Marktgemeinde Prambachkirchen.

Die Baubewilligung wurde im November 2023 erteilt und 2024 erfolgte der Baustart.

Dieser Einfamilienhaus-Rohbau wurde auf einem ebenen Baugrundstück in Ziegelbauweise errichtet. Er besteht aus einem ca. 60 m² großen Bestandsgebäude mit Kellergeschoss aus dem Jahr 1960 und dem 2024 angebauten Neubau samt Keller auch im Ausmaß von jeweils ca. 60 m². Der Rohbau ist inklusive Zwischenwände fertiggestellt. Die Außenwände des Bestandes wurden mit 30 er Ziegeln gemauert, die des Neubaues mit 50 cm Ziegel. Das mit Tondach-Ziegeln gedeckte Walmdach wurde bereits fertig gestellt.

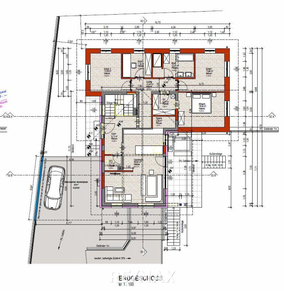
Die 128 m² große, barrierefreie Wohnfläche besteht aus einen Vorraum und Gang, drei Schlafzimmer, einem Schrankraum,
einem Büro, einem Badezimmer und WC, ein Gäste- WC, sowie einem besonders großzügigen offenen Wohn-Ess-Küchenbereich
mit angrenzender kleiner Speis. Vom Wohnraum hat man direkten Zugang zur bereits vorhandenen
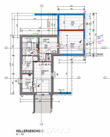
gartenseitigen ca. 28 m² großen Terrasse. Der Keller wurde mit einem Neubau um ca. 36 m² in Richtung Osten erweitert.
Darin befinden sich zwei sehr attraktive Räume von denen man direkt in den Garten gelangt.
Diese Räume würden sich entweder für weitere Schlafräume oder aber auch sehr gut für eine berufliche Nutzung eignen.

Beim Heizsystem sind Sie noch maximal flexibel. Auf Grund des großen, ebenen Gartens würde sich eine Kollektoren-
Wärmepumpenheizung sehr gut eignen, welche die Heizkosten niedrig hält und umweltfreundlich ist.

Die Infrastruktur-Anschlüsse für Wasser, Kanal, Strom sowie Straße sind bereits vorhanden und im Kaufpreis inkludiert.

Eckdaten im Überblick:
• Grundstücksfläche: 1.372 m²
• Bauzustand: ROHBAU-Haus zum Fertigstellen – Innenausbau nach eigenen Wunsch möglich
• Heizung: Moderne Wärmepumpenheizung mit Kollektoren möglich
• Fenster: Hochwertige Internorm-Kunststoff-Fenster, innen weiß, außen Alu in anthrazit
mit ausgezeichneter Wärmedämmung

Lage:
Das Haus befindet sich in einer ruhigen und beliebten Wohnlage in Prambachkirchen – ideal für Familien, Naturliebhaber und alle, die die Vorzüge des Landlebens mit guter Infrastruktur kombinieren möchten. Einkaufsmöglichkeiten, Schulen, Kindergarten und öffentliche Verkehrsmittel sind gut erreichbar.

Prambachkirchen gilt als idealer Lebensmittelpunkt für Familien und Menschen, die Natur lieben und schätzen. Eingebettet in die sanfte Hügellandschaft des Hausruckviertels sind es kurze Distanzen zu den umliegenden Städten Wels, Linz, Grieskirchen. In der Gemeinde leben derzeit ca. 3000 Einwohner:innen - sie bietet eine perfekte Infrastruktur von Kindergarten, Schulen, Arzt bis zu Nahversorgung und Freizeitmöglichkeiten.

Die Marktgemeinde hat sich wegen ihrer Schnittstelle zum Zentralraumes Linz-Wels und dem Naherholungsgebiet Aschachtal / Mayrhoferberg zu einer sehr beliebten Wohngegend entwickelt. Im Umfeld der Liegenschaft sind der Sparmarkt, zwei Banken,
der praktische Arzt, ein Zahnarzt und weitere Dienstleister für den täglichen Bedarf zu erreichen.

Die Städte Linz und Wels sind beide jeweils nur ca. 35 bis 40 Autominuten entfernt. Mit der Linzer Lokalbahn kommt man in ca. 50 Minuten zum Linzer Hauptbahnhof - das Job- Bildungs- und Kulturangebot und Freizeitangebot der Landeshauptstadt kann somit in einer sehr attraktiven Zeit erreicht werden!

Besonderheiten:
• Gestalten Sie Ihr Eigenheim beim Fertigstellen nach Ihren Vorstellungen: Der Innenausbau kann individuell abgeschlossen werden –
ideal für kreative Eigenheimbauer oder Investoren.
• Großzügiger Gartenbereich: Viel Platz für Freizeit, Gartenprojekte oder einen Pool – hier bleiben keine Wünsche offen.
• Massive Bauweise und hochwertige Fenster sorgen für dauerhaften Wohnkomfort.

Wenn Sie Ihren Traum vom Leben in den eigenen 4 Wänden realisieren möchten und Sie diese Immobilie entsprechend anspricht,
steht Ihnen für Fragen zum Objekt unser Ansprechpartner gerne zur Verfügung!

Gerne können Sie unverbindlich einen Besichtigungstermin vereinbaren.


BITTE BEACHTEN SIE, dass wir aufgrund der Nachweispflicht gegenüber dem Eigentümer nur Anfragen mit vollständiger Angabe des Namens, der Wohnadresse sowie der Telefonnummer bearbeiten können. Gerne senden wir Ihnen ein kostenloses Detailangebot mit weiteren Informationen zu.

Bitte beachten Sie, dass es sich bei diesem Angebot (Objekt und Kaufpreis) um kein verbindliches Angebot handelt. Eine Einigung über das Objekt und den Kaufpreis kann ausschließlich in schriftlicher Form zwischen dem Auftraggeber und dem Interessenten erzielt werden. Explizit weisen wir darauf hin, dass alle Angaben nach bestem Wissen erstellt wurden. Irrtümer, Druckfehler, Zwischenverkauf und Änderungen vorbehalten. Für Auskünfte u. Angaben, die uns von Seiten der Eigentümer und Dritten zur Verfügung gestellt wurden, können wir keine Haftung übernehmen. Wir möchten an dieser Stelle auf unsere Doppelmaklertätigkeit Gem. § 5, Abs. 3 Maklergesetz hinweisen.
Angaben gemäß gesetzlichem Erfordernis:
Heizwärmebedarf:51.0 kWh/(m²a)
Faktor Gesamtenergieeffizienz:0.85

Eckdaten

Objektnr: 3777_362
Art: Haus - Bungalow
Land: Österreich
Baujahr: ca. 2024
Kaufpreis: 325.000,00
Provision: 3.00 %
Wohnfläche: 120,00 m²
Grundstücksfl.: 1.372,00 m²
Zimmer: 6,50
Bäder: 1
WC: 2
Terrassen: 1
Stellplätze: 2
Keller: 95,00 m²
Heizwärmebedarf: 51,00 kWh/m²a
fGEE: 0,85
Immobilie merken Exposé

Ausstattung

Garage, Parkplatz


Internet und TV

Information zur Internet und TV Versorgung hier


Immobilie anfragen


Ihre persönliche Beratung

RE/MAX Bonus

Ing. Mag. Andreas Aumayr

RE/MAX Bonus

E office@remax-bonus.at

T 67072

H +43 (0) 7272 670 72