Panoramarestaurant & Eventlocation "Ko'eck" im Mariazeller Land

Gastgewerbe , 3224 Mitterbach am Erlaufsee

Beschreibung der Immobilie

Panoramarestaurant & Eventlocation „Ko’eck“ in Mariazellerland

Ein Ort mit Stil, Charakter und regionalem Herzblut

Im charmanten Ortskern von Mitterbach am Erlaufsee, inmitten einer der schönsten Naturkulissen Niederösterreichs, steht ein gastronomisches Schmuckstück zum Verkauf: Das Ko’eck – ein modernes Panoramarestaurant mit stilvoller Eventlocation und einer Architektur, die sich harmonisch in das alpine Dorfbild einfügt.
Dieses außergewöhnliche Objekt spricht Genießer, Gastgeber und Investoren gleichermaßen an: ein Ort, der Emotionen schafft, Atmosphäre bietet und Raum für vielfältige Nutzungskonzepte lässt.

Die Immobilie im Überblick:
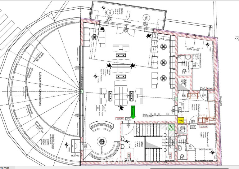
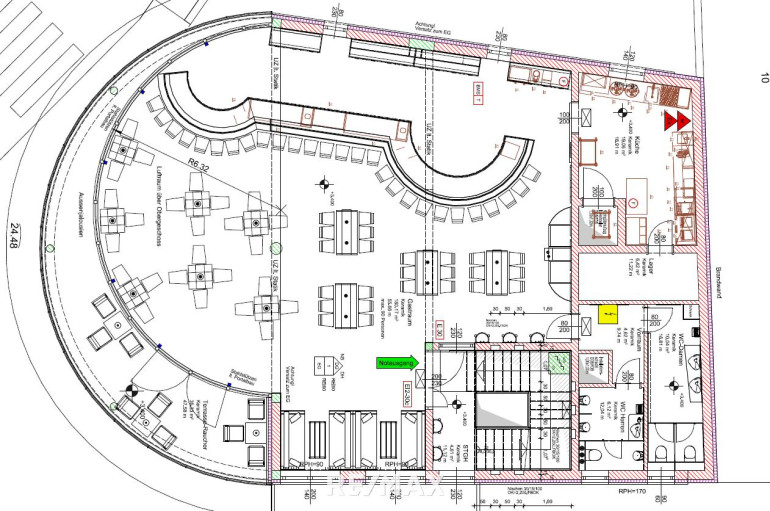
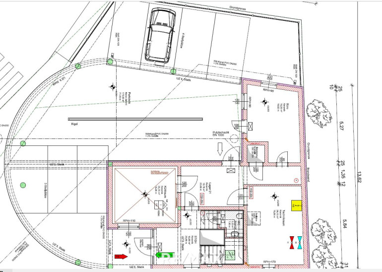
• Gesamtfläche: ca. 558 m² Nutzfläche auf drei Etagen
• Parkdeck mit ca. 175 m²
• Veranstaltungsfläche für ca. 150 bis 300 Gäste
• Innenliegender Restaurant- und Barbereich mit großzügigen Glasfronten
• Stilvolle Galerie-Lounge im Obergeschoss mit separatem Barbereich
Panoramaterrasse mit Blick auf den Ort und die umliegende Bergwelt
• Gepflegter Köck-Brunnen als Wahrzeichen vor dem Haus
• 2 Angestelltenwohnungen

Kulinarik & Begegnung auf zwei Ebenen
Der offen gestaltete Bar- und Restaurantbereich im ersten Obergeschoss überzeugt durch seine moderne Formensprache, natürliche Materialien, hochwertiges Mobiliar und das warme Spiel aus Licht und Glas. Die Panoramafenster holen die Landschaft direkt ins Haus – ideal für Tagesbetrieb und Abendveranstaltungen.
Das Highlight im Obergeschoss: Eine elegante Lounge mit Bar, Ethanol-Kamin und stilvollem Interieur, perfekt geeignet für kleinere Feiern, Business-Events oder exklusive Empfänge. Hier trifft gemütliche Alpenästhetik auf zurückhaltende Moderne.

Vielfältige Nutzungsmöglichkeiten
Ob:
• Hochzeit im kleinen oder großen Rahmen
• Geburtstagsfeiern mit Stil
• Weihnachtsfeiern & Jubiläen
• Seminare, Workshops & Business-Retreats
• Kulturabende, Lesungen oder Kulinarik-Events
Das Ko’eck ist bereit für jede Art von Veranstaltung – und bietet gleichzeitig den Rahmen für tägliches À-la-carte-Geschäft oder thematische Eventreihen.

Ausstattung:
• Komplett ausgestattete Gastronomieküche mit allen Anschlüssen
• Hochwertige Bar-Infrastruktur mit Kühlung & Theke
• Möblierung im Innen- und Loungebereich inklusive
• Moderne Ton- und Lichttechnik im Loungebereich
• Lagerflächen und Nebenräume im Erdgeschoss
• Separater Zugang zu beiden Ebenen möglich
• Gute Erreichbarkeit und Parkmöglichkeiten vor Ort

Lage & Frequenz:
Mitterbach am Erlaufsee befindet sich inmitten der bekannten Naturparkregion Ötscher-Tormäuer und gilt als einer der beliebtesten Ausgangspunkte für Naturerlebnisse, Sport und Erholung. Die Region zieht ganzjährig Besucher an – vom Sommer-Tourismus mit Wandern, Radfahren und Wassersport bis hin zum Winter-Tourismus mit Skifahren, Snowboarden und Schneeschuhwandern.
In direkter Umgebung liegen zahlreiche touristische Highlights:
• Erlaufsee – Naturbadesee mit höchster Wasserqualität, beliebt bei Badegästen, Tauchern und Anglern.
• Mariazellerbahn – traditionsreiche Schmalspurbahn mit direkter Anbindung Richtung St. Pölten.
• 3 Berge-Skigebiet Annaberg, Gemeindealpe, Bürgeralpe – abwechslungsreiches Wintersportgebiet mit modernen Liftanlagen.
• Bürgeralpe – familienfreundliches Ganzjahresgebiet mit Erlebnisangeboten für Kinder und Familien.
• Wander- und Radwege – bestens erschlossenes Netz für Aktivtouristen und Naturliebhaber.
• Mariazell – einer der bedeutendsten Wallfahrtsorte Europas mit bis zu 1 Million Pilgern pro Jahr.
• Ötschergräben - das "Grand Canyon Österreichs" - Die wildromantische Schlucht am Fuße des Ötschers begeistert mit tosenden
Wasserfällen, klaren Bächen und beeindruckenden Felsformationen. Auf gesicherten Steigen und Brücken erleben Besucher eine
der schönsten Wanderlandschaften Niederösterreichs.

Frequenz & Erreichbarkeit:
Dank der zentralen Lage direkt im Ortskern ist das Ko’eck sowohl für Einheimische als auch für Gäste bestens sichtbar und bequem fußläufig erreichbar. Der Standort profitiert von:
• hoher Passantenfrequenz durch Touristen, Sportler und Pilger
• ganzjähriger Auslastung durch Sommer- und Wintertourismus
• starker regionaler Verankerung in einer lebendigen Gemeinde
• guter Verkehrsanbindung durch die Mariazellerbahn und die Nähe zu Mariazell

Attraktivität der Region:
Die Region Mitterbach–Mariazell ist ein ganzjähriges Tourismusziel:
• Im Sommer: Wandern, Radfahren, Bergsteigen, Natur- und Wassersport.
• Im Winter: Skifahren, Snowboarden, Rodeln, Schneeschuhwandern.
• Ganzjährig: Pilger- und Kulturtourismus, Ausflugsziele, regionale Kulinarik.
Die Verbindung aus Natur, Sport, Kultur und Tradition sorgt für ein breites Besucherprofil und damit für nachhaltige Nachfrage – sowohl im Tages- als auch im Nächtigungstourismus.

Fazit:
Mit dem Ko’eck erwerben Sie nicht nur ein Restaurant – sondern eine etablierte, vielseitig nutzbare Plattform für Gastronomie, Veranstaltungen und Begegnungen im Herzen einer stark frequentierten Tourismusregion.
Ein Objekt mit Substanz, Stil und viel Raum für Ihre Visionen.

Startpreis: € 1.100.000,--
(Preis im Rahmen der Vermarktung verhandelbar – endgültige Zustimmung durch Eigentümer nach Angebotslegung.)

Vereinbaren Sie noch heute Ihren individuellen Besichtigungstermin!
Wir freuen uns, Ihnen dieses besondere Objekt persönlich zu zeigen.

Da wir eine Nachweispflicht gegenüber dem Eigentümer haben, ersuchen wir Sie, bei Anfragen und Besichtigungswünschen, um Bekanntgabe Ihrer vollständigen Kontaktdaten einschließlich: Vor- und Zuname, Adresse und Telefonnummer. Kaufnebenkosten:
3,5 % Grunderwerbsteuer
1,1 % Grundbucheintragungsgebühr
3,6 % Vermittlungshonorar (inkl. 20 % USt.)
Vertragserrichtungskosten (Notar oder Anwalt)
Angaben gemäß gesetzlichem Erfordernis:
Heizwärmebedarf:63.1 kWh/(m²a)
Klasse Heizwärmebedarf:C
Faktor Gesamtenergieeffizienz:0.8
Klasse Faktor Gesamtenergieeffizienz:A

Neu: 360 Grad Bilder auf www.remax.at

ICH BITTE UM VERSTÄNDNIS, DASS WIR AUFGRUND DER NACHWEISPFLICHT GEGENÜBER DEM EIGENTÜMER NUR ANFRAGEN MIT VOLLSTÄNDIGER ANGABE DER ANSCHRIFT BEARBEITEN KÖNNEN. WIR ARBEITEN NUR MIT BESICHTIGUNGSBESTÄTIGUNG UND ZWEIFELSFREIER LEGITIMATION.

Für weitere Informationen stehe ich Ihnen natürlich gerne zur Verfügung:
Stefan Kagerer erreichbar unter +43 660 5039940 oder s.kagerer@remax-park.at.
RE/MAX Park, Stefan Kagerer e.U.

Alle Immobilien finden Sie auf www.remax.at!

Eckdaten

Objektnr: 3519_382
Art: Gastgewerbe
Land: Österreich
Alter: Neubau
Kaufpreis: 1.100.000,00
Kaufpreis / m²: auf Anfrage
Provision: 3.00 %
Nutzfläche: 558,00 m²
Grundstücksfl.: 449,00 m²
Heizwärmebedarf:  C  63,10 kWh/m²a
fGEE:  A  0,80
Immobilie merken Exposé

Ausstattung

Angeschl. Bar, Kabel/Satelliten-TV, Alarmanlage, Gastterrasse


Internet und TV

Information zur Internet und TV Versorgung hier


Immobilie anfragen


Ihre persönliche Beratung

RE/MAX Park

Dkfm. Stefan Kagerer

RE/MAX Park

E s.kagerer@remax-park.at

H +43 660 503 99 40