2 Zimmer Wohnung in zentraler Lage von Penzing

Wohnung - Etage, 1140 Wien , Leegasse

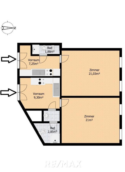
Beschreibung der Immobilie

Seltene Gelegenheit - charmanter Altbau: Zwei Wohneinheiten im Herzen von Penzing

Im beliebten 14. Wiener Gemeindebezirk Penzing gelangt eine ca. 62,60 m² große Altbauwohnung in einem vollsanierten Gründerzeithaus aus 1900 zum Verkauf. Die Wohnung befindet sich im Parterre eines sehr gepflegten Hauses mit Aufzug und ist aktuell in zwei separate Wohneinheiten geteilt, grundbücherlich handelt es sich um eine Wohnung – perfekt für Anleger, Familien mit erwachsenem Kind oder für Eigennutzer mit Vermietungsoption.

Die Immobilie bietet eine praktische Raumaufteilung mit Altbauelementen. Während eine Wohneinheit bereits modernisiert wurde, bietet die zweite Einheit mit Renovierungsbedarf großes Gestaltungspotenzial – ideal für eine persönliche Note oder eine wertsteigernde Sanierung.
Durch einen einfachen Wanddurchbruch könnte die Wohnung bei Bedarf wieder zu einer großzügigen 2-Zimmer-Wohnung mit geräumigem Bad und getrennte Küche umgestaltet werden.

Fast Facts:
• Wohnfläche: ca. 62,60 m²
• Derzeit geteilt in 2 Wohneinheiten:
o Je ca. 21 m² großes Zimmer
o Separater Vorraum mit Küche
o Eigenes Bad und WC je Einheit
• Stockwerk: Eingang Parterre, Fenster Souterrain
• Gebäude: Stilvoller, vollständig sanierter Altbau (Bj. ca. 1900)
• Zustand:
o Einheit A: modernisiert
o Einheit B: renovierungsbedürftig
• Böden: Parkett
• Fenster: Kunststoff
• Heizung: Gasetagenheizung
• Kellerabteil: vorhanden für Nutzung
• Lift: vorhanden
• Ausrichtung: Norden

Lage & Infrastruktur:
Die Wohnung befindet sich in ruhiger und zugleich hervorragend angebundener Lage im Herzen von Wien-Penzing. Nur ca. 150 Meter entfernt liegt die U4-Station Braunschweiggasse, über die Sie in nur 15 Minuten bequem ins Stadtzentrum gelangen. Der Wientalradweg führt direkt an der Wohnung vorbei – ideal für Pendler und Freizeitaktive.

Infrastruktur im Überblick:
• Nahversorgung, Supermärkte, Bäckereien und Apotheken fußläufig erreichbar
• Schulen, Kindergärten, Ärzte und Restaurants in der Nähe
• Fußweg oder Brücke zum 13. Bezirk und Hietzinger Einkaufsstraßen
• Naherholungsgebiete wie Schlosspark Schönbrunn, Roter Berg, Lainzer Tiergarten in kurzer Distanz

Besonderheiten:
• Zwei eigenständige Wohneinheiten mit eigenem Bad/WC – ideal zum Vermieten oder für Mehrgenerationenwohnen
• Flexible Rückgestaltung in großzügige 2-Zimmer-Wohnung möglich
• Stilvoller Altbau in Top-Zustand mit Lift
• Viel Licht trotz Nordausrichtung durch Fenster

Hinweis:
Die Wohnung ist parifiziert und grundbücherlich als eine Einheit gewidmet, derzeit aber baulich geteilt. Rückführung in eine Einheit ist möglich.
Ein Energieausweis ist in Erstellung und wird sobald verfügbar nachgereicht

Interesse geweckt?
Vereinbaren Sie noch heute einen Besichtigungstermin und lassen Sie sich vom Altbaucharme und dem Potenzial dieser Immobilie überzeugen.
Wir freuen uns auf Ihre Kontaktaufnahme!

Alle Angaben beruhen auf Informationen des Eigentümers sowie der Hausverwaltung und sind ohne Gewähr.

Doppelmaklertätigkeit:
Wir informieren Sie darüber, dass wir bei diesem Objekt eine Doppelmaklertätigkeit ausüben (§ 5 Abs. 3 MaklerG).


Haben Sie schon eine Finanzierung?
Wenn nicht, stellen wir gerne einen Kontakt zu einem Finanzierungsberater her. Wir arbeiten mit den beiden größten Anbietern am Markt zusammen, die durch Ihr breites Portfolio an Partnerbanken oftmals die besten Konditionen für Sie herausholen können!

Nebenkosten:
3,5% Grunderwerbsteuer; 1,1% Grundbucheintrag; ca. 1-3% Notar für Vertragserrichtung; 3% Vermittlungsprovision zuzügl. Ust.,
ggf. Finanzierungskosten und Gebühren der Bank oder des Kreditinstitutes.

Eckdaten

Objektnr: 3141_3092
Art: Wohnung - Etage
Land: Österreich
Baujahr: ca. 1900
Zustand: Gepflegt
Kaufpreis: 225.000,00
Provision: 3.00 %
Wohnfläche: 62,60 m²
Zimmer: 2
Bäder: 2
WC: 2
Immobilie merken Exposé

Ausstattung

Gas, Etagenheizung, Personenaufzug


Internet und TV

Information zur Internet und TV Versorgung hier


Immobilie anfragen


Ihre persönliche Beratung

RE/MAX Emotion in Wien-Penzing

Mag. Tetiana Motorna

RE/MAX Emotion in Wien-Penzing

E t.motorna@remax-emotion.at

T +43/1/890933030

H +43 676 704 38 37