Top-Gewerbeobjekt in bester Lage zu Mieten

Halle / Lager / Produktion - Produktion, 6923 Lauterach

Beschreibung der Immobilie

+ Nutzfläche ca. 4.148 m²
+ Halle ist beheizt mit einer Luftheizung
+ Beleuchtung komplett auf LED umgestellt vor ca. 10 Jahren
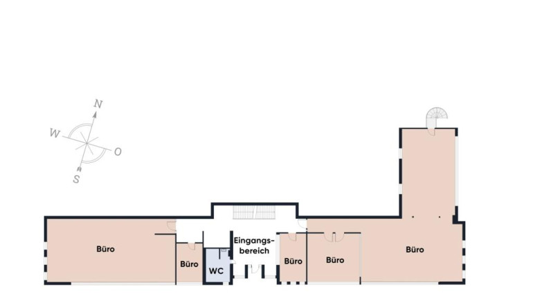
+ Wendeltreppe vom Büro in die Halle
+ 2 Anpassrampen
+ Raumhöhe Lagerhalle ca. 6 m
+ Anbindung Autobahn A14
+ Ausreichend Parkmöglichkeiten

Halle und Büro in bester Lage

Diese moderne Gewerbeliegenschaft aus dem Jahr 1992 vereint funktionale Hallenflächen mit großzügigen Büroeinheiten und bietet ideale Voraussetzungen für unterschiedlichste Branchen. Dank der Widmung BB-I-Pa,b,c eröffnen sich vielfältige Nutzungsmöglichkeiten für Produktion, Lager, Handel oder Dienstleistung.
Die ca. 6 Meter hohe Halle ist mit einer effizienten Luftheizung ausgestattet und verfügt über zwei Anpassrampen – perfekt für eine reibungslose Anlieferung. Eine interne Wendeltreppe verbindet die Halle direkt mit dem Obergeschoss, wo sich die klimatisierten Büroräume befinden. Diese überzeugen durch ihre großzügige Gestaltung und flexible Aufteilung. Beheizt wird die gesamte Immobilie über eine Gaszentralheizung.
Ein weiterer Pluspunkt: Die Beleuchtung wurde bereits auf moderne LED-Technik umgestellt – das sorgt für Energieeffizienz und geringe Betriebskosten. 
Direkt am Gelände stehen ausreichend Parkplätze für Mitarbeitende und Kunden zur Verfügung – ein echter Mehrwert in der täglichen Nutzung.
Diese Liegenschaft ist die perfekte Basis für effiziente Arbeitsabläufe, wirtschaftliches Wachstum und eine zukunftsorientierte Unternehmensführung. Jetzt mieten und durchstarten!
Provision 3 Bruttomonatsmieten zzgl. 20% MwSt.
Kaution: 3 BMM Bankgarantie oder Bar
Vertragserrichtungskosten
Mietvertragsgebühren
Angaben gemäß gesetzlichem Erfordernis:
Heizwärmebedarf:46.0 kWh/(m²a)
Klasse Heizwärmebedarf:B
Faktor Gesamtenergieeffizienz:1.11
Klasse Faktor Gesamtenergieeffizienz:C

Eckdaten

Objektnr: 2552_5955
Art: Halle / Lager / Produktion - Produktion
Land: Österreich
Baujahr: 1992
Nutzfläche: 4.148,00 m²
Heizwärmebedarf:  B  46,00 kWh/m²a
fGEE:  C  1,11
Immobilie merken Exposé

Internet und TV

Information zur Internet und TV Versorgung hier


Immobilie anfragen


Ihre persönliche Beratung

RE/MAX Immowest

Reinhard Götze

RE/MAX Immowest

E r.goetze@remax-immowest.at

T +43/5574/53434210

H +43 664/4437058