Exklusives Wohnen im Herzen von Rankweil – Neubauwohnung mit Gestaltungsfreiheit

Wohnung - Etage, 6830 Rankweil

Beschreibung der Immobilie

In einer ruhigen Sackgasse der begehrten Marktgemeinde Rankweil befindet sich diese exklusive Kleinwohnanlage mit nur sieben Wohneinheiten – ein Projekt, das Privatsphäre, Komfort und Nachhaltigkeit auf höchstem Niveau vereint.

Highlights der Wohnanlage:

+ Ruhige Lage in einer Sackgasse
+ Vorbereitung für E-Mobilität (Leerverrohrung für E-Autos und E-Bikes)
+ Umweltfreundliches Heizsystem mit Erdwärme und Photovoltaikanlage
+ Barrierefreier Zugang durch Personenlift und Tiefgarage
+ Großzügige Kellerabteile sowie gemeinschaftlicher Werkraum
+ Fahrradabstellflächen im Erdgeschoss und in der Tiefgarage
+ Zwei Tiefgaragenplätze sowie Außenstellplätze

Individuelles Wohnkonzept mit Stil und Gestaltungsmöglichkeit:

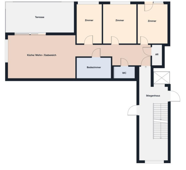
Die hochwertige 4-Zimmer-Wohnung mit ca. 94,8 m² Wohnfläche befindet sich im 1. OG und aktuell noch im Rohbau. Sie bietet Ihnen die einmalige Gelegenheit, Ihre Vorstellungen vom perfekten Zuhause zu verwirklichen. Ein durchdachter Grundriss mit lichtdurchfluteten Räumen, offenem Wohnbereich und einer großzügigen Terrasse schafft ein elegantes und zugleich wohnliches Ambiente.
Dank einer detaillierten Ausstattungsbeschreibung in enger Abstimmung mit dem Bauträger, können Sie Materialien und Ausführungen ganz nach Ihren Wünschen wählen – von hochwertigen Bodenbelägen bis zu stilvollen Sanitärelementen. So entsteht ein Zuhause, das Ihre persönliche Handschrift trägt.
Die moderne Architektur gepaart mit erstklassiger Bauqualität garantiert zeitgemäßes Wohnen mit Zukunft – energieeffizient, komfortabel und stilvoll.
Lage – Zentral. Ruhig. Lebenswert.

Lage:

Die Wohnanlage befindet sich in zentraler und dennoch sehr ruhiger Lage von Rankweil – einem beliebten Wohnort im Vorarlberger Vorderland mit ausgezeichneter Infrastruktur.
Der charmante Ortskern mit der markanten Basilika, attraktiven Geschäften, gemütlichen Restaurants und vielfältigen Freizeit- und Kulturangeboten ist fußläufig in wenigen Minuten erreichbar. Schulen, Kindergärten, Sporteinrichtungen sowie eine sehr gute Verkehrsanbindung runden das erstklassige Wohnumfeld ab.

Ihr neues Zuhause mit Perspektive – für Menschen mit Anspruch und Weitblick.
- 3,5% Grunderwerbsteuer
- 1,1% Grundbuchseintragung (entfällt bis € 500.000,00)*
- Beglaubigungskosten + Barauslagen

*Für Detailinformationen stehen wir Ihnen gerne zur Verfügung.
Angaben gemäß gesetzlichem Erfordernis:
Heizwärmebedarf:32.0 kWh/(m²a)
Klasse Heizwärmebedarf:B
Faktor Gesamtenergieeffizienz:0.56
Klasse Faktor Gesamtenergieeffizienz:A+

Eckdaten

Objektnr: 2552_6017
Art: Wohnung - Etage
Land: Österreich
Baujahr: 2025
Kaufpreis: auf Anfrage
Wohnfläche: 94,80 m²
Zimmer: 4
Stellplätze: 2
Keller: 8,00 m²
Heizwärmebedarf:  B  32,00 kWh/m²a
fGEE:  A+  0,56
Immobilie merken Exposé

Ausstattung

Parkplatz


Internet und TV

Information zur Internet und TV Versorgung hier


Immobilie anfragen


Ihre persönliche Beratung

Anja Gmeiner

RE/MAX Immowest

E a.gmeiner@remax-immowest.at

T +43/5574/53434