Ein Haus voller Chancen für Visionäre mit Herz
Haus
- Einfamilienhaus,
6900
Bregenz
Beschreibung der Immobilie
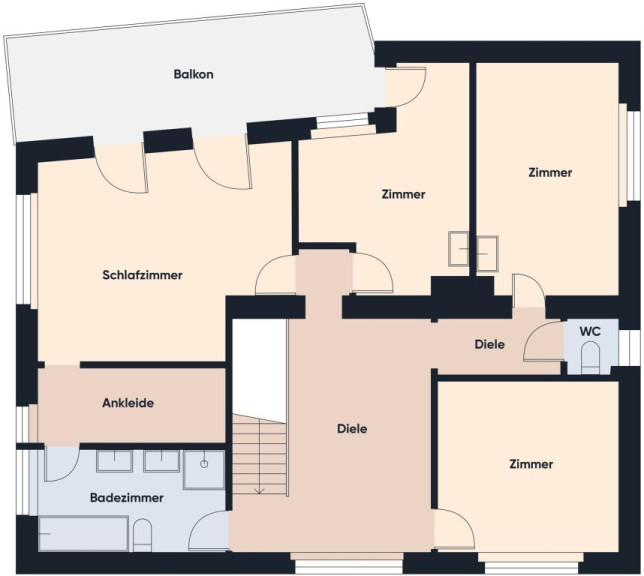
+ Ankleide
+ Badezimmer mit 2 Zugängen
+ Offener Kamin im Wohnzimmer und auf der Terrasse
+ Garten mit altem Baumbestand
+ Top Wohnlage: ruhige, dennoch zentrumsnah
+ Klassische Architektur
+ Gute Infrastruktur
+ Sehr ruhige Wohngegend
Dieses Haus erzählt Geschichten: von klassischer Architektur, großzügigem Wohnraum und einem Garten, der schon viele Sommer zum Blühen gebracht hat. Sieben Zimmer, eine separate Ankleide und ein großes Badezimmer mit zwei Zugängen schaffen ein durchdachtes Raumkonzept – doch die wahre Stärke liegt im Potenzial dieses Hauses.
Eine umfassende Sanierung ist unumgänglich – und zugleich die Chance, aus diesem stilvollen Altbau ein wahres Wohnjuwel zu formen. Die Substanz bietet Raum für kreative Ideen, moderne Technik und neue Lebensqualität im klassischen Gewand.
Der große Garten mit gewachsenem Baumbestand ist eine grüne Oase und macht das Grundstück besonders reizvoll. In ruhiger Lage, gleichzeitig zentrumsnah gelegen, profitieren Sie von einer hervorragenden Infrastruktur mit kurzen Wegen zu Schulen, Einkaufsmöglichkeiten und öffentlichen Verkehrsmitteln.
Dieses Haus richtet sich an Menschen mit Weitblick, die das Besondere erkennen – und bereit sind, einem charmanten, aber in die Jahre gekommenen Zuhause neues Leben einzuhauchen. Ein Projekt mit Seele, Geschichte und großem Zukunftspotenzial.
- 3,5% Grunderwerbsteuer
- 1,1% Grundbuchseintragung (entfällt bis € 500.000,00)*
- 3,0% Vermittlungsprovision zzgl. 20% MwSt.
- Vertragserrichtungskosten
- Beglaubigungskosten + Barauslagen
*Für Detailinformationen stehen wir Ihnen gerne zur Verfügung.
Die Sonnenstraße zählt zu den begehrtesten Wohnlagen in Bregenz – ruhig gelegen und doch zentrumsnah. In kurzen Distanzen erreichen Sie die Bregenzer Innenstadt, den Bodensee sowie den Bahnhof. Die Nachbarschaft ist geprägt von gepflegten Einfamilienhäusern und viel Grün, was ein angenehmes Wohnklima garantiert. Schulen, Einkaufsmöglichkeiten und Freizeitangebote befinden sich in unmittelbarer Umgebung. Diese Lage vereint urbanen Komfort mit hoher Lebensqualität.
| Angaben gemäß gesetzlichem Erfordernis: | |||
| Heizwärmebedarf: | 114.0 kWh/(m²a) | ||
| Klasse Heizwärmebedarf: | D | ||
| Faktor Gesamtenergieeffizienz: | 1.66 | ||
| Klasse Faktor Gesamtenergieeffizienz: | C | ||
Eckdaten
| Objektnr: | 2552_6035 |
| Art: | Haus - Einfamilienhaus |
| Land: | Österreich |
| Baujahr: | 1966 |
| Zustand: | Teil_vollrenovierungsbed |
| Kaufpreis: | auf Anfrage |
| Provision: | 3.00 % |
| Wohnfläche: | 187,00 m² |
| Grundstücksfl.: | 1.130,00 m² |
| Zimmer: | 7 |
| Bäder: | 1 |
| Stellplätze: | 2 |
| Keller: | 128,00 m² |
| Heizwärmebedarf: | D 114,00 kWh/m²a |
| fGEE: | C 1,66 |
Ausstattung
Garage, Parkplatz
Internet und TV
Information zur Internet und TV Versorgung hier
Ihre persönliche Beratung
Reinhard Götze
RE/MAX Immowest
E r.goetze@remax-immowest.at
T +43/5574/53434210
H +43 664/4437058