Ideal für Idealisten: Arbeiten und Wohnen im Herzen von Lochau

Einzelhandel - Ladenlokal, 6911 Lochau

Beschreibung der Immobilie

+ Arbeiten im Erdgeschoss und Wohnen im Obergeschoss
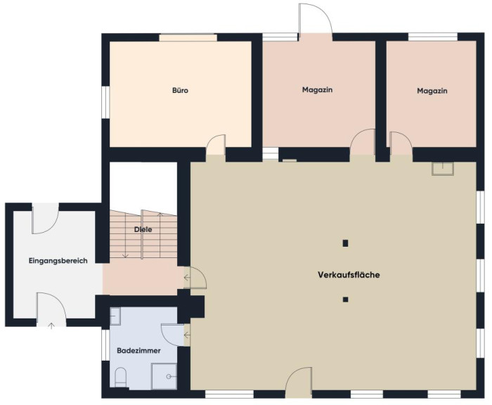
+ Geschäftslokal im EG mit Lager und Keller ca. 141 m²
+ 3-Zimmer-Wohnung im 1. OG ca. 88 m²
+ Nach Absprache die Wohnung im OG separat mietbar
+ Beste Lage von Lochau, zentral im Ortskern
+ Blick bis zum Bodensee
+ Sehr gute Bausubstanz
+ Beziehbar ab sofort

In guter Lage von Lochau erwartet Sie eine einzigartige Kombination aus Geschäftslokal und Wohneinheit. Im Erdgeschoss stehen Ihnen ca. 141 m² Geschäftsfläche mit Lager und Keller zur Verfügung – ideal für Handel, Dienstleistungen oder ein Büro. Dank der zentralen Position im Ortskern profitieren Sie von hoher Sichtbarkeit und bester Erreichbarkeit.

Das 1. Obergeschoss beherbergt eine 3-Zimmer-Wohnung mit ca. 88 m². Hier genießen Sie nicht nur kurze Wege zum Arbeitsplatz, sondern auch einen herrlichen Blick bis zum Bodensee.

Die Liegenschaft überzeugt durch ihre sehr gute Bausubstanz und ist ab sofort beziehbar. Eine getrennte Vermietung von Geschäftsfläche und Wohnung ist ebenfalls möglich, wodurch sich vielseitige Nutzungsperspektiven eröffnen.

Gastronomie, Einkaufsmöglichkeiten und öffentliche Verkehrsanbindungen befinden sich in unmittelbarer Nähe.

Ein Objekt, das Arbeiten und Wohnen auf ideale Weise verbindet – in einer Lage, die sowohl geschäftlich als auch privat überzeugt.
Provision 3 Bruttomonatsmieten zzgl. 20% MwSt.
Kaution: 3 BMM Bankgarantie oder Bar
Vertragserrichtungskosten
Mietvertragsgebühren
Die Geschäftsfläche befindet sich in der Gemeinde Lochau. Diese Region ist bekannt für ihre Lage am Ufer des Bodensees und die beeindruckende Kulisse der umliegenden Bergen. Lochau besticht durch seine Nähe zur Stadt Bregenz und Lindau, die eine Vielzahl an kulturellen und wirtschaftlichen Angeboten bietet. Die hervorragende Anbindung an das Verkehrsnetz sowohl über die Straße als auch mit öffentlichen Verkehrsmitteln macht diesen Standort besonders attraktiv für Geschäftsaktivitäten. In der Nähe befinden sich zahlreiche gastronomische und Einkaufsangebote, die zusätzliches Kundenpotenzial versprechen. Die Umgebung zeichnet sich durch eine hohe Lebensqualität und ein dynamisches wirtschaftliches Umfeld aus, was diese Geschäftsfläche zu einem idealen Ort für Ihre Ideen macht.
Angaben gemäß gesetzlichem Erfordernis:
Heizwärmebedarf:283.0 kWh/(m²a)
Klasse Heizwärmebedarf:G
Faktor Gesamtenergieeffizienz:3.28
Klasse Faktor Gesamtenergieeffizienz:F

Eckdaten

Objektnr: 2552_6100
Art: Einzelhandel - Ladenlokal
Land: Österreich
Baujahr: 1953
Nutzfläche: 267,00 m²
Verkaufsfläche: 267,00 m²
Stellplätze: 4
Heizwärmebedarf:  G  283,00 kWh/m²a
fGEE:  F  3,28
Immobilie merken Exposé

Ausstattung

Garage, Parkplatz


Internet und TV

Information zur Internet und TV Versorgung hier


Immobilie anfragen


Ihre persönliche Beratung

RE/MAX Immowest

Reinhard Götze

RE/MAX Immowest

E r.goetze@remax-immowest.at

T +43/5574/53434210

H +43 664/4437058